Трехкомнатная квартира в доме серии 121: Изысканность простых линий

3-комнатная • 121 • 09.12.2016
Несколько авторов Свернуть
Екатерина Сметанина Архитектор, декоратор
Александр Данилов Архитектор, декоратор
Андрей Гладышев Архитектор, декоратор
Елена Стегнова Архитектор, декоратор
Кирилл Бескибалов Архитектор, декоратор
Елена Соснина Архитектор, декоратор
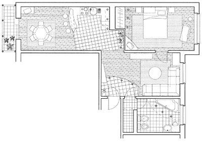
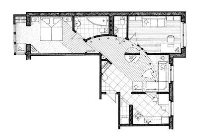
Дизайн-проект перепланировки типовой трехкомнатной квартиры общей площадью 65,02м2.

Пять вариантов перепланировки типовой трехкомнатной квартиры общей площадью 65,02 м2. Читать далее...

План
Комната Было Стало
Общая площадь 65,02 м2
Жилая площадь 39,9 м2
Количество комнат 3 3
Высота потолка 2,64 м
Холл 6,6 м2
Коридор 4,32 м2
Кухня 7,6 м2
Жилая комната 11,2 м2
Ванная комната 3 м2
Кладовая 1,2 м2
Редакция предупреждает, что в соответствии с Жилищным кодексом РФ требуется согласование проводимых переустройств и перепланировок.
Авторы
Екатерина Сметанина Архитектор, декоратор
+ 1
Александр Данилов Архитектор, декоратор
+ 1
Андрей Гладышев Архитектор, декоратор
+ 1
Елена Стегнова Архитектор, декоратор
+ 2
Кирилл Бескибалов Архитектор, декоратор
+ 7
Елена Соснина Архитектор, декоратор
+ 1
Несколько авторов Свернуть
Если это ваш проект, пожалуйста, свяжитесь с нами по адресу ivd@burda.ru, указав в письме ссылку на проект.
Квартира 3-комнатная
Комментарии (0)

Пока комментариев нет. Начните обсуждение!