В борьбе со скукой: Максимум комфорта

3-комнатная • 89,75м² • П-46М • 09.12.2016
Несколько авторов Свернуть
Юрий Филатов Руководитель мастерской
Алексей Стрелков Руководитель мастерской
Илья Мейтыс Руководитель мастерской
Петр Орловский Руководитель мастерской
Татьяна Савиных Руководитель мастерской
Ирина Суслова Аксессуары
Мария Чумак Аксессуары
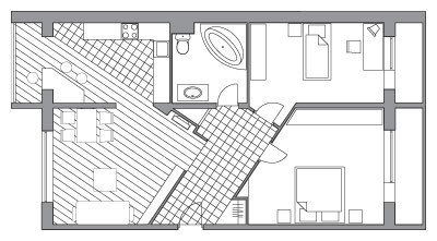
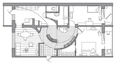
Дизайн-проект перепланировки трехкомнатной квартиры общей площадью 79,1м2 втиповом панельном доме серии П-46М.

Четыре варианта перепланировки трехкомнатной квартиры в жилом панельном доме серии П-46М. Читать далее...

План
Комната Было Стало
Общая площадь 91,65 м2 89,75 м2
Жилая площадь 54 м2 46,8 м2
Количество комнат 3 3
Высота потолка 2,64 м
Прихожая 6,4 м2 7,47 м2
Кухня 12 м2
Гостиная 23,6 м2 23,4 м2
Спальня 17,1 м2 11,4 м2
Детская 13,3 м2 12 м2
Ванная комната 3,9 м2
Туалет 1,95 м2
Коридор 2,8 м2
Лоджия 4,4 м2 4,4 м2
Кухня-столовая 16,8 м2
Гардеробная 3,29 м2
Санузел при спальне 3,97 м2
Санузел при детской 2,12 м2
Гостевой санузел 1,8 м2
Редакция предупреждает, что в соответствии с Жилищным кодексом РФ требуется согласование проводимых переустройств и перепланировок.
Авторы
Юрий Филатов Руководитель мастерской
+ 2
Алексей Стрелков Руководитель мастерской
+ 1
Илья Мейтыс Руководитель мастерской
Петр Орловский Руководитель мастерской
Татьяна Савиных Руководитель мастерской
Ирина Суслова Аксессуары
+ 2
Мария Чумак Аксессуары
Несколько авторов Свернуть
Если это ваш проект, пожалуйста, свяжитесь с нами по адресу ivd@burda.ru, указав в письме ссылку на проект.
Квартира 3-комнатная
Комментарии (0)

Пока комментариев нет. Начните обсуждение!