Уютная однушка для любительницы шопинга
Реализованный проект однокомнатной квартиры площадью 48,8 м2
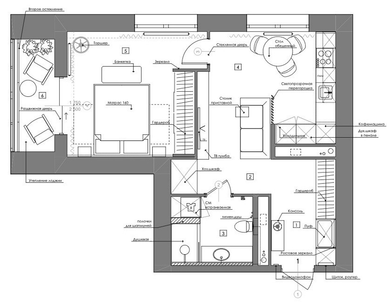
Благодаря перепланировке удалось выкроить зону гостиной, которая объединяется с кухней. Читать далее...

Комната | Было | Стало |
---|---|---|
Общая площадь | 48,9 м2 | 48,8 м2 |
Количество комнат | 1 | 1 |
Высота потолка | 3 м | 2,8 м |
Кухня-гостиная | – | 14,8 м2 |
Спальня | – | 15,1 м2 |
Лоджия | – | 4,2 м2 |
Ванная комната | – | 5,2 м2 |
Коридор | – | 3,2 м2 |
Прихожая | – | 6,3 м2 |
- Пол: инженерная доска Finex, керамогранит Italon
- Стены: краска Derufa
- Плинтусы: Decomaster
- Двери: Profildoors
- Мебель: диван и стулья «Лавсит», обеденный стол и журнальный столик Cosmo, тумба под ТВ и хозяйственный шкаф сделаны на заказ, кухонный гарнитур и поворотные ламели сделаны на заказ в столярной мастерской Prostranstvo, столешница из акрила
- Техника: Electrolux, ИКЕА
- Сантехника: мойка и смеситель Omoikiri
- Посуда: Dantone Home, H&M Home
- Аксессуары и декор: дозатор Paulmark, картина Ag Art Gallery, керамика Ceramum, ваза Dantone Home
- Текстиль: шторы — студия «Кармен», подушки Dantone Home
- Освещение: точечный свет Donoluxe, бра над диваном Freya, подвесной светильник над столом House Doctor
- Электрика: Schneider Electric
Пока комментариев нет. Начните обсуждение!