Прозрачные зеленые плафоны в форме волн и шторы, закрепленные на кованом карнизе подобно парусу, навевают мечты о дальних странах
Легкая сквозная стеллажная конструкция делит комнату-"пенал" сына на две зоны- спальную и рабочую
Панно с изображением фараона- отзвук древнеегипетской традиции: жилища оберегали от злых духов с помощью портретов правителя или статуэток обожествляемых животных
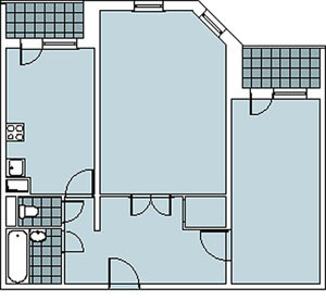
Концепция: сохранение первоначальной планировки, зонирование комнаты мебелью
План после переустройства
Эта своеобразная «перегородка» из натянутых тросов, к которым прикрепляют черные рамки с фотографиями, отделяет зону отдыха от рабочей
Кухню оснащают весьма характерной для квартиры-студии барной стойкой, опирающейся на секцию для бутылок
На лоджии при спальне можно устроить еще один кабинет. Но автор проекта предлагает создать здесь небольшой будуар для хозяйки с соответствующей обстановкой: туалетным столиком, креслом и зеркалом
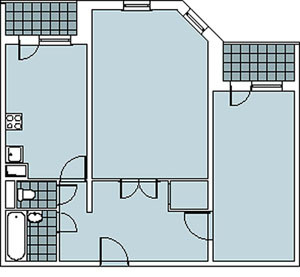
Концепция: организация студийного пространства за счет объединения кухни с гостиной
План после переустройства
Атрибуты колониального стиля преображают комнату в панельном доме
В детской предусмотрено все необходимое для полноценного развития мальчика. Здесь есть рабочая, спальная и игровая зоны. Уголок для физических упражнений оснащают кольцами и лестницей
В кабинете книги и журналы всегда под рукой благодаря небольшой корпусной конструкции из открытых и закрытых шкафчиков. Она отделяет рабочее место от дивана
Утварь под варочной поверхностью скрывают не дверцы, а шторки. Вместе с вытяжкой в стиле прованс это привносит очарование кантри
Концепция: объединение открытым проемом кухни и гостиной, которая становится проходной зоной. Каждому члену семьи выделено по комнате, также сделан отдельный рабочий кабинет
План после переустройства
«Фигурный» потолок со светильниками придает гостиной космический облик
Несмотря на то что выгадывается пространство для движения, такой набор мебели в комнате дочери подойдет аскету, а не молодой девушке: нужны еще тумба для мелочей, туалетный столик
Концепция: выделение отдельных комнат для разнополых детей и родителей, организация пластичного пространства, в котором отсутствует жесткая угловатая ортогональность помещений
План после переустройства
Пока комментариев нет. Начните обсуждение!