Реализованный проект двухэтажного загородного дома площадью 56,9 м2
Этот проект дизайнер называет «Шато» — на участке разбит фруктовый сад, растут цветущие кустарники, цветочные клумбы. А домик наполнен новыми и винтажными вещами и создан с заботой о комфорте. Читать далее...
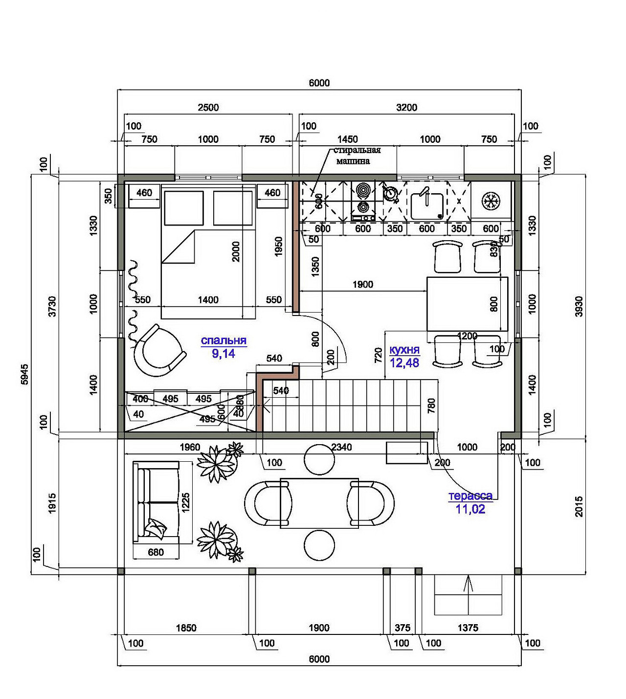
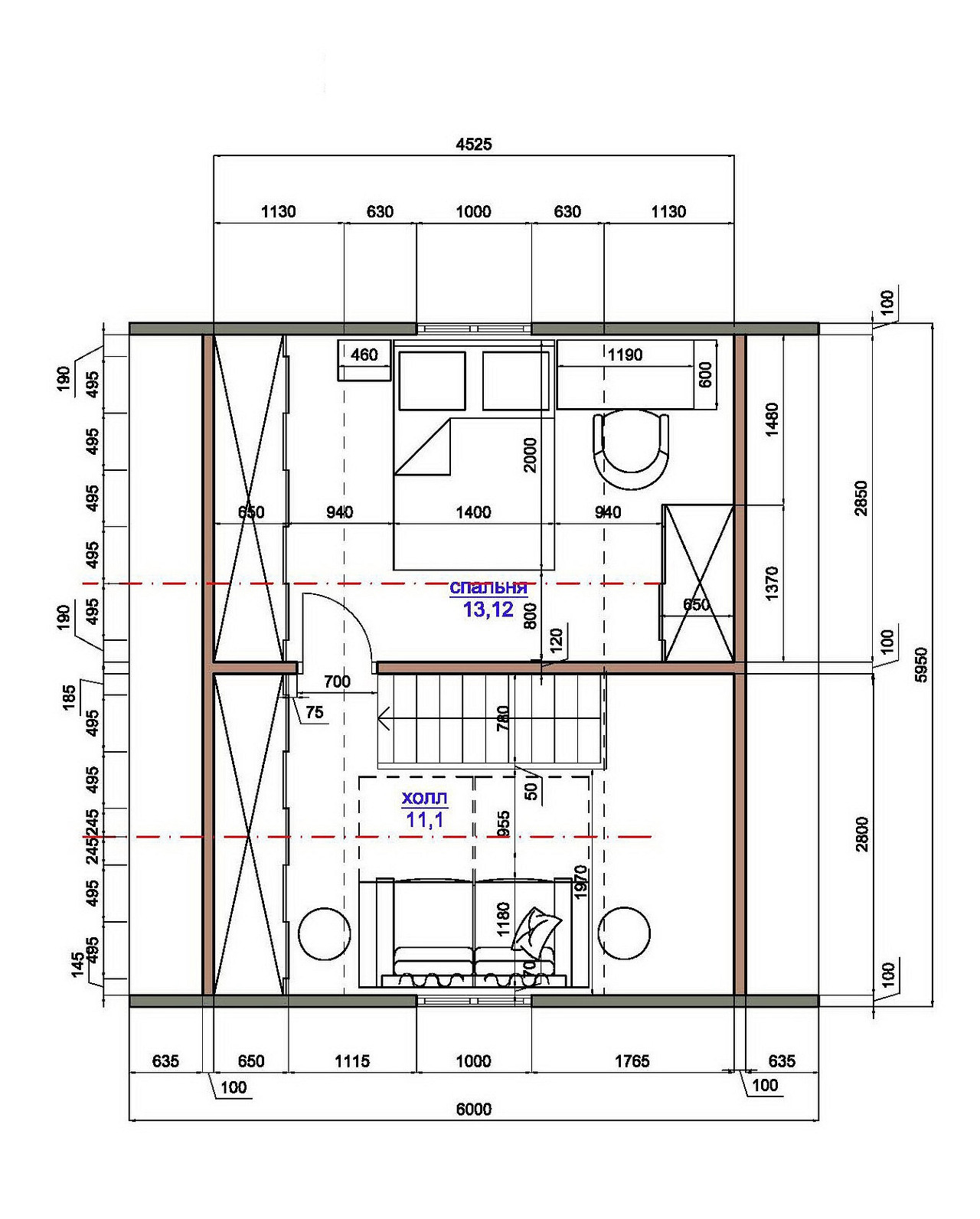
План
| Комната |
Было |
Стало |
| Общая площадь |
56,9 м2
|
56,9 м2
|
| Количество комнат |
3 |
3 |
| Высота потолка |
–
|
2,2-2,4 м
|
| Весь объект |
– |
56,9 м2 |
| Терраса |
– |
11 м2 |
| Кухня |
– |
12,5 м2 |
| Гостевая спальня |
– |
9,1 м2 |
| Спальня хозяйки |
– |
13,1 м2 |
| Холл-детская |
– |
11,1 м2 |
Редакция предупреждает, что в соответствии с Жилищным кодексом РФ требуется согласование проводимых переустройств и перепланировок.
Материалы и цвета
Терраса
- Мебель: стулья — винтаж (Франция)
- Декор: винтаж из разных стран, Zara Home, La Redoute
- Текстиль: ИКЕА
Кухня
- Мебель: гарнитур перекрашен, ручки Zara Home, кресло и система хранения у входа ИКЕА, шезлонг под лестницей La Redoute
- Декор: винтаж, Zara Home
- Текстиль: чехлы на стульях La Redoute, шторка на окне — семейная реликвия
- Ковер: Zara Home
- Освещение: Gramercy Home, подвесы над столом ИКЕА
Гостевая спальня
- Мебель: система хранения сделана на заказ, стул — винтаж (Франция), кровать и тумбочки ИКЕА
- Зеркало: винтаж
- Текстиль: покрывало Zara Home
- Шторы: ИКЕА
- Освещение: винтаж (Италия), бра Zara Home
Спальня хозяйки
- Мебель: системы хранения сделаны на заказ, кровать и тумбочки ИКЕА, кресло La Redoute
- Декор: H&M Home, постеры — винтаж
- Текстиль: La Redoute, H&M Home
- Освещение: люстра — винтаж (Италия), настольные лампы Zara Home
Холл-детская
- Мебель: кушетка ИКЕА, табурет divan.ru, пуф Zara Home
- Декор: картина «Люпины» — Павел Ефанов
- Текстиль: Zara Home, H&M Home, La Redoute
- Освещение: Factory 232, Gramercy Home, La Redoute, настольная лампа Zara Home
Ванная комната
- Мебель: табурет divan.ru, полка и крючки H&M Home
- Зеркало: винтаж
- Декор: подсвечники на стене La Redoute, постер — винтаж, корзины Afro Home
- Освещение: бра ИКЕА
Цвета
-
Стены
-
Мебель
-
Стены
-
Мебель
-
Стены
Авторы
Если это ваш проект, пожалуйста, свяжитесь с нами по адресу
ivd@burda.ru, указав в письме ссылку на проект.
Пока комментариев нет. Начните обсуждение!