Трешка с необычной планировкой для семейной пары

3-комнатная • 87,4м² • ЖК «Новый город» • 16.05.2022

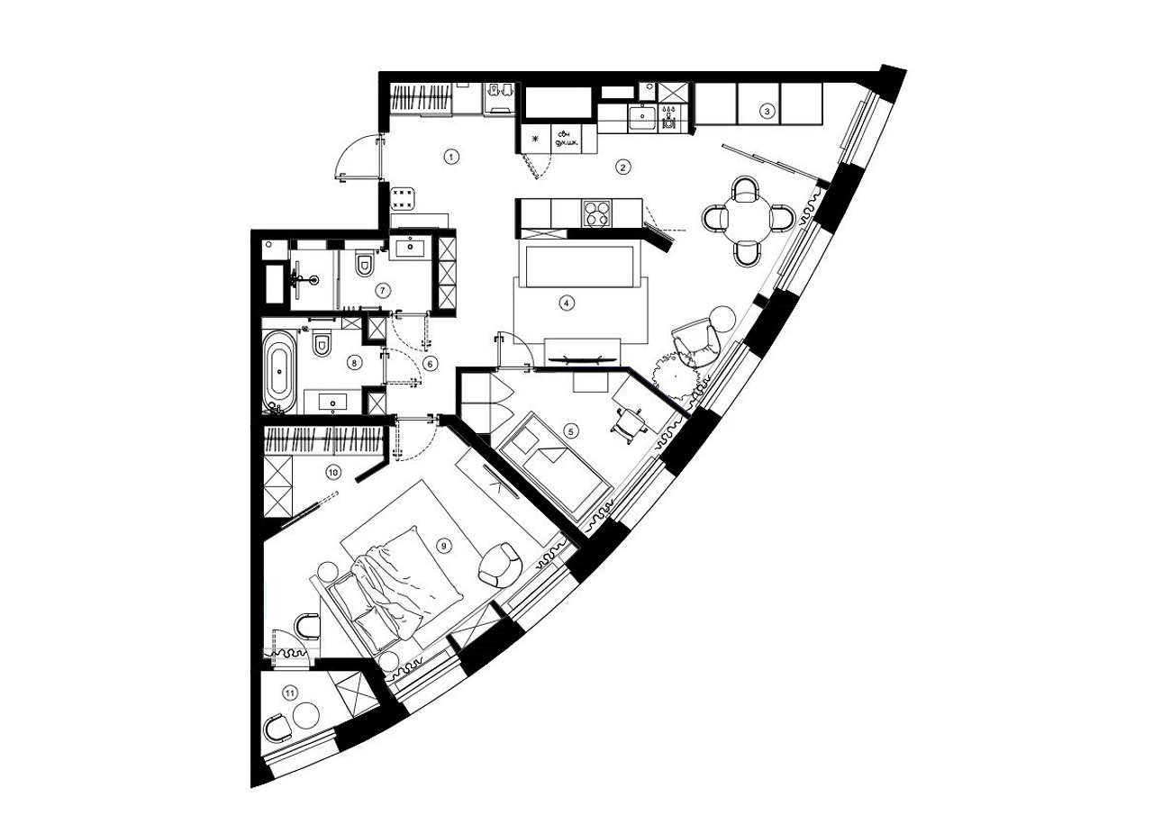
Реализованный проект трехкомнатной квартиры площадью 87,4 м2

Вернее было бы сказать, что из двухкомнатной квартиры сделали даже четырехкомнатную, если считать небольшую зону с окном, отделенную раздвижной перегородкой, где стоят клетки для птиц. Необычный проект дизайнер реализовала для семейной пары. Читать далее...

План
Комната Было Стало
Общая площадь 90 м2 87,4 м2
Количество комнат 2 3
Высота потолка 3 м 2,9 м
Гостиная 15,4 м2
Кухня 13,7 м2
Зона попугаев 4,8 м2
Спальня 19,9 м2
Кабинет 9 м2
Гардеробная 3,3 м2
Балкон 2,8 м2
Ванная комната 4,2 м2
Санузел 4 м2
Коридор 3 м2
Прихожая 7,3 м2
Редакция предупреждает, что в соответствии с Жилищным кодексом РФ требуется согласование проводимых переустройств и перепланировок.
Материалы и цвета
Гостиная
  • Мебель: диван Pohjanmaan, стеллаж сделан на заказ по эскизам дизайнера
Авторы
Если это ваш проект, пожалуйста, свяжитесь с нами по адресу ivd@burda.ru, указав в письме ссылку на проект.
Экостиль Квартира Желтые Фиолетовые Зелёные Серые Чёрные и белые 3-комнатная
Комментарии (0)

Пока комментариев нет. Начните обсуждение!

Похожие перепланировки