Высокий трехметровый потолок сталинского дома позволяет использовать подшивные конструкции, снижающие высоту комнаты на 25см. Они не только выполняют декоративную функцию, но и решают технические задачи: скрывают вентканалы кондиционера, проводку к выключателям и светильникам
Для радиаторов отопления делают неглубокую нишу под окном, чтобы батарея была заподлицо со стеной; ее зашивают гипсокартоном. Теплый воздух проходит через деревянные решетки
В кухне площадью 10м2 отводят лишь небольшую зону для приготовления пищи с минимальным количеством шкафов- «камбуз»
Стеклянные столешницы- красиво, но непрактично: у тех, кто занимается лепкой, много сил уйдет не на творчество, а на отмывание следов пластилина и глины
В оформлении комнаты двух мальчиков присутствуют элементы постмодернизма. Помещение носит "мужской" характер и рассчитано "на вырост". Все внимание сосредоточено на чистых формах (каркас стола, стеллажи, рисунок на шторе) и графических линиях: обои Happy Days (York Wallcoverings), светильники из стекла
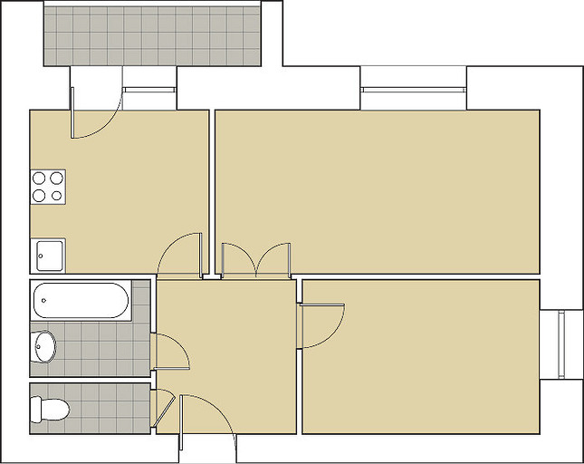
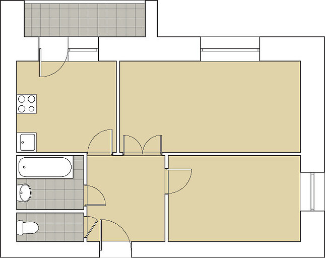
План после переустройства
По желанию хозяев большая комната совмещает функции гостиной и спальни, причем кровать отделена сквозным стеллажом и шторой. За высоким изголовьем находится рабочее место. Второе место для работы с компьютером обустроено на границе зон отдыха и спальной
Детскую меблируют двумя трансформируемыми модулями: рабочее место- кровать. Это наиболее многоцветная комната в квартире- за счет аппликации, составленной из иллюстраций, вырезанных из комиксов
План после переустройства
Гостиная с выходом на балкон
В утолщенной перегородке между спальней и гардеробной сделан встроенный стеллаж для книг, небольших сувениров и других любимых мелочей. Правда, хозяйка просила закрыть его стеклом
Подсветка аквариума может служить дополнительным локальным источником освещения для обеденной группы
Справа от входа в комнату на стене выполнена аппликация в форме стилизованного дерева. Часть "веток"- это крючки, на которые можно повесить домашнюю одежду, сумочку или, например, скакалку
Стены в хозяйском санузле над плиткой покрыты декоративной краской. Для улучшения водонепроницаемости рекомендуется наложить на нее сверху слой обычного паркетного лака
План после переустройства
Эклектичность отделки и меблировки придает интерьеру гостиной "историзм"- кажется, что квартира обжита несколькими поколениями одной семьи
Укладка массивной доски из выбеленного дуба имитирует палубу корабля
Обстановка спальни достаточно лаконична- прямые линии, простые формы. Живописной ее делает разнообразие цветовой гаммы
Детская обставлена "на вырост"- письменный и туалетный столы, кровать морально не устареют в течение долгого времени
Стены по всему периметру украшает декоративный фриз, выполненный в технике трафаретной росписи (это несложно и не требует специальной подготовки). Аполиуретановый молдинг использован не только здесь, но и в других помещениях квартиры
План после переустройства
Объединив кухню и гостиную, получили вытянутое помещение
Перепады высоты потолка (до 100мм) созданы за счет крепления нескольких слоев ГКЛ без профиля. Высота рельефа с плавными очертаниями- 24мм
Интерьер оформлен в современной стилистике с легкой примесью ар деко
Вид на гостиную открывается через портал, образованный "колоннами" (их базой служит деревянный плинтус, а капителью- ступенчатый выступ на потолке), которые расписаны "золотыми" узорами. На полу композиция поддержана полосками мозаики, а между колоннами- эффектное панно
Благодаря плитке с "золотым" орнаментом ванная выглядит как блестящий сад. Светильники из муранского стекла в виде полураскрытых цветов и раковина с нежными растительными узорами усиливают общее впечатление изысканности. Последний штрих- «золотой» натяжной потолок
План после переустройства
Галька на переднем плане панорамы придает пейзажу глубину и усиливает перспективу
Участок на потолке с глянцевым натяжным полотном зрительно увеличивает высоту помещения. Светильники- оранжевые шары-"тыквы" и молочно-белые "капли"- кажутся природными объектами. Благодаря стеклоблокам в прихожую попадает больше света
Круглый обеденный столик, журнальный стол и барная стойка позволяют хозяйке и гостям варьировать сценарии трапезы
В спальне выделяют входную зону с платяным шкафом и туалетным столиком, а также спальное место. Оно специально подчеркнуто понижением подшивного потолка, который плавно загибается на стену, где размещен телевизор. Другая часть изгиба- в изголовье кровати- оформлена тканевыми обоями. Ложе отделено полупрозрачной драпировкой
План после переустройства
Пока комментариев нет. Начните обсуждение!