В духе современности

3-комнатная • 76,1м² • 1-511 • 09.12.2016
Кухня площадью 6м2 в трехкомнатной квартире дома серии 1-511. Реализованный проект. Смета.
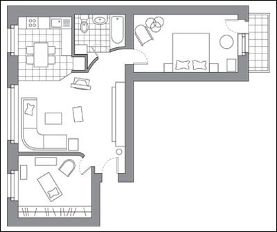
План
Комната Было Стало
Общая площадь 76,1 м2 76,1 м2
Количество комнат 3 3
Площадь кухни 6 м2 22 м2
Редакция предупреждает, что в соответствии с Жилищным кодексом РФ требуется согласование проводимых переустройств и перепланировок.
Материалы и цвета
Кухня
  • Пол: плитка керамическая Marazzi
  • Стены: гипсокартон «Кнауф Гипс», краска Tikkurila
  • Потолок: гипсокартон влагостойкий «Кнауф Гипс»
  • Окна: -none- «ДОК-17»
Авторы
Если это ваш проект, пожалуйста, свяжитесь с нами по адресу ivd@burda.ru, указав в письме ссылку на проект.
3-комнатная
Комментарии (0)

Пока комментариев нет. Начните обсуждение!