Очаровательный домик! Интерьер 57 кв. м с настроением прованса для женщины и ее семьи
Заказчик и задачи
Хозяйка этого дома доверила архитектору-дизайнеру Даше Косса проектирование с нуля: требовалось расположить дом на участке 10 соток в Подмосковье и разбить сад, который не потребует много усилий в уходе. Владелица хотела иметь летний дом, чтобы проводить время за городом в удовольствие — архитектура и дизайн виделись с настроением французского стиля прованс, нотками средиземноморского стиля. В планах было приглашать на лето внучку, а также гостей — поэтому в доме требовались гостевая комната и пространство для детской. При этом в большой площади не было необходимости.
Планировка
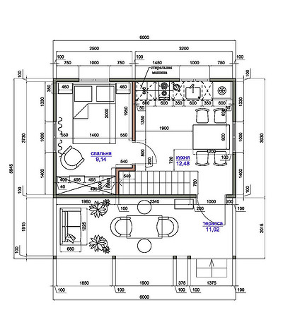
Планировку дома разрабатывали с нуля. Чтобы он не занимал на участке много места, дом решили сделать двухэтажным. На первом этаже — кухня, которая выполняет и роль гостиной, гостевая спальня. На втором — холл-детская и спальня хозяйки. У входа в дом — просторная терраса под крышей. Изначально хозяйка сомневалась насчет целесообразности такой большой террасы, но опыт показал, что это было правильное решение. «Терраса стала сердцем этого летнего дома: тут проходят завтраки и обеды, отдых с книжкой на диване или в компании друзей», — делится Даша.
На участке построено хозяйственное помещение, где разместили туалет с душевой и место для хранения разных садовых принадлежностей.
Отделка
Целью Даши было сделать дом ярким местом, где считывается настроение лето и отдыха. Первым ярким решением стал красный фасад дома и хозяйственной постройки. Эту идею поддержала хозяйка, и она вдохновила ее в дальнейшем согласиться на яркие краски внутри дома.
Деревянную вагонку покрасили в светлые тона, но использовали акценты. В гостевой комнате стена за изголовьем кровати стала красно-бордовой, вагонку покрасили полосами.
На кухне покрасили кухонный гарнитур в насыщенный лазурный оттенок, а в комнатах на втором этаже акцентными стали дверки встроенных шкафов.
Санузел тоже оформлен вагонкой, и ее покрасили в яркие зеленый и синий цвета. Деревянный пол покрыли краской — но сделали рисунок в виде черно-белых ромбов.
«Крашеная вагонка для всех стен и потолков, натуральная доска на полу, покрытая яхтным лаком, даже в ванной комнате, деревянные фасады систем хранения — все это делает дом очень экологичным, теплым, долговечным и легким в уходе», — комментирует дизайнер.
Мебель и системы хранения
Встроенные системы хранения Даша продумала еще на этапе планировки дома — шкафы разместили под скошенными потолками в спальне хозяйки и в холле-детской на втором этаже. В гостевой комнате шкаф стоит во всю высоту потолка. Все фасады шкафов жалюзийные, покрыты краской.
Среди мебели много предметов, которые перекрасили собственноручно — это и кровати, и прикроватные тумбочки, даже кухня, переехавшая из городской квартиры хозяйки.
На террасе стоят винтажные стулья, привезенные из Франции.
Среди декора и текстиля есть и настоящие семейные сокровища. «Гребень для пряжи на стене в столовой зоне принадлежал еще бабушке хозяйки и хранится в семье несколько поколений. Я дополнила его деревянными предметами старого русского быта и повесила как арт-объекты, тем самым органично объединяя исторические корни с семейной реликвией и общей идеей традиционной жизни в доме на природе. А еще такой же по значимости предмет, который может быть даже не бросается в глаза, — это декоративный ламбрекен на окне в обеденной зоне. На самом деле это домотканый, вышитый вручную той же бабушкой подзор для кровати, который был семейной реликвией долгое время и обрел новую функцию в этом доме», — рассказывает Даша.
Освещение
Для фасада выбрали светильники, напоминающие по форме классические фонарики. В доме использовали потолочные винтажные светильники из муранского стекла, на кухне — плетеные абажуры, а также предусмотрели дополнительный свет в виде настольных ламп и бра у кроватей. В ванной на потолке повесили бра — они выглядят нарядно и не банально.








Пока комментариев нет. Начните обсуждение!