Дом из морских контейнеров: плюсы, минусы, этапы создания и 6 готовых проектов
Огромный металлический ящик, в котором на кораблях перевозят грузы, может стать уютной дачей или местом для постоянного проживания. Рассказываем, почему строительство домов из морских контейнеров стало популярной идеей и как реализовать ее самостоятельно.
Все о домах из контейнеров для грузоперевозок
История
Плюсы
Минусы
Основные этапы строительства
— Выбор планировки
— Получение разрешительных документов
— Заказ модулей
— Создание фундамента
— Утепление
— Прокладка коммуникаций
— Отделка
Расчет стоимости
История: от идеи к реализации
Дома из морских контейнеров — не модная инновация, а проверенное временем решение. Массовое возведение зданий из списанных ящиков для грузоперевозок началось в конце прошлого века, когда архитекторы стали заботиться не только о красоте, долговечности, функциональности построек, но и об их влиянии на окружающую среду. Использование списанных модулей в качестве строительных материалов позволило:
- сократить расходы на утилизацию вторсырья, уменьшить площади свалок, занятых им;
- тратить меньше ценной древесины, металла, камня на строительные работы.
В Россию мода на карго-архитектуру пришла совсем недавно. Но уже появилось множество компаний, предлагающих готовые проекты или коттеджи под ключ. Можно купить списанный модуль, а до ума довести самостоятельно. Или заказать готовое решение, которое на участке останется подключить к коммуникациям.
Преимущества строительства домов из морских контейнеров
Повторное использование ценных ресурсов — главное преимущество решения с точки зрения экологических организаций, заботящихся о природе. Заказчики зданий выделяют другие плюсы.
- Высокая скорость работы. На превращение железной коробки в дачу уйдет от 3 недель до 3 месяцев — в зависимости от требований владельца к внутренней отделке, состоянию коммуникаций. При этом работы можно проводить в любую погоду.
- Доступность по цене. Расходы зависят от площади, проекта здания, требований к отделке. Но обычно работы под ключ обходятся в 2-3 раза дешевле, чем строительство дома из кирпича или дерева.
- Мобильность. Контейнеры легко перевозить по воде или суше, поднимать кранами. Металлическая коробка может сыграть роль кафе на летнем фестивале, а потом превратиться в стационарную дачу.
- Прочность, долговечность. Коробки с жесткими металлическими стенками отличаются устойчивостью, выдерживают вес в сотни тонн. Материал не боится соленой воды, сильных ветров, снега, долго сохраняет прочность в любом климате.
- Универсальность. Один 40-футовый контейнер легко превратить в уютную жилую студию. Несколько — в просторный загородный особняк для большой семьи, экоотель, торговый центр. В любой момент владелец может добавить или убрать часть блоков. Капитальную постройку так просто не расширить.
Минусы решения
Идеальными дома из металлических коробок не назовешь.
- Низкие потолки — до 2,5 метров до чистовой отделки. Их никак не увеличить.
- Небольшие размеры одного модуля. Размеры стандартных контейнеров — 27 или 13 квадратных метров. Одного, даже самого большого, для семьи мало. А объединение нескольких требует авторского дизайн-проекта, увеличивает расходы в несколько раз.
- Необходимость прокладки коммуникаций с нуля. В железной коробке придется как минимум сделать вентиляцию, поставить окна — иначе в ней нечем будет дышать. Для комфортной жизни также нужно предусмотреть подключение воды, канализации, электричества, кондиционеров, системы отопления.
- Высокие риски при заказе. Компании-перевозчики продают списанные контейнеры — с дефектами, не подходящие для дальнейшего использования в море. Насколько серьезны повреждения, как долго модуль сможет сохранять прочность, заказчик часто узнает только после получения. Неизвестно, что перевозили в коробке до этого. Радиоактивные или токсичные вещества могут накапливаться в стенках, а обнаружить их следы без дорогих исследований практически невозможно.
Строим дом из морских контейнеров: основные этапы работы
Как сделать дом из морского контейнера? Можно обратиться в компанию, предлагающую готовые постройки с установкой. Или заказать списанный модуль, а затем превратить в жилое помещение своими руками.
Проекты домов из морских контейнеров 20 и 40 футов
Из списанных коробок архитекторы строят двухэтажные дома с несколькими спальнями или небольшие времянки, позволяющие отдыхать за городом, пока идет строительство капитального кирпичного или деревянного коттеджа. Блоки можно ставить друг на друга вдоль или поперек, объединять с помощью дверных проемов или сносом боковых стенок. Показываем удачные планировки домов из морских контейнеров длиной 40 или 20 футов — площадью 27 или 13 квадратных метров соответственно.
Проект 1
Самое простое решение — поставить два контейнера рядом, получив аналог небольшой двух- или трехкомнатной квартиры.
Проекты 2, 3
Пристроив сбоку лестницу, поставив на крыше ограждения, навес, вы получаете дополнительную зону отдыха на открытом воздухе — аналог террасы или веранды, но не занимающей полезную площадь участка.
Проект 4
Пристроив лестницу сбоку, добавив верхний жилой ярус, можно разделить пространство на приватное и общественное — оставить на первом этаже кухню-гостиную с открытой планировкой, зоны хранения, а второй отдать под изолированные спальни.
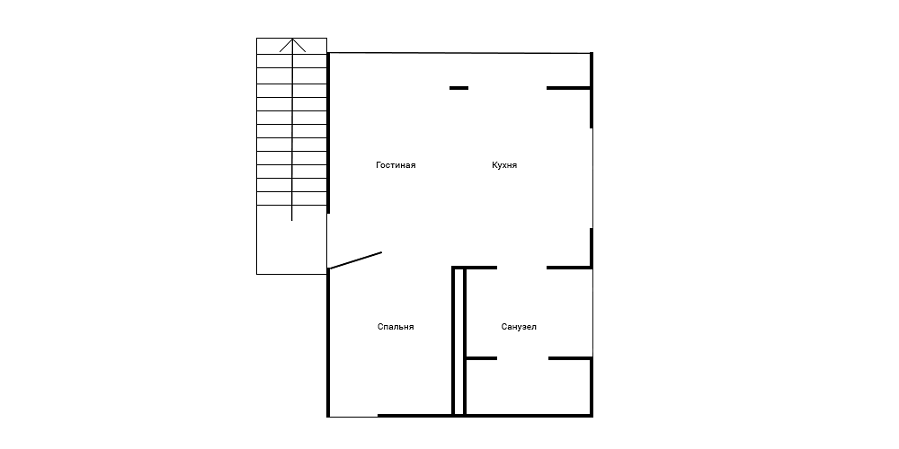
Проект 5
Два небольших 20-футовых контейнера, поставленные друг на друга перпендикулярно, превращаются в уютную дачу для 1-2 человек. Первый этаж занимает кухня-гостиная, второй — спальня и санузел. Зону отдыха, столовую можно организовать на открытой террасе, пристроенной к модулям.
Проект 6
Три-пять блоков легко превратить в просторный жилой дом с несколькими спальнями. Часто архитекторы располагают контейнеры в шахматном порядке, а не параллельно. Это упрощает зонирование, делает проект интереснее внешне.
Получение разрешительных документов
Некоторые строительные компании пишут, что возведение дома из морских контейнеров не требует согласования. Это неправда. Разрешение на капитальное строительство владельцу участка не нужно. Но он обязан уведомить местные власти о его начале и окончании. Без этого не получить свидетельство о праве собственности на дом. Подавать уведомления можно через многофункциональные центры или сайт Госуслуг. К заявке нужно приложить проект с описанием материалов, планировку, схему расположения на участке, а также документы, подтверждающие право распоряжаться землей.
Выбор и проверка модулей
Следующий этап — заказ модулей. Их продают на популярных маркетплейсах, на сайтах логистических компаний, специализирующихся на морских перевозках. Выбирайте площадь блоков с учетом разработанного проекта. При доставке тщательно проверьте состояние стенок: нет ли сильной ржавчины, отверстий, больших вмятин, нарушения геометрии. Изделие должно быть цельным, герметичным: наложенные сверху листы металла часто говорят о крупных дефектах, которые поставщик пытается скрыть.
Создание фундамента
Блоки легкие, а жесткие стенки сами по себе являются несущей конструкцией. Поэтому усиленный плиточный фундамент им не нужен. Одноэтажный дом из морского контейнера можно поставить на сваи или просто ровную площадку с гравийной подушкой. Фундамент для многоэтажной конструкции подбирают с учетом ее веса, нагрузок, особенностей грунта. Если вы строите дом для постоянного проживания, рассчитанный не на один год, проектирование фундамента лучше доверить специалисту.
Утепление
Металл быстро нагревается, так же быстро остывает. Даже летний домик из морского контейнера нуждается в утеплении. Без него внутри в сырые холодные дни будет некомфортно, а тепло от обогревателя или кондиционера станет уходить слишком быстро. Для утепления стенки, полы, крышу снаружи обычно обкладывают минеральной ватой, пластами пенополиуретана. Сверху их закрывают слоем материала, не пропускающего влагу, холодный ветер. Теплоизоляцию выбирают так же, как для построек из других материалов: учитывают степень пожароопасности, долговечность, устойчивость к насекомым, грызунам, плесени, высокой влажности.
Прокладка коммуникаций
Качественная коробка для грузоперевозок по морю — абсолютно герметичная, не пропускает воздух. Поэтому сэкономить на вентиляции не получится. Во временном летнем домике можно предусмотреть форточки или клапаны в оконных рамах. Но лучше поставить полноценную приточно-вытяжную вентиляцию, которая будет работать даже при закрытых окнах. Так в дождливый день вам не придется выбирать между сыростью и духотой.
Остальные коммуникации прокладывают с учетом бюджета, назначения дома. К летней времянке с удобствами на улице достаточно подвести электричество для светильников, холодильника, зарядки гаджетов. Во всесезонных постройках устраивают водопровод, канализацию, монтируют водонагреватели. А для поддержания комфортной температуры ставят кондиционеры, работающие на охлаждение и на обогрев, или электрические теплые полы.
Внутренняя и внешняя отделка
Отделку морского контейнера всегда начинают с обработки антикоррозийными составами снаружи и изнутри. Только после этого приступают к укладке тепло-, гидроизоляции, монтажу инженерных систем. Пропустите обработку — стенки быстро разрушатся.
- При наружной теплоизоляции внешние стенки отделывают металлическим сайдингом или профлистом.
- Внутренние — гипсокартоном или вагонкой, в зависимости от выбранного стиля оформления интерьера.
- Потолок обшивают тем же материалом, что и стены.
- На пол после утепления, гидроизоляции кладут инженерную доску, линолеум или ламинат.
Иногда архитекторы устраивают на морских контейнерах дополнительную кровлю, но это не обязательно. Прочный металл на крыше достаточно утеплить, гидроизолировать. Сверху можно положить настил для зоны отдыха. Коробки для грузоперевозок выдерживают вес до 270 тонн, поэтому дополнительно укреплять потолок не обязательно.
Сколько стоит жилой дом из морского контейнера
Компании, предлагающие дома из морских контейнеров под ключ, на начало 2024 года называют цены от 1,8 млн за фундамент, коробку с отделкой, подключение к коммуникациям. Списанный контейнер на сайте объявлений можно купить за 300 000 рублей. Новый — от 400 000. Если часть отделочных работ вы будете выполнять самостоятельно, сможете значительно сэкономить.





Пока комментариев нет. Начните обсуждение!