5 удобных перепланировок небольших квартир


1 Функциональная студия с выделенной спальней
Площадь: 35,3 кв. м
Интерьер этих апартаментов оформляли для работающего молодого человека. Чтобы оптимизировать пространство под нужды хозяина, дизайнер прибегла к небольшой перепланировке. Из стандартной однушки сделали открытое студийное пространство, объединив комнату с кухней-гостиной. Зона готовки «спряталась» в нише, а спальню отделили реечной перегородкой: она выглядит легче, чем глухая стена, и не препятствует проникновению естественного света во все уголки жилой комнаты. Прихожую также присоединили к общей зоне, чтобы усилить ощущение простора. Благодаря этим изменениям удалось создать удобное пространство для одного жильца, а также более эргономично расставить всю необходимую мебель.
2 Яркая однушка с гардеробной и кабинетом
Площадь: 39,5 кв. м
В этой квартире до перепланировки были прямоугольная кухня и одна большая комната. Ее дизайнер предложила уменьшить, а освободившуюся площадь отдать под гардеробную и рабочее место. Так получилось создать гораздо более функциональный интерьер, а спальня при этом осталась обособленной. Перепланировка коснулась и кухни: вход перенесли, а на месте старой двери удалось расположить шкафы-колонны со встроенной техникой. Рядом с зоной готовки выделили место для столовой группы, а места для отдыха организовали здесь же, на кухне, и на лоджии.
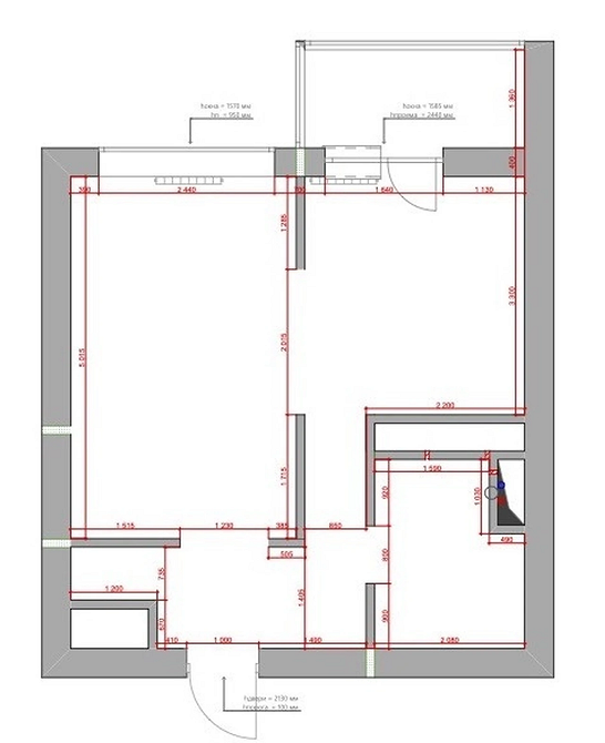
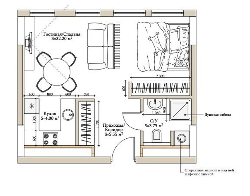
3 Однушка, из которой сделали удобную двушку
Площадь: 38,3 кв. м
Эту однокомнатную квартиру с помощью грамотной перепланировки превратили практически в полноценную двушку. Изначально объект сдавался как стандартная однушка с кухней, жилой комнатой и проходной прихожей. Именно входная зона и не устраивала хозяйку, потому что при такой планировке грязь будет разноситься по всей квартире. В итоге дизайнер предложила выделить прихожую посредством проходной гардеробной. А также объединить кухню и жилую зону, обособить в общем пространстве спальню и оформить небольшую гостиную на оставшемся участке. Благодаря такому решению удалось не только изолировать прихожую, как планировалось изначально, но и выделить большое количество функциональных зон: гостиную, спальню, просторную кухню, гардеробную.
4 Маленькая квартира с гардеробной и кладовкой
Площадь: 37,4 кв. м
Хозяйка этой квартиры поставила перед дизайнером задачу выделить на небольшой площади отдельную гардеробную и достаточно места для домашней библиотеки. Это удалось сделать без кардинальных изменений, поскольку по плану застройщика в жилье уже предполагались выделенная кухня, комната, санузел и мини-кладовка в прихожей. Последнюю решили сохранить как отдельное функциональное помещение, а под гардеробную отвели часть комнаты. Для этого вход перенесли и сделали его из кухни. Гостиную оформили в общей зоне рядом с обеденным столом.
5 Студия с отдельной спальней и рабочим местом
Площадь: 32 кв. м
В этом проекте дизайнеру предстояло поработать с узкой и длинной студией, так называемым «вагоном». При такой планировке функциональные зоны обычно оформляют последовательно. Так поступили и здесь. В жилой зоне выделили кухню с барной стойкой вместо обеденного стола, мини-гостиную и полноценную спальню с рабочим местом. От кухни-гостиной ее отделили раздвижной стеклянной перегородкой. Она матовая, поэтому не перекрывает солнечный свет, но одновременно обеспечивает приватность спальной зоны. Прихожую оставили обособленной, благодаря чему уличная грязь не будет попадать в комнату.
Материал подготовила
Пока комментариев нет. Начните обсуждение!