Старые проблемы — новые решения

Однокомнатная квартира общей площадью 32 м2 в доме серии МТ-9. Полностью проницаемое пространство, выдержанное в цветах осени.

Старые проблемы - новые решенияВид на гостиную из кухни Старые проблемы - новые решенияКухня Старые проблемы - новые решенияВид из прихожей на гостиную Старые проблемы - новые решенияСтеллаж, отделяющий гостиную от прихожей Старые проблемы - новые решенияПрихожая. Гардеробный шкаф с зеркальными дверцами Старые проблемы - новые решенияВид из прихожей на санузел Старые проблемы - новые решенияСанузел

Неизвестно, когда возникла эта проблема, тогда ли, когда у нас появились серийные клетушки, или тогда, когда выяснилось, что все мы разные, и что на свете существуют архитекторы и дизайнеры, способные раздвинуть стены наших темниц и помочь нам проявить нашу индивидуальность

Старые проблемы - новые решения
Стало общеизвестным утверждение того, что проектирование интерьеров- это портретирование людей, живущих в них. Слушая и наблюдая, архитектор переводит жизнь своих заказчиков на язык материального мира, полного значений, символов и отражений. Как отразить в пространстве богемный образ жизни? Ответ чрезвычайно прост- создайте "studio". Воображение немедленно рисует живописную картину просторной мансарды, парящей над морем крыш. Прервите полет, друзья! Спуститесь на землю. Studio надо создать в хрущевке серии МТ-9, где потолок 2,57метра, общая площадь 32м2. Задача, прямо скажем, не из легких. Настоящий вызов архитектору.

Квартира- это не мансарда. Волей-неволей она отражает социальный статус ее обитателей и может выдать с головой, бессовестно раскрыв все тайны вашего образа жизни. Квартира- это серьезно. Другое дело- Studio. Легкий флер романтизма, никакого регламента, свободный режим, поток гостей. Безусловно, Studio- это семейный очаг, это прибежище вольных странников.

Вот такая, друзья, тема для вариаций. Перед вами- одно из решений. Внимательно вглядитесь в план. Сделать это просто необходимо, ибо, поверьте, даже имея прекрасные фотографии, сориентироваться в таком крошечном пространстве гораздо сложнее, чем в большом. Налицо- полная проницаемость пространства, внутри которого мирно соседствуют различные по назначению зоны: открытая кухня-ниша, гостиная, подобие прихожей и воспоминания о коридоре. Использован широко распространенный сегодня прием свободной планировки, чрезвычайно уместный при ограниченном до минимума пространстве и максимально свободном образе жизни.

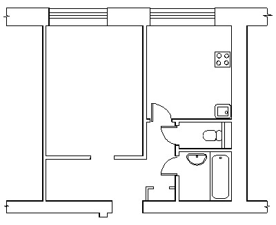
Как разыграна эта тема в конкретном варианте? Старая планировка, чреватая клаустрофобией, была отвергнута по сути, но сохранена по содержанию. Набор функций и их пространственная взаимосвязь не претерпели никаких изменений, а рисунок плана был преобразован полностью.

Динамичная развязка композиции студии происходит благодаря эффекту оптического расширения пространства. Достигается этот эффект сочетанием прямоугольной и косоугольной геометрии плана. Воснове композиции лежит трапеция. Простейший прием ломки пространственного стереотипа дает удивительные результаты. Плюс тонко нюансированный дизайн интерьера. Суммарный результат- место отдохновения души от набившей оскомину параллельности будней.

Однако вернемся к функциональной начинке этого "свободного", но определенно "жилого" пространства. Квадрат пола разделен почти по диагонали границей двух напольных покрытий: серебристо-зеленый ковролин- принадлежность гостиной, керамическая плитка целесообразна во входной зоне, на кухне и в ванной. Гостиная отделена от бывшего коридора легким стеллажом, на котором уютно расположились книги и разные интересные мелочи и трофеи, привезенные из путешествий. Конструкция стеллажа отражается в зеркальных дверцах гардеробного шкафа, над которым расположились вместительные антресоли. Вгостиной свободно стоят диван и кресло, вдоль окон- низкая мебель с телевизором. Граница гостиной и кухни отмечена тонкой перегородкой с широким проемом, форма которого- объемное отражение планировочного приема. Высокий столик пересекает проем. Он опирается на плетеную ножку и окружен легкими плетеными стульями, специально спроектированными для данного интерьера. Миниатюрная кухня, благодаря огромному проему теряет характер «kitchenette», приобщаясь к жизни гостиной.

Общее цветовое решение интерьера подчинено основной идее, сформулированной заказчиками: впалитре должны преобладать цвета осени. Вся мебель, обои и другие отделочные материалы тщательно подобраны по цвету. Здесь действительно царствует осенняя гамма из золотисто-желтых, бежевых, янтарных, багряных и серебристо-зеленых оттенков.

Старые проблемы - новые решенияПервоначальная планировка квартиры Старые проблемы - новые решенияПланировка после реконструкции
Редакция предупреждает, что в соответствии с Жилищным кодексом РФ требуется согласование проводимых переустройств и перепланировок.
Рекомендуем