Спальня и гостиная в однушке: 6 перепланировок, которые предложили дизайнеры


1 Спальня за стеклянной перегородкой
В этом проекте дизайнера Ольги Копосовой (однушке площадью 33 кв. м) выделили спальню, гостиную и даже мини-гардеробную. Комната разделена стеклянной перегородкой, за которой и расположилась зона спальни. Из спальни — реечные двойные двери в маленькую гардеробную комнату. Пример отличной проработки функциональности на небольшой площади!
2 Спальня в укромной нише и объединенная кухня-гостиная
Изначальная планировка этой квартиры 44 кв. м была стандартной — отдельная комната, достаточно большой холл с «закутком», выделенная кухня и ванная. Екатерина Малмыгина сделала функциональную перепланировку, которая позволила уместить больше зон. Главное изменение коснулось кухни и гостиной — между ними убрали перегородку, чтобы организовать общее студийное пространство. За счет присоединения части прихожей удалось выделить маленькую спальню (всего 5,36 кв. м). А рядом с ней организована и рабочая зона, тоже в комфортной нише. Для изолирования спальни есть шторы. При этом свежий воздух может спокойно туда проникать, потому что глухих перегородок не делали.
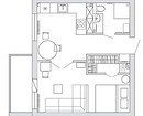
3 Спальня за стеклянным простенком
В проекте дизайнера Оксаны Агапоновой — однушке площадью 44,85 кв. м — мы видим еще один пример организации компактной спальни и полноценной зоны гостиной, которая объединена с кухней. Принцип тот же — убрали перегородку между кухней и гостиной, построили новые для отделения спальни от гостиной и коридора. При этом первая — стеклянная. Для лучшей приватности добавлена легкая светлая штора. В планировке сохранили отдельную гардеробную из прихожей — весомый плюс в рамках однокомнатной квартиры.
4 Спальня-гостиная, разделенные широким дверным проемом
В квартире по проекту дизайнера Елены Мухачевой — всего 41,7 кв. м площади. Здесь удалось реализовать функционал полноценной двушки! Изначальная планировка была со своими плюсами и минусами. Однозначный плюс — два санузла. Минус — вытянутая комната со скошенным углом и достаточно большой холл неправильной формы. Елена скорректировала планировку, что позволило организовать и гостиную, и спальню. К комнате присоединили часть холла, чтобы выровнять форму. Ближе к окну выделили спальню, а рядом с ней — гостиную. Они разделены перегородкой с широким дверным проемом со стеклянной фрамугой. Так что в гостиную, удаленную от окна, попадает достаточно естественного света. Второй маленький санузел отвели под гардеробную.
5 Маленькая приватная спальня 4,7 кв. м и просторная кухня-гостиная
Эту квартиру площадью 41,1 кв. м приобрела для своего взрослого сына известная девушка-блогер. Дизайнер Марина Есина создала для молодого парня удобное пространство, превратив однушку почти в двухкомнатное жилье. На планировке «до» нет стен, но застройщик предполагал, что в квартире будет отдельная комната, кухня и санузел. Марина предлагала разные варианты планировки, выбрали ту, которая позволила воплотить пожелания и согласовывалась с жилищным законодательством.
Так, кухня и ванная остались на своих местах. Между кухней и гостиной нет перегородки. Это светлое студийное пространство. Зато спальня полностью выделена и отгорожена от гостиной глухой перегородкой, а от коридора — стеклянными раздвижными дверями. Так в нее попадает естественный свет. В коридоре — мини-гардеробная.
6 Мини-спальня и объединенная кухня с гостиной
В этом проекте для молодой пары дизайнер Марина Зенова превратила однушку в почти двушку, а также выделила гардеробную. Принцип перепланировки уже знакомый — убрать перегородку между кухней и гостиной, выделить мини-спальню, закрыв ее стеклянными дверями (добавили шторы для приватности). На оставшейся площади выделить гардеробную. Гардеробная позволяет освободить небольшое пространство от громоздких шкафов.
Пока комментариев нет. Начните обсуждение!