Рубрика «Дизайн-проект» отвечает на письма читателей
Тему настенной росписи поддерживают бра. Повешенные не вертикально, а наклонно, словно поддавшись общему движению линий рисунка, светильники вторят их направлению
Реальные предметы теряются на фоне геометрического рисунка на стенах и "фартука". Мебель словно растворяется, и видны только узоры из кругов и линий. Над столом прикреплены подвесные светильники, а в рабочей зоне использована подсветка, смонтированная под навесными шкафами
Балкон предполагается остеклить и утеплить, а затем устроить на нем зимний сад, ведь у хозяйки много комнатных растений. Ограждающую часть балкона и простенки отделывают декоративным облицовочным кирпичом для общего антуража
Благодаря зонированию спальни при помощи подиума пропорции вытянутого помещения визуально становятся гармоничнее, и комната кажется более объемной
Римские шторы хорошо сочетаются с потолочными светильниками-"парусами". Оконные рамы и подоконники из темного дерева привносят уютную атмосферу загородного дома
Зеркала почти во всю стену преобразуют пространство, визуально увеличивая его. Белые стены и потолок сливаются друг с другом, поэтому маленькое помещение выглядит более высоким
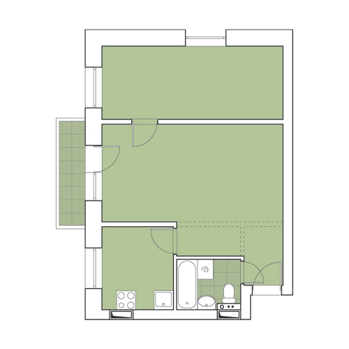
План до переустройства
План после переустройства
Дорогие читатели! Мы снова отвечаем на ваши письма. В
Письмо 1 (однокомнатная квартира)


Елена Николаевна Лукьяненко,
г.
Пылающее сердце
Авторы проекта оформляют квартиру для девушки-студентки, занятой учебой и активно общающейся с друзьями. В
В
Обстановка санузла удивляет и вызывает улыбку
При входе в кухню привлекает внимание ярко-синяя горизонтальная поверхность, опоясывающая половину помещения,
Жилая комната решена как студия и выполняет функции гостиной, спальни и мини-кабинета. Последний находится посередине помещения и служит границей между зонами спальни и гостиной, так что за рабочий стол можно сесть с разных сторон. В
Светильники в гостиной-спальне размещены так, чтобы равномерно освещать комнату. Их металлические рефлекторы поворачиваются, создавая эффект отраженного луча. Дизайнерские радиаторы стилизованы под чугунные отопительные приборы. Их можно покрасить в любой цвет.
Автор письма просила спланировать отдельную гардеробную, но из-за недостатка площади архитекторы проектируют большой (до потолка) шкаф-стеллаж из MDF. Его закрывает сочного цвета сиренево-голубая штора на криволинейном карнизе-рельсе. Плавная линия драпировки делает пространство интереснее и создает определенную интригу. Цветовая гамма
Сильные стороны проекта:
Слабые стороны проекта:
| Проектная часть | 50 |
| Авторский надзор | 30 |
| Строительные и отделочные работы | 210 |
| Строительные материалы | 100 |
| Вид конструкции | Материал | Количество | Cтоимость, руб. |
|---|---|---|---|
| ПОЛЫ | |||
| Гостиная-спальня | Паркетная доска Karelia | 22,6 |
47 500 |
| Санузел | Керамогранит (Испания) | 6,3 |
22 000 |
| Остальное | Керамогранит | 16,1 |
23 000 |
| СТЕНЫ | |||
| «Фартук» кухни | Стальной лист (Россия) | 1 |
4900 |
| Гостиная-спальня, балкон | Декоративный облицовочный кирпич «Бремен Брик» (White Hills) | 11,5 |
11 000 |
| Санузел | Керамическая плитка Apavisa | 14,3 |
17 200 |
| Остальное | Краска в/д, колер |
27 |
25 000 |
| ПОТОЛКИ | |||
| Санузел | Ковровое синтетическое покрытие | 6,3 |
24 800 |
| Остальное | Краска в/д |
20 |
12 000 |
| ДВЕРИ (укомплектованные фурнитурой) | |||
| Весь объект | Стальная Gardian, распашная Alstem | 2 шт. | 58 000 |
| САНТЕХНИКА | |||
| Санузел | Унитаз |
32 200 | |
| Полотенцесушитель, бойлер | 2 шт. | 15 900 | |
| Смесители, гарнитур |
3 шт. | 16 800 | |
| ЭЛЕКТРОУСТАНОВОЧНОЕ ОБОРУДОВАНИЕ | |||
| Весь объект | Дизайн-радиаторы |
52 000 | |
| Розетки, выключатели |
20 шт. | 41 000 | |
| ОСВЕТИТЕЛЬНЫЕ ПРИБОРЫ | |||
| Весь объект | Светильники (Италия, Россия) | 22 шт. | 120 000 |
| МЕБЕЛЬ И ДЕТАЛИ ИНТЕРЬЕРА (включая изготовленные на заказ) | |||
| Кухня | Кухня «Стелла» («Ликарион») | 98 100 | |
| Стол, табуреты, барный стул | 5 шт. | 6800 | |
| Прихожая, гостиная-спальня | Платяные шкафы, стеллаж |
84 500 | |
| Гостиная-спальня | Кровать, тумба (Россия, на заказ) | 64 350 | |
| Стол (Россия), кресло |
2 шт. | 47 000 | |
| Диван Cristian Zuzunaga | 1 шт. | 107 000 | |
| Санузел | Табурет (Россия), cтолешница Montelli | 17 800 | |
| ВСЕГО (без учета стоимости работ и отделочных материалов) | 948 850 | ||

Воздуховод вытяжки спрятали в короб, протянувшийся по потолку в форме буквы "Г". Это позволило сохранить высоту потолков
Чтобы комната выглядела более просторной, рабочий стол установлен на легкие хромированные опоры. Столешница устроена по принципу столика для просмотра слайдов и рисования на кальке: внутри
"Слетевшиеся" в ванную деревянные птички
План до переустройства
План после переустройства
Девичье царство
В однокомнатной квартире студентки должно быть достаточно места для занятий и общения с друзьями, а также для ее многочисленных книг и нарядов. Незначительные изменения в планировке, не затрагивающие несущих конструкций, позволяют максимально удовлетворить требования хозяйки. Автор проекта определяет свой замысел как парад контрастов: основные выразительные средства, использованные здесь,
Вход из прихожей в кухню переносят ближе к стене ванной комнаты, и благодаря этому здесь удается установить вместительный шкаф с несколькими отделениями. Яркие цветные полосы на стене (детская коллекция флизелиновых обоев) напротив входной двери поднимают настроение. Чтобы зрительно не разделять небольшое пространство на маленькие зоны, на пол в прихожей, гостиной и частично в кухне укладывают ламинат насыщенного шоколадного цвета.
Мебель в гостиной расставляют главным образом вдоль стен, что позволяет сохранить свободное пространство в центре помещения. Перегородка, отделяющая нишу для гардероба при входе, разграничивает комнату: у двери
В
Лейтмотив оформления ванной комнаты
Помимо сочной цветовой гаммы и ярких акцентов важную роль в интерьере играют декоративные осветительные приборы. Пышный "букет" из стеклянных шаров освещает диванную зону; похожие одиночные плафоны большего размера висят над обеденным столом. В
В
Сильные стороны проекта:
Слабые стороны проекта:
| Проектная часть | 37 |
| Авторский надзор | 9500 |
| Строительные и отделочные работы | 595 |
| Строительные материалы | 210 |
| Вид конструкции | Материал | Количество | Cтоимость, руб. |
|---|---|---|---|
| ПОЛЫ | |||
| Кухня, балкон | Керамогранит Kerama |
11 |
7900 |
| Ванная комната | Керамическая плитка |
3 |
2700 |
| Остальное | Ламинат Аlloc | 27,5 |
38 700 |
| СТЕНЫ | |||
| Ванная комната | Керамическая плитка |
22 |
38 600 |
| Остальное | Обои Patent Decor (Marburg) | 5 рулонов | 7800 |
| ПОТОЛКИ | |||
| Весь объект | Натяжной потолок |
20 500 | |
| ДВЕРИ (укомплектованные фурнитурой) | |||
| Весь объект | Стальная «Ле-Гран» | 1 шт. | 22 900 |
| Межкомнатные «Александрийские двери» | 3 шт. | 42 900 | |
| САНТЕХНИКА | |||
| Ванная комната | Смесители Damixa | 2 шт. | 21 100 |
| Раковина |
1 шт. | 14 600 | |
| Ванна Doctor Jet | 1 шт. | 21 600 | |
| Унитаз |
1 шт. | 10 500 | |
| Полотенцесушитель Toomec | 1 шт. | 19 500 | |
| ЭЛЕКТРОУСТАНОВОЧНОЕ ОБОРУДОВАНИЕ | |||
| Весь объект | Розетки, выключатели |
24 шт. | 22 500 |
| ОСВЕТИТЕЛЬНЫЕ ПРИБОРЫ | |||
| Весь объект | Светильники, люстра, системы освещения (Бельгия, Венгрия, Китай) | 25 шт. | 92 000 |
| МЕБЕЛЬ И ДЕТАЛИ ИНТЕРЬЕРА (включая изготовленные на заказ) | |||
| Прихожая, гостиная | Шкафы-купе «Ольвестра» | 2 шт. | 95 000 |
| Диван, пуф |
2 шт. | 78 000 | |
| Рабочий уголок (на заказ) | 1 шт. | 33 500 | |
| Кресло рабочее Иkea | 2 шт. | 8400 | |
| Винтажное кресло (реставрация, перетяжка) | 1 шт. | 17 000 | |
| Кухня | Кухня «Ольвестра» | 78 000 | |
| Стол, стулья |
5 шт. | 43 000 | |
| Гостиная, кухня | Драпировки на окно (Россия) | 3 шт. | 24 600 |
| ВСЕГО (без учета стоимости работ и отделочных материалов) | 761 300 | ||

Зеркальные двери гардероба и остекленные полки на противоположной стене усложняют и зрительно увеличивают пространство комнаты. Обрамление дверных проемов гармонирует с широким светлым плинтусом и тонким декоративным карнизом снежно-белого цвета, скрывающим монтажный багет натяжного потолка
Кухонная мебель превращена в интересный дизайн-объект: поверхность столешницы обеденного стола облицована мозаикой и окаймлена металлической рамкой. Такой стол легко мыть, и скатерть не нужна

В оформлении ванной комнаты тоже присутствуют полосы, но более узкие, чем в кухне и гостиной. Их дополняет наивный цветочный декор, оживляющий зеленый интерьер
План до переустройства
План после переустройства
Письмо 2 (двухкомнатная квартира)

Первоначальный план квартиры
Недостатков у такой планировки немало: проходная комната, крохотная прихожая, маленькая кухня и со-вмещенный санузел. Часть перегородок, ограждающих прихожую и коридор, мы снесли. У
Что касается оформления интерьера, мы предпочитаем современный стиль; при этом не стоит избегать плавных линий, сглаживающих острые углы. Неплохо применить в отделке светлые пастельные тона, возможно, даже холодные. Хотелось бы, чтобы получился не самый дешевый, но и не слишком дорогой вариант.
Немного о себе. Я
Очень надеемся на вашу помощь, нам будут интересны все предложения. Заранее благодарны.
Семья Минеевых, г.
Плавный переход
По замыслу дизайнера плавные линии и сочные краски должны сделать из морально устаревшей типовой квартиры современное жилище, обитатели которого будут чувствовать себя бодрыми и энергичными. Автор проекта делает акцент на графическом решении интерьера: минимум острых углов, максимум плавных линий и скруглений
Все эти конструкции выполняют на заказ. Такой прием позволяет создать законченный интерьер, который, однако, уже нельзя будет дополнить стандартной мебелью. К
Выбранная стилистика отвечает пожеланиям авторов письма: плавные линии, холодные тона. Такая палитра действительно подходит для помещений, ориентированных на юго-запад. Но в данном случае цвета насыщенные, яркие и даже темные (хотя хозяйка квартиры просила выполнить интерьер преимущественно в пастельных тонах). Пространство, оформленное в подобной гамме, зрительно уменьшается, а в малогабаритной квартире это нежелательно.
Перепланировка затрагивает ванную и кухню: перегородки между этими помещениями, а также между прихожей и ванной демонтируют и выстраивают новые, иной формы. В
За счет коридора площадь ванной увеличивают. Меняется и конфигурация этого помещения: теперь в плане оно представляет собой вытянутый прямоугольник, вдоль короткой стороны которого устанавливают стальную ванну, вдоль длинной
В
Спортивный уголок, который просили организовать авторы письма, предполагается устроить в гостиной, у балкона. С
Подшивные потолки, ниши для встроенных шкафов-купе в спальне, гостиной и прихожей выполняют из гипсокартона. Чтобы обеспечить плавный переход от потолка к навесным шкафчикам в кухне, монтируют пенополиуретановый профиль-карниз. Новые перегородки между помещениями возводят из пазогребневых блоков толщиной 80-100
В
Сильные стороны проекта:
Слабые стороны проекта:
| Проектная часть | 63 |
| Авторский надзор | 30 |
| Строительные и отделочные работы | 397 |
| Строительные материалы | 198 |
| Вид конструкции | Материал | Количество | Cтоимость, руб. |
|---|---|---|---|
| ПОЛЫ | |||
| Прихожая, кухня, балкон | Керамогранит Revigre |
11 |
33 860 |
| Ванная комната | Керамическая плитка |
4 |
12 800 |
| Гостиная | Паркетная доска |
16 |
45 760 |
| Спальня-кабинет | Ламинат Haro | 13 |
9800 |
| СТЕНЫ | |||
| Гостиная | Обои |
4 рулона | 3000 |
| Кухня | Роспись (на заказ) | 4 |
8000 |
| Спальня-кабинет | Влагостойкая водоэмульсионная краска |
24,5 |
49 600 |
| Роспись (на заказ) | 3,5 |
24 500 | |
| Ванная комната | Мозаика |
21,5 |
87 100 |
| Хромированный металлический лист (Россия) | 9000 | ||
| Ванная комната, прихожая, гостиная, балкон, кухня | Краска в/д, колер |
12 |
6400 |
| ПОТОЛКИ | |||
| Кухня | Роспись (на заказ) | 1 |
2000 |
| Весь объект | Краска в/д |
13 |
7400 |
| ДВЕРИ (укомплектованные фурнитурой) | |||
| Прихожая | Входная |
1 шт. | 38 000 |
| Ванная комната, кухня, спальня-кабинет | Распашные, стеклянные, хромированные наличники (Италия) | 3 шт. | 108 000 |
| САНТЕХНИКА | |||
| Ванная комната, кухня | Умывальник, унитаз консольный |
3 шт. | 53 900 |
| Ванна |
1 шт. | 24 000 | |
| Смесители, душевой гарнитур |
3 шт. | 36 900 | |
| Полотенцесушитель Energy | 1 шт. | 9100 | |
| ЭЛЕКТРОУСТАНОВОЧНОЕ ОБОРУДОВАНИЕ | |||
| Весь объект | Дизайн-радиаторы |
51 900 | |
| Розетки, выключатели |
27 шт. | 37 150 | |
| ОСВЕТИТЕЛЬНЫЕ ПРИБОРЫ | |||
| Весь объект | Светильники: бра, встроенные карданные, подвесные, на шинной системе (Италия, Китай, Германия) | 21 шт. | 180 000 |
| МЕБЕЛЬ И ДЕТАЛИ ИНТЕРЬЕРА (включая изготовленные на заказ) | |||
| Кухня | Кухня Hanak, столешница Corian (DuPont) | 106 700 | |
| Столешница, опоры (на заказ) | 1 компл. | 33 000 | |
| Барные стулья «М-Прус» | 2 шт. | 16 000 | |
| Прихожая, гостиная | Фанерованные панели Trendy (LETO), зебрано | 49 700 | |
| Полки «Мэрдэс» | 4 шт. | 23 400 | |
| Платяной шкаф (Россия) | 1 шт. | 137 000 | |
| Диван |
1 шт. | 100 000 | |
| Пуфик |
1 шт. | 20 000 | |
| Спальня-кабинет | Кровать Flou (Nathalie) | 1 шт. | 226 000 |
| Платяной шкаф (Россия) | 1 шт. | 67 000 | |
| Столешница, искусственный камень (на заказ) | 48 000 | ||
| Стул Иkea | 1 шт. | 5000 | |
| Пуфик |
1 шт. | 20 000 | |
| Ванная комната | Аквариум встраиваемый на 80 |
42 000 | |
| Тумба (на заказ) | 26 000 | ||
| Спальня-кабинет, гостиная, кухня | Шторы римские, покрывала (Россия) | 72 000 | |
| ВСЕГО (без учета стоимости работ и отделочных материалов) | 1 829 970 | ||

Длинный кухонный подоконник сохраняет свою функцию, но изменяет форму. Объединение с зашитой стенкой под окном делает его эстетически выразительнее. Аквариум вмонтирован в стену между кухней и ванной, для которой он является также источником дополнительного освещения
Центр композиции гостиной
Столешница, объединенная с двумя подоконниками, стала рабочим местом. Причем все пространство под столешницей зашивают так, чтобы радиаторы были в нишах
Верхний уровень потолка в спальне покрыт бирюзовой суперглянцевой эмалью
Значительная толщина стены между кухней и ванной (300
План до переустройства
План после переустройства
Светло и просторно
Авторы письма хотели иметь более вместительную прихожую, гардеробную, гостиную, спальню, рабочую зону с компьютером, а также предусмотреть пространство, которое можно было бы превратить в детскую, когда семья увеличится. Как правило, ребенок в возрасте до 4-5
Изначальную планировку максимально сохраняют, при этом удается создать функциональное, достаточно свободное пространство. В
Ранее в квартире не было отдельной прихожей, поскольку, чтобы организовать «студию», хозяева снесли некоторые перегородки. Автор проекта частично восстанавливает их. Напротив входной двери устраивают гардеробную (своего рода продолжение прихожей), где хранят и бытовые приборы (пылесос, гладильная доска). Для этого возводят новую перегородку и немного уменьшают гостиную. Такое спорное на первый взгляд решение позволяет почти полностью освободить помещения от громоздких шкафов, в результате не возникает ощущения тесноты. Прихожая невелика, и мебели в ней немного: только зеркало от пола до потолка, обрамленное гипсокартонными конструкциями с встроенной подсветкой, и вешалка.
За счет бывшего коридора немного увеличивают кухню и ванную комнату. Угол последней слегка скругляют, поэтому прихожая не кажется тесной, а от входа в квартиру по диагонали открывается широкая эффектная перспектива гостиной.
В
Чтобы увеличить площадь кухни (на 0,6
В
Ванная комната соответствует общему стилистическому решению квартиры. Ее облицовывают керамической плиткой большого формата
Сильные стороны проекта:
Слабые стороны проекта:
| Проектная часть | 69 |
| Авторский надзор | 20 |
| Строительные и отделочные работы | 412 |
| Строительные материалы | 206 |
| Вид конструкции | Материал | Количество | Cтоимость, руб. |
|---|---|---|---|
| ПОЛЫ | |||
| Прихожая, кухня, гостиная | Керамическая плитка Ego (Italon) | 10,5 |
13 100 |
| Ванная комната, балкон | Керамическая плитка Intensity ( |
6 |
8000 |
| Спальня-кабинет | Пробковое покрытие |
13 |
17 800 |
| Гардеробная, гостиная | Паркетная доска Tarkett | 15 |
33 800 |
| СТЕНЫ | |||
| Кухонный «фартук» | Стеклянная мозаика |
2 |
11 900 |
| Ванная комната | Керамическая плитка, декор Intensity ( |
21,5 |
66 500 |
| Мозаика Xicheng | 2,5 |
7600 | |
| Спальня-кабинет | Декоративная структурная штукатурка Maxdecor | 1,5 |
2000 |
| Гостиная, кухня | Роспись стен (работа художника) | 15 |
8500 |
| Прихожая, гостиная, балкон, кухня | Декоративная штукатурка Maxdecor | 54 |
67 100 |
| Балкон | Декоративный облицовочный кирпич | 1,5 |
1000 |
| ПОТОЛКИ | |||
| Ванная комната | Натяжной потолок (Германия) | 3,5 |
4500 |
| Гостиная, спальня, кухня | Полиуретановый карниз Perfect | 25 шт. | 13 800 |
| Остальное | Краска в/д, колер |
6,5 |
5200 |
| ДВЕРИ (укомплектованные фурнитурой) и ОКНА | |||
| Прихожая | Стальная входная «Бел-Ка» | 1 шт. | 24 800 |
| Ванная комната, кухня, спальня-кабинет, гардеробная | Межкомнатные (стеклянные) «РосДверь» (матировка/фьюзинг) | 4 шт. | 110 000 |
| Весь объект | Пластиковые окна (пленка под дерево венге) | 76 000 | |
| САНТЕХНИКА | |||
| Ванная комната | Ванна чугунная |
1 шт. | 19 900 |
| Унитаз, встраиваемая раковина |
2 шт. | 44 000 | |
| Полотенцесушитель Terma | 1 шт. | 6200 | |
| Ванная комната, кухня | Смесители, душевой комплект |
3 шт. | 22 800 |
| ЭЛЕКТРОУСТАНОВОЧНОЕ ОБОРУДОВАНИЕ и радиаторы | |||
| Весь объект | Розетки, выключатели |
55 шт. | 24 000 |
| Дизайн-радиаторы |
55 400 | ||
| ОСВЕТИТЕЛЬНЫЕ ПРИБОРЫ | |||
| Весь объект | Светильники: встроенные Zeon, люстра, люминесцентные, торшеры, бра (Италия, Китай) | 33 шт. | 320 000 |
| МЕБЕЛЬ И ДЕТАЛИ ИНТЕРЬЕРА (включая изготовленные на заказ) | |||
| Гардеробная, прихожая | Шкаф «Командор» | 1 шт. | 24 500 |
| Вешалка, зеркало (Россия) | 2 шт. | 7500 | |
| Кухня | Кухня "Мария" (без учета встраиваемой техники); столешница |
3,1 пог. м | 270 000 |
| Стол обеденный, стулья (Россия) | 5 шт. | 39 000 | |
| Гостиная | Диван раскладной «8 Марта» | 1 шт. | 52 800 |
| Кресло (Россия) | 1 шт. | 16 100 | |
| Столики журнальные «Дана» | 2 шт. | 15 800 | |
| Спальня-кабинет | Письменный стол с тумбой, платяной шкаф, полки |
85 780 | |
| Кресло, зеркало (Италия) | 2 шт. | 9900 | |
| Матрас Иkea, каркас кровати (изготовление на заказ) | 2 шт. | 20 800 | |
| Ванная комната, кабинет | Зеркала «Зеркальная мастерская Грань-99» | 6300 | |
| ВСЕГО (без учета стоимости работ и отделочных материалов) | 1 512 380 | ||
- Источник: Журнал «Идеи вашего дома»№133
Пока комментариев нет. Начните обсуждение!