
Фотообои, зеркала, лоджия с французским окном и кровать посередине превратили небольшую спальню в просторную комнату, полную света и воздуха. Отделочных материалов
- минимум, и пространство не перегружено

Вся мебель расположена вдоль стен, чтобы пространство в центре комнаты оставалось свободным для активных игр. Спальные и рабочие места размещены
в равнозначных по размеру и идентичных по дизайну нишах, которые оснащены полками
и встроенными светильниками. Такая компактная расстановка предметов мебели имеет один недостаток: детям будет не очень удобно заниматься

План до перерепланировки

План после перерепланировки
Жилые комнаты в плане почти квадратные, что по-зволяет поиграть с расстановкой мебели. Авот стены все несущие, за исключением перегородок санузлов. Поскольку опыта зонирования своей квартиры у нас маловато (глава семьи всю жизнь прожил в "распашонке", где и сейчас обитает семья), нужна помощь профессионалов. Казалось бы, при такой удачной планировке легко расставить мебель. Но хочется, чтобы меблировка была нестандартной: мы стремимся не только создать в доме уют, но и расположить предметы продуманно и удобно. Почитав журнал и увидев, как удачно вы решаете подобные проблемы, рискнули написать вам.
Предпочтений у нас не так много. Кухню, единственное вытянутое в плане помещение, лучше разделить на две зоны- рабочую и обеденную. Прихожую и гостиную мы видим светлыми и просторными, с минимальным количеством мебели. Авот в родительской спальне необходим большой шкаф. Вкомнате дочери, несмотря на скромные размеры, должно быть не только спальное, но и рабочее место. Не исключено, что в перспективе комната превратится в кабинет-библиотеку. Окно с балконной дверью желательно увеличить до пола, демонтировав для этого подоконный блок (что нетрудно, так как в нем нет монолитного железобетона), а с улицы его отсутствие будет незаметно благодаря кирпичному ограждению балкона. Важно учесть, что мы хотим сохранить два санузла, в которых нужно предусмотреть места для хранения бытовой химии и шкафчики для аксессуаров.
Что касается стиля, нам нравятся современные решения, но не исключено, что какие-то комнаты могут быть оформлены с элементами модерна. Иеще одно пожелание. Нашу старую квартиру украшают акварели деда- художника и педагога. Естественно, мы планируем перевезти их в новое жилье, и нужно отвести для этих картин место на стенах. Надеемся на вашу помощь.
Магия уюта
Поскольку все стены несущие, значительных изменений планировки квартиры не происходит, да этого и не требуется. Площадь и пропорции комнат позволяют сделать их уютными и удобными для жизни благодаря декорированию и расстановке мебели. Демонтажу подвергаются лишь перегородки ванной комнаты: сначала это помещение уменьшают, чтобы сделать нишу в комнате дочери и установить в ней шкаф-купе, а потом расширяют за счет коридора.
Стиль интерьера- эклектика с элементами этно. Это удачно соотносится с пожеланием хозяев осуществить связь прошлого и настоящего посредством предметов "с историей" (коллекции акварелей деда, обширной библиотеки). Вотделке используют теплые тона: кремово-коричневые, терракотовые и персиковые.
Вприхожей устанавливают легкий комод с зеркалом и компактный шкаф-купе с зеркальными фасадами (его встраивают во вновь образованную нишу слева от входной двери), что дает возможность зрительно расширить небольшое помещение. Комод из MDF, отделанных шпоном венге, подвешен на высоте 40см от уровня пола. Это позволяет разместить какие-то вещи (например, обувь) под ним, тем самым сэкономив и без того скромную площадь прихожей. Скрытая подсветка под комодом выполняет несколько функций. Благодаря ей этот достаточно массивный вместительный предмет мебели легко и непринужденно «повисает» над полом. Кроме того, свет подчеркивает белизну облицованного керамогранитом пола, акцентирует на нем внимание. Надо сказать, что авторы проекта уделяют существенное внимание освещению прихожей. Здесь можно разыграть различные световые сценарии. Помимо подсветки, скрытой под комодом, есть встроенный в потолок плафон-витраж и квадратные светильники, расположенные по его периметру, а также круглые точечные светильники в нише над зеркалом. Наконец, подсвечена картина, висящая над банкеткой. Изящная полупрозрачная перегородка из стекла, декорированного пленкой с рисунком, справа от входа в квартиру намечает границу коридора и в то же время является изысканным элементом декора.
Главное украшение коридора- художественная роспись на стене напротив ванной комнаты. Ей присущ восточный колорит, хорошо сочетающийся с "южной" цветовой гаммой, предложенной авторами проекта. Ориентальную тему поддерживают бамбуковые обои- они наклеены на потолок между сдвоенными фальшбалками и на стены. Благодаря такому оформлению потолка кажется, что над головой крыша, покрытая соломой. Бамбук делает интерьер уютным и теплым, напоминает о природе, что так необходимо в городе. Уложенный по диагонали ореховый ламинат, особенно ярко выделяющийся на фоне стен, покрытых светлой декоративной штукатуркой, придает пространству динамичность. За счет полупрозрачных перегородок между гостиной и коридором в последний, как и в прихожую, проникает естественный свет.
Раковину в хозяйском санузле встраивают в сделанную из гипсокартона и облицованную плиткой столешницу, а под нее устанавливают стиральную машину, спрятав ее за дверцей из матового стекла, что не нарушает продуманного соотношения прямолинейных (конструкция столешницы, раскладка плитки, зеркала, выступы) и плавных (формы сантехники) линий. Ниша над унитазом, образовавшаяся за счет встроенной системы инсталляции, предназначена для хранения туалетных принадлежностей. Над столешницей под потолком сделан выступ (высота- 40см, глубина- 15см), в который вмонтирована подсветка. Эта конструкция не только служит для размещения светильников, но и позволяет создать дополнительный рельеф. Выступ облицован коричневой плиткой, гармонирующей с коричневой полосой на стене над ванной, а также с облицовкой самой купели.
Гостевой санузел оформляют в контрастной коричнево-бежевой гамме. Столешница компактного умывальника, выполненная на заказ, занимает немного места, тем не менее под ней вполне можно поставить небольшой встроенный шкафчик.
Кухню и коридор разделяет распашная дверь с вставкой из полупрозрачного стекла. По просьбе авторов письма кухню делят на две зоны- рабочую и обеденную. Чтобы помещение не стало тесным, зонирование выполняют, применяя не объемные конструкции, а визуальные приемы- "отражающие" друг друга линии пола и потолка. Взоне приготовления пищи на пол укладывают керамо-
гранит и делают подшивной потолок из ГКЛ, а в столовой, в свою очередь,- ламинат и натяжной потолок. Подсветка, скрытая в нише за подшивным потолком над рабочей зоной, направлена на глянцевый натяжной потолок, поэтому он кажется еще светлее и выше. Обеденную зону с диваном и круглым абажуром над столом выделяют также обоями из бамбука. За счет терракотовых и медных тонов керамогранита, штор и обивки мебели в кухне возникает ощущение тепла, что достаточно актуально в условиях ветреного и дождливого питерского климата.
Гостиную оформляют в песочно-шоколадной гамме. Расположенная за диваном яркая контрастная конструкция, отделанная декоративной штукатуркой, привносит в интерьер разнообразие фактур и ассоциаций. Точечные светильники дают ровный рассеянный свет, а раздвижные двери из полупрозрачного стекла, журнальный столик со стеклянной столешницей и зеркальные вставки в нишах создают впечатление наполненного светом и воздухом пространства. Вкачестве напольного покрытия используют экономвариант- ламинат класса 32 (это класс, подходящий для жилых помещений с любой нагрузкой и офисных- со средней) под выбеленный дуб, который хорошо сочетается со светлыми стенами. Встроенные шкафы по обе стороны дверного проема не только функциональны (они служат для хранения вещей), но и весьма эффектны.
Благодаря увеличению площади комнаты дочери (за счет ванной комнаты) здесь размещают шкаф-купе, встроенный в образовавшуюся рядом с «влажной» зоной нишу. При этом радиатор переносят на стену. Так как хозяева квартиры хотят в будущем переоборудовать комнату дочери в кабинет, дизайнеры предусматривают минимальное переустройство в дальнейшем, обставляя ее мебелью, подходящей и для кабинета (большой угловой стол для занятий, стеллажи над рабочей и спальной зонами, раскладной диван вместо кровати).
Спальня родителей выдержана в общей стилистике, но при этом выглядит более просто и по-домашнему уютно. Ниши над изголовьем кровати оклеивают натуральными бамбуковыми обоями. Преобладающий здесь бежевый тон освежает и успокаивает. Демонтаж подоконного блока позволяет установить французское окно. Круглая кровать- не обязательная, но выразительная деталь интерьера. Ее можно заменить и традиционной прямоугольной, но последняя при диагональном размещении, предложенном авторами проекта, займет больше места, чем круглая. Тем не менее не стоит забывать, что для кровати в форме круга постельное белье и покрывало придется шить на заказ.
Сильные стороны проекта:
увеличение полезной площади хозяйского санузла
возможность переоборудовать комнату дочери в кабинет
гармоничный интерьер с удобными маршрутами движения
Слабые стороны проекта:
сложность согласования демонтажа подоконного блока в комнате дочери (скорее всего получить разрешение на это не удастся)
мало места для хранения вещей (в прихожей- шкаф только для верхней одежды, гардероба нет)
в комнате дочери ниша для встроенного шкафа вдается в пространство хозяйского санузла, что вызовет трудности при согласовании (возможно, это согласовать не удастся)
раскладывающийся диван в комнате дочери неудобен для сна
расширение хозяйского санузла за счет коридора потребует дополнительной гидроизоляции участка
| Проектная часть |
54 тыс. руб. |
| Авторский надзор |
18 тыс. руб. |
| Строительные и отделочные работы |
965 тыс. руб. |
| Строительные материалы |
388 тыс.руб. |
| Вид конструкции |
Материал |
Количество |
стоимость, руб. |
| ПОЛЫ |
| Спальня |
Ковролин (Бельгия) |
17,5м2 |
5500 |
| Весь объект |
Ламинат Quick Step |
56,6м2 |
38 480 |
| Керамическая плитка «Дождь в альпах», «Дерево» (Kerama Marazzi) |
26,9м2 |
27 900 |
| СТЕНЫ |
| «Фартук» кухни |
Керамическая плитка Вarrok |
3,6м2 |
4700 |
| Санузлы |
Керамическая плитка Kerama Marazzi |
47м2 |
46 000 |
| Спальня, кухня |
Обои (бамбук) |
2 рулона |
7200 |
| Остальное |
Обои под покраску (Германия) |
8 рулонов |
14 700 |
| Краска в/д Tikkurila, колер |
15л |
5850 |
| Декоративная штукатурка Oikos |
18кг |
25 300 |
| ПОТОЛКИ |
| Весь объект |
Натяжной потолок Carre Noir |
24,5м2 |
27 000 |
| Краска в/д Tikkurila |
14л |
5400 |
| ДВЕРИ (укомплектованные фурнитурой) |
| Весь объект |
Стальная (Россия); межкомнатные- Nero; стеклянные перегородки Bella |
8 шт. |
134 000 |
| САНТЕХНИКА |
| Хозяйский и гостевой санузлы |
Унитазы Ideal Standard; инсталляция |
4 шт. |
36 100 |
| Смесители, душевой гарнитур- Grohe |
3 шт. |
28 700 |
| Ванна Ravak, раковины Jika |
3 шт. |
37 500 |
| Полотенцесушители «Тругор» |
2 шт. |
14 000 |
| ЭЛЕКТРОУСТАНОВОЧНОЕ ОБОРУДОВАНИЕ |
| Весь объект |
Розетки, выключатели- Gira |
69 шт. |
27 340 |
| ОСВЕТИТЕЛЬНЫЕ ПРИБОРЫ |
| Весь объект |
Светильники (Италия) |
- |
84 300 |
| МЕБЕЛЬ И ДЕТАЛИ ИНТЕРЬЕРА (включая изготовленные на заказ) |
| Прихожая |
Комод с зеркалом (на заказ); пуф IКЕА |
- |
42 000 |
| Кухня |
Кухня Giulia Novars; стол, диван, стулья |
- |
230 000 |
| Гостиная |
Диван "8 Марта»; столик журнальный, тумба для ТВ (Италия); навесные шкафы, полка, столик (на заказ) |
- |
145 000 |
| Спальня |
Кровать "Бильбао" (Dream Land); столешница (на заказ); кресла |
- |
86 000 |
| Комната дочери |
Диван Mobel Zeit; стеллаж, стол, полки (на заказ); кресло (Италия) |
- |
79 000 |
| Весь объект |
Комплектующие встраиваемых шкафов |
- |
84 000 |
| ВСЕГО (без учета стоимости работ и расходных материалов) |
1 235 970 |

Подсветка имеет несколько уровней и сценариев включения, что обогащает интерьер и вносит разнообразие в его восприятие. Фальшбалки потока сделаны из ГКЛ. Бамбуковые обои более темного цвета усиливают рельефность конструкций

Натяжной потолок и напольное покрытие ненавязчиво,
но четко зонируют помещение. Глянцевой плиткой облицован
не только "фартук" рабочей зоны, но и вся стена над напольными шкафами, что выглядит очень эффектно

Очертания перегородок и линии уровней подшивного потолка были предопределены оригинальной формой кровати (модель "Бильбао",
Dream Land,
Д
Ш
В
- 2700
2610
510
мм, диаметр матраса
- 2200
мм),
она является доминантой комнаты. К
сожалению, из-за габаритов кровати ее можно поставить не в любой спальне: должно быть больше свободного пространства

Угловой стол с длинной верхней полкой, серия корпусной мебели, выполненные на заказ с отделкой ламинатином,
и встроенный в нишу раскладывающийся диван позволяют максимально задействовать небольшую площадь комнаты.
Выбор дивана вместо кровати дает возможность
девушке принимать в комнате друзей и подруг

План до перерепланировки

План после перерепланировки
Все, о чем мечтаем...
Объективные обстоятельства- скромная площадь квартиры, отсутствие возможностей для значительных переделок- не мешают дизайнеру не только выполнить перепланировку, о которой мечтали авторы письма, но и создать "дворцовый" интерьер, обычно требующий больших пространств. Этого удается достичь благодаря подбору оригинальной мебели и богатству декора, включающего лепнину, зеркала, фальшколонны, золоченые рамы ит.д. Несущие конструкции не затрагивают; некоторой корректировке подвергаются только очертания ванной комнаты- ее увеличивают за счет коридора, что влечет за собой дополнительную гидроизоляцию ванной.
Хозяева высказали только одно требование к перепланировке кухни: ее следовало разделить на две зоны- обеденную и рабочую. Зонировать вытянутое прямоугольное помещение несложно. Кухонную мебель размещают вдоль торцевой стены, смежной с санузлом, а столовую группу- у окна. Деревянными панелями на стене мебельной композиции придают П-образную форму. Варочную панель выносят на "остров", который одновременно служит границей двух зон. Зеркальный "фартук" визуально придает интерьеру глубину- кажется, что пространство продолжается за стенами. Встоловой зоне располагают обеденную группу на шесть персон с круглым столом. Столовую декорируют изящными гипсовыми полуколоннами с каннелюрами и зеркальными вставками на стенах. Зеркало от пола до потолка создает иллюзию огромного окна или сквозного проема. Все вместе похоже на уютный дворик-патио. Подшивные потолки из ГКЛ играют в этом "спектакле" важную роль: основная часть потолка становится ниже, а над обеденной зоной сохраняется первоначальный уровень. Врезультате за счет перепада высот возникает ощущение более высокого потолка над патио. Над круглым столом висит черная люстра из муранского стекла. Неоновая подсветка, спрятанная за гипсовой лепниной, придает люстре дополнительный блеск. Мебель из темного дерева уравновешена светлым фоном и поэтому не выглядит тяжеловесно.
Прихожая решена просто: слева от входа вдоль всей стены, примыкающей к ванной, стоит шкаф-купе. Из прихожей через открытый проем открывается вид на гостиную.
После расширения хозяйского санузла помимо умывальника и унитаза там размещают большую угловую купель с гидромассажем и стиральную машину. Обстановка здесь довольно эклектичная: зеркало в барочном стиле, тумба под раковину в духе рококо, классический унитаз и современная ванна.
Вгостевом санузле устанавливают унитаз и умывальник, а в нишу между стеной и вентшахтой встраивают шкафчик для хозяйственных мелочей. Вотличие от других уголков квартиры здесь используют минимум цвета (белый и серо-серебристый) и декора- только крупный орнамент на плитке, которой облицована стена напротив двери.
Вгостиной, как и в кухне, автор проекта также применяет контрастные сочетания. Розово-сиреневый цвет стен оттеняет и подчеркивает выразительность темной (от черной до темно-серой) мебели с серебристой декоративной отделкой- шкафов, расположенных по обе стороны от двери, и стойки для телевизора, обрамленной посеребренным багетом. За диваном- декоративный элемент: гипсовые полуколонны в сочетании с зеркальной стеной имитируют проем. Потолок украшает классическая лепнина.
Скромные размеры квадратной в плане спальни не позволяют устроить здесь отдельную гардеробную- ее заменяет большой шкаф. Комнату обставляют мебелью в стиле ар деко. Изголовье кровати выделено с помощью панно из мозаики, обрамленного гипсовым молдингом и карнизом. Потолки с подсветкой подчеркивают спальную зону. Колористическое решение спальни строится на сочетании пастельных тонов: белого, различных оттенков коричневого (от кофе с молоком до шоколадного) и серого (от жемчужного до серо-голубого).
Комната дочери, как и все в этом проекте,- романтичная и немного гламурная. Она не выбивается из общей стилистики и выглядит даже более декоративной, чем остальные помещения, поскольку в ней собраны мотивы дизайна всей квартиры: зеркальные узорчатые дверцы шкафов, темная и белая мебель на причудливых точеных ножках, серебряные детали и розово-сиреневый фон.
Сильные стороны проекта:
увеличение площади хозяйского санузла
предусмотрено большое количество мест для хранения вещей
двухрядное расположение кухонной мебели, что удобно,
но редко возможно в типовых квартирах
Слабые стороны проекта:
из-за малой площади квартиры нет отдельной гардеробной
монотонная планировка прихожей и коридора, в который выходят двери всех комнат
| Проектная часть |
158 тыс. руб. |
| Авторский надзор |
29 тыс. руб. |
| Строительные и отделочные работы |
920 тыс. руб. |
| Строительные материалы |
420 тыс.руб. |
| Вид конструкции |
Материал |
Количество |
Cтоимость, руб. |
| ПОЛЫ |
| Гостевой санузел |
Плитка Impronta Italgranit |
3м2 |
5920 |
| Остальное |
Керамическая плитка Porcelanosa |
36,5м2 |
53 800 |
| Массивная доска Nolte (дуб) |
37,1м2 |
80 800 |
| СТЕНЫ |
| Гостиная, кухня |
Зеркало («Зеркальная Фабрика») |
11м2 |
11 000 |
| Кухня |
Декоративный камень (Россия) |
12м2 |
15 600 |
| Санузлы |
Керамическая плитка Impronta Italgranit |
17м2 |
22 600 |
| Спальня,санузел |
Мозаика Bisazza |
15,6м2 |
52 700 |
| Санузел, кухня |
Декоративная штукатурка Beton D`Archi |
16м2 |
48 000 |
| Остальное |
Обои под покраску Marburq |
6 рулонов |
10 800 |
| Краска в/д Tikkurila, колер |
34л |
13 700 |
| ПОТОЛКИ |
| Санузлы |
Натяжной потолок CLIPSO |
8,8м2 |
21 000 |
| Остальное |
Краска в/д Caparol |
15л |
8250 |
| ДВЕРИ (укомплектованные фурнитурой) |
| Весь объект |
Стальная "Бел-КА"; распашные Stella |
6 шт. |
145 000 |
| САНТЕХНИКА |
| Хозяйский и гостевой санузлы |
Ванна Jacuzzi; унитаз Cersanit; унитаз с бачком; раковина Jika; раковина с тумбой; зеркало (Россия); инсталляция |
8 шт. |
108 500 |
| Смесители- Hansa, Bandini |
2 шт. |
29 860 |
| Полотенцесушитель Margaroli |
1 шт. |
11 400 |
| ЭЛЕКТРОУСТАНОВОЧНОЕ ОБОРУДОВАНИЕ |
| Весь объект |
Розетки, выключатели- Legrand |
86 шт. |
77 390 |
| ОСВЕТИТЕЛЬНЫЕ ПРИБОРЫ |
| Весь объект |
Светильники, неоновые лампы |
40 шт. |
99 300 |
| МЕБЕЛЬ И ДЕТАЛИ ИНТЕРЬЕРА (включая изготовленные на заказ) |
| Прихожая |
Встроенный шкаф Visconti |
- |
68 000 |
| Кухня |
Кухня "Атлас-Люкс»; стол, стулья |
- |
451 000 |
| Гостиная |
Диван, кресла- Zanotta |
3 шт. |
156 000 |
| Столик Aqua (Edra); шкаф с дверцами |
4 шт. |
90 750 |
| Спальня |
Кровать, тумба, комод- San Marco |
4 шт. |
109 700 |
| Шкаф Fratelli Boffi |
1 шт. |
240 000 |
| Комната дочери |
Комплект мебели Gervasoni |
6 шт. |
763 000 |
| Весь объект |
Колонны, карнизы, рамки- Decomaster |
- |
51 400 |
| ВСЕГО (без учета стоимости работ и расходных материалов) |
2 745 470 |

Изысканную девичью комнату, выдержанную в стилистике ар нуво и ар деко, будет трудно в дальнейшем плавно и без затрат переоборудовать ее в полноценный рабочий кабинет
- придется менять почти всю меблировку

Венчает кухонный "остров" с варочной поверхностью подвешенная
на цепях декоративная полка
- менсола. В
ее нижнюю часть встраивают люминесцентные лампы, которые закрывают стеклом, а сверху можно размещать кухонную утварь. Автор проекта предлагает отказаться от вытяжки, в этом случае необходимо рассмотреть приточно-вытяжную вентиляцию в подшивном потолке или применить принудительную вентиляцию

Зеркальный "фартук"
- интересное, эффектное решение для оформления кухни, но он потребует от хозяйки пристального внимания и тщательного ухода
- чтобы зеркало всегда сияло чистотой, придется за ним постоянно следить. В
зоне столовой овальный стол на шесть персон слишком велик, поэтому хозяевам и гостям
здесь будет довольно тесно

Изголовье кровати дополнительно выделено мозаичным панно с узором из серебристых и белых тессер, обрамленных профилем и широким карнизом. Эта деталь хорошо сочетается с белыми гардеробом и комодом и уравновешивает их массивные громоздкие формы. Потолочные светильники в виде спиралей из струящихся бусин
подчеркивают изящно выполненное оформление ложа

План до перерепланировки

План после перерепланировки
Письмо 2 (двухкомнатная квартира)
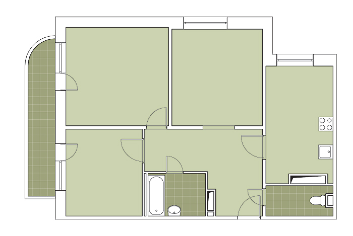
Здравствуйте, уважаемая редакция любимого журнала! Скоро приблизится долгожданный момент: мы отпразднуем новоселье. Пока же есть время решить, как будет выглядеть квартира. Очень надеемся на вашу помощь. Среди опубликованных проектов мы ничего похожего не нашли- вы чаще рассматриваете типовые планировки в высотных домах. Анаша «двушка» находится на третьем этаже кирпичной пятиэтажки. Серию дома не знаем, но думаем, что похожая планировка может встретиться и у других жителей городов России.
Наша семья состоит из четырех человек: я, муж, десятилетняя дочь и шестилетний сын. Как лучше обустроить квартиру для комфортного проживания? Есть ли возможность сделать из нее трехкомнатную, оставив на своих местах кухню, ванную и туалет? Хочется, чтобы были гостиная, спальня и детская. Иможно ли комнату детей разделить на две зоны- для девочки и мальчика- без использования большой перегородки? Какие еще есть возможности для разделения пространства? Желательно, чтобы у каждого была своя территория.
Кухню мы видим современной, светлой, с круглым столом. Поскольку в доме проведен газ, нужно найти место для установки индивидуального газового котла. Прихожая у нас большая- 13,6м2- к тому же в нее выходит шесть дверей. Хотелось бы грамотно распорядиться площадью, поставить шкаф для одежды (возможно, не один, а два) и пуф для переобувания, повесить зеркало. Входную зону мы представляем свободной, не слишком заставленной мебелью. Иеще- освещение: у нас сейчас одна люстра по старинке висит в центре прихожей, а нам с мужем нравится решение с несколькими источниками света.
Теперь о потолках. Они невысокие, поэтому нежелательно понижать их за счет гипсокартона; нужно, насколько возможно, сохранить высоту, при этом грамотно распределив потоки света.
Кладовую решили превратить в гардеробную для детей. Вгостиной планируем вместе смотреть телевизор и принимать гостей, хотя муж считает, что можно обойтись и без нее, поскольку площадь кухни позволяет устроить гостиную там.
Обытовых предметах. Мы планируем установить стиральную машину в ванной комнате или, возможно, в специальной нише в коридоре. Еще нужен накопительный бойлер, хотя затрудняемся определиться с его месторасположением.
Мы видим все комнаты в теплых тонах, с небольшим количеством акцентов холодного цвета. Аможет быть, вы предложите какую-то изюминку интерьера, чтобы это было неожиданным для нас и приходящих в гости друзей. Вопросов и задач немало, самим не справиться. Убедительно просим помочь с разработкой дизайн-проекта квартиры. Ввыборе стилистики мы полностью полагаемся на вас. Заранее благодарны.
C уважением, ваши постоянные читатели
Марина, Эдуард, Ксения и Кирилл, г.Чебоксары
Полосатый дом
Владельцы квартиры хотят разделить ее на пять зон: гостиную, спальню, кухню, а в детской- зоны мальчика и девочки. Для достижения поставленной задачи переносят перегородку между кухней и комнатой. Ближе к входу в квартиру располагают перегородку между прихожей и этой же комнатой, что позволяет, увеличив последнюю, организовать здесь зону гостиной и на оставшейся площади спланировать спальню для родителей. Возводят перегородки-ниши для телевизора в гостиной (она примыкает к ванной) и для встроенных шкафов-купе в спальне, прихожей и детской.
Площадь детской увеличивают посредством присо-единения кладовой. Хозяева предполагали устроить в ней гардеробную для детей, но дизайнер предлагает организовать там спальное место одного из ребят, а для хранения вещей предусматривает протяженный (4,5м длиной) шкаф-купе. По площади он (2,7м2) почти не уступает бывшей кладовой (3м2). Главное же достоинство такого решения- в организации достаточно укромной приватной зоны, что очень важно для разнополых детей, проживающих в одной комнате.
Учтены все пожелания, кроме круглого стола в кухне- там располагают прямоугольный стол и угловой диван. Поскольку предпочтения владельцев квартиры- функционализм, рационализм, светлые тона в интерьере, в дизайне упор сделан на лаконизм и простые геометрические формы. Авыразительности интерьера достигают благодаря широкому спектру цветовой палитры (оттенки коричневого, фисташковый, сине-серый, голубой, оранжевый) и введению акцентов: клетчатые и полосатые детали и фрагменты отделки; объемные светильники; богатство фактур (мозаика, керамогранит, дерево, глянцевые поверхности, длинноворсовые ковры). Напольным покрытием служат керамогранит (прихожая, гостиная, санузлы и кухня), паркетная доска «орех» (спальня) и «бук» (детская). Там, где покрытие керамогранитное, предложено установить систему теплого пола. Для монтажа осветительных приборов в гостиной, кухне, прихожей и туалете используют подшивные потолочные конструкции. Стены отделывают панелями, облицованными шпоном с металлическими раскладками (гостиная, прихожая), бамбуковыми обоями (спальня), а также плиткой и краской.
Вприхожей напротив входа встраивают шкаф-купе длиной 3м, а справа от входной двери размещают вешалку с полками и скамьей. Здесь оформление строится на контрасте поверхностей цвета яичной скорлупы (двери шкафа, покраска стены, потолок) и цвета ореха (панели, покрытые шпоном, керамогранит).
Туалет и ванная комната остаются на своих местах, и даже расположение сантехприборов не меняется, только в туалете появляется небольшая раковина. При данной планировке в ванной и туалете также переносят дверные проемы, и двери придется открывать внутрь санузлов. Внишах, образующихся по обе стороны выступа для инсталляции унитаза, устанавливают деревянные полки. Вванной комнате, выдержанной в молочно-кофейных тонах, тоже появляется ниша с полками и подсветкой- над купелью.
Кухня, в отличие от этих помещений, более насыщена цветом: фасады мебели, занимающей угол, по большей части оранжевые, шторы и подушки сделанного на заказ диванчика- тоже, а на "фартуке"- желтая плитка.
Гостиная представляет собой только зону отдыха. Все, что здесь есть,- это угловой диван (его изготовляют на заказ) с большим количеством подушек, низкий журнальный столик и теле- и аудиооборудование, размещенное в глубокой нише напротив. Задействованы те же тона, что и в кухне, и так же использована тема полос (горизонтальные раскладки на стенах, встроенные светильники в стенах и на потолке) и клеток (плиты керамогранита, портал ниши, квадратные плафоны, обивка дивана, подушки). Высота потолка небольшая (всего 2,5м), поэтому предложено отказаться от подвесных светильников в пользу встроенных в подшивной потолок плафонов. Восновном понижение скажется только на прихожей и гостиной. Здесь также будут задействованы и перегородки, в которые монтируют такие же люминесцентные лампы, закрытые матовым стеклом. Таким образом, получают не направленный свет, а мягкое освещение.
Спальню выдерживают в более спокойных, мягких пастельных тонах: больше белого, шторы и покрывало- цвета морской волны.
Детская- самая разноцветная и веселая комната. Причем этого эффекта достигают исключительно за счет текстиля, что очень удобно в дальнейшем: смена покрывал и ковриков позволит кардинально менять эмоциональный настрой. Поворотные светильники на шине позволят детям самостоятельно регулировать освещение. Есть один спорный момент: место в нише, куда встраивают полки, можно было бы использовать более рационально.
Сильные стороны проекта:
выделена гостиная
кухня-столовая автономна и отделена раздвижной дверью от гостиной
обилие встроенной мебели для хранения вещей
зонирование детской предполагает, что дети будут заниматься за одним столом, а спальные зоны разнесены
Слабые стороны проекта:
интерьер небольших помещений перегружен отделкой из шпона темного цвета и обилием горизонтальных линий- это может утомлять
гостиная становится проходной комнатой
диван для гостиной потребуется изготовить на заказ
| Проектная часть |
130400руб. |
| Авторский надзор |
1500руб. |
| Строительные и отделочные работы |
704200руб. |
| Строительные материалы |
282тыс.руб |
| Вид конструкции |
Материал |
Количество |
Cтоимость, руб. |
| ПОЛЫ |
| Спальня, детская |
Паркетная доска Tarkett |
37,9м2 |
74 890 |
| Остальное |
Керамогранит City (SantAgostino ) |
41,2м2 |
58 440 |
| СТЕНЫ |
| «Фартук» кухни |
Керамогранит City (SantAgostino ) |
4,1м2 |
3500 |
| Ванная комната, туалет |
Мозаика Bisazza |
2,2м2 |
5500 |
| Керамическая плитка Nowa Gala |
11м2 |
9400 |
| Гостиная, прихожая |
Стеновые панели LightDeco ("ШкоМ») |
17м2 |
42 000 |
| Спальня |
Бамбуковые обои |
1 рулон |
1700 |
| Остальное |
Краска в/д Beckers |
15л |
6300 |
| ПОТОЛКИ |
| Весь объект |
Краска в/д Beckers |
7л |
3000 |
| ДВЕРИ (укомплектованные фурнитурой) |
| Весь объект |
Стальная- "Контур"; межкомнатные, раздвижная- Barausse |
6 шт. |
93 600 |
| САНТЕХНИКА |
| Ванная комната, туалет |
Ванна, раковины, унитаз- Ideal Standard; смесители Grohe; инсталляция для унитаза Geberit |
7 шт. |
69 100 |
| ЭЛЕКТРОУСТАНОВОЧНОЕ ОБОРУДОВАНИЕ |
| Весь объект |
Розетки, выключатели- Olas (ABB) |
44 шт. |
21 230 |
| ОСВЕТИТЕЛЬНЫЕ ПРИБОРЫ |
| Весь объект |
Светильники, люминесцентные лампы (Италия, Турция) |
- |
89 700 |
| МЕБЕЛЬ И ДЕТАЛИ ИНТЕРЬЕРА (включая изготовленные на заказ) |
| Прихожая |
Шкаф-купе Mobilform |
- |
24 100 |
| Кухня |
Кухня, сиденье- Ginger (Veneta Cucine) |
- |
322 000 |
| Стулья, стол обеденный (Италия) |
3 шт. |
23 000 |
| Спальня |
Шкаф-купе Mobilform |
- |
28 200 |
| Кровать, тумбочки, комод- Porada |
- |
89 900 |
| Детская |
Корпусная мебель CIA International |
- |
275 000 |
| ВСЕГО (без учета стоимости работ и расходных материалов) |
1 240 560 |
Чтобы выделить гостиную, пришлось соорудить доста-точно глубокую нишу, которая похожа на альков (альков- от араб. alqubba- "шатер", маленькая комната- углубление, ниша в стене). Цельности архитектурного решения достигают за счет отделки стеновыми панелями системы LightDeco и алюминиевых профилей
Определенно, большую часть времени обитатели квартиры будут проводить в кухне, где диван, выполненный из таких же материалов, что и фасады, органично дополняет мебельную композицию
Сознательно предлагаемая архитектором симметрия интерьера
призвана создавать настроение стабильности (что и требуется для полноценного отдыха).
Расположенная по центру стены кровать, строгие вертикальные линии деревянных "рустов",
лаконичная форма светильника, натуральные разнофактурные материалы-
все это избавляет пространство от навязчивой ноты псевдоромантизма, часто присутствующей в оформлении спален
Единое для всех помещений стилевое начало- графичность рисунка отделочных материалов- поддержано горизонтальными полосами алюминиевых раскладок. Тему полос продолжает вытянутый прямоугольный плафон светильника, встроенного
в подшивной потолок. Простенок между входной дверью и входом в детскую обрамлен
с двух сторон вертикальными наличниками, в которые заключено зеркало
Стол в виде буквы «Г» расположен у окна, так что
большую часть дня можно заниматься при дневном свете. Правда, выкрашенные темно-синей краской оконные откосы будут не отражать, а скрадывать часть естественного освещения, хотя эта деталь придает комнате выразительность


План до перепланировки

План после перепланировки
За круглым столом
Хозяева квартиры хотели бы без глобальной перепланировки выделить третью комнату- гостиную, а детскую поделить на зоны для девочки и мальчика. Первую задачу авторы проекта решают путем объединения прихожей и кухни и присоединения к получившемуся пространству части спальни. Для этого переносят перегородку, разделяющую прихожую и спальню, что помимо создания полноценной гостиной позволяет расширить проход в зону кухни. Минус такого решения- сокращение площади жилой комнаты на 3,6м2, но и оставшихся 13,8м2 вполне достаточно для спальни. Ввозникшем в результате преобразования помещении выделены функциональные зоны: отдыха- перед телевизором (на площади прихожей и части спальни), готовки- в кухне (примыкающей к ванной), столовая- у окна.
Вторая задача- зонирование детской- тоже решается вполне удачно: спальные и рабочие места изолируют посредством неширокой и невысокой перегородки, зоны выделяют цветом. Недостаток планировки детской в том, что рабочие столы расположены рядом, дети сидят напротив и (учитывая разницу в возрасте и интересах) могут мешать друг другу выполнять уроки или заниматься своими делами. Кроме того, рабочие столы находятся в середине комнаты и удалены от окна- естественного источника света, который не заменят самые совершенные светильники. Так что задачи, поставленные авторами письма, решены с незначительными издержками.
Интерьер получился современным, эмоциональным. Он построен на контрастах цвета (светлый фон с акцентами коричневого, желтого и оранжевого), текстур (богатая текстура дерева и гладкие однотонные материалы) и фактур (шероховатые, матовые и глянцевые поверхности). Графическая тема дизайна- форма круга. Она подсказана круглым столом в столовой, о котором мечтали хозяева квартиры, и продолжена во всех комнатах- на потолке, стенах и полу. Возможно, любителям лаконичных линий это покажется слишком навязчивым, особенно то, что круги на потолке выложены из ламината и обрамлены молдингом- несколько китчевое решение.
Несмотря на уменьшение прихожей, она остается достаточно просторной. Справа от входной двери размещают вешалку, обувницу и зеркало, слева- пуф. Хотя предложено поставить открытую вешалку, но места хватит и для неглубокого шкафа-купе с вешалками, расположенными поперек. Стены прихожей оклеивают обоями в горизонтальную полоску с металлическим блеском. Их же используют как основные в остальных помещениях и зонах, так что все связано стилистически, а пространство визуально расширяется.
Гостиную от прихожей отделяет декоративная перегородка переменной высоты: у стены она упирается в потолок, а большая ее часть имеет высоту 1м и не мешает свету проникать в прихожую. Тема круга присутствует и здесь, в соответствующих геометрических фигурах, выполненных из ламината с текстурой эбенового дерева, на потолке и полу. Яркие оранжевые пятна позволяют выделить эту зону, сконцентрировать на ней внимание и закрепить за гостиной центральное место в квартире- это символический семейный очаг.
Тот же прием используют в кухне-столовой.
Авторы проекта компенсируют потерю части площади спальни тем, что к ней присоединяют утепленную лоджию. Для этого выполняют демонтаж подоконного блока и устанавливают стеклянные раздвижные двери. Кровать ставят посередине комнаты и отделяют ее от шкафа-купе с зеркальными дверцами декоративной перегородкой. Чтобы визуально облегчить конструкцию последней, в ней делают круглое отверстие, в которое монтируют полки. Форма круга и на подшивном потолке: вставка из ламината (как в гостиной), обрамленная молдингом. Для создания романтичной атмосферы одну из стен оклеивают фотообоями, а остальные, чтобы не отвлекать внимание от центральных деталей, покрывают белой краской.
Детскую делят на две зоны при помощи легкой декоративной конструкции- неширокой перегородки из ГКЛ со скругленными углами и выступами, а также цвета: зону для девочки (ближе к двери) выполняют в оранжевых тонах, а для мальчика (у окна)- в желтых. Обе половины включают спальные и рабочие места, а также полки для хранения книг и игрушек. Кладовую преобразуют в гардеробную для детских вещей и одежды.
Цветовое решение ванной комнаты выдержано в духе общей стилистики квартиры. На две противоположные стены вешают зеркала, что зрительно расширяет пространство. Этому способствует и глянцевый натяжной потолок. Раковину и ванну выполняют на заказ из литьевого мрамора шоколадного цвета.
Сильные стороны проекта:
организация гостиной и рациональное использование всей площади квартиры
(прихожую значительно уменьшают)
зонирование детской без использования объемных конструкций, препятствующих естественному освещению
удобная столешница- раковина с двумя умывальниками для большой семьи
Слабые стороны проекта:
двери в санузлы просматриваются из зоны гостиной
обилие изделий сложных форм, выполненных на заказ, что делает проект дороже и увеличивает сроки реализации
дети будут сидеть друг напротив друга, что создаст помехи в учебе
в связи с демонтажом подоконного блока на лоджии и установкой раздвижных дверей потребуется утепление спальни и лоджии
кухню видно из прихожей
| Проектная часть |
125 тыс. руб. |
| Авторский надзор |
15 тыс. руб. |
| Строительные и отделочные работы |
650 тыс. руб. |
| Строительные материалы |
210 тыс.руб. |
| Вид конструкции |
Материал |
Количество |
Cтоимость, руб. |
| ПОЛЫ |
| Весь объект |
Ламинат Pergo; керамогранит ABK |
79,5м2 |
79 850 |
| СТЕНЫ |
| Ванная, туалет |
Керамогранит ABK |
38м2 |
37 300 |
| Детская |
Виниловые обои под покраску |
1 рулон |
1300 |
| Гостиная, кухня |
Обои Virtue (Harlequin) |
6 рулонов |
20 800 |
| Спальня |
Фотообои (печать, на заказ) |
- |
7000 |
| Лоджия |
Штукатурка Rustic (Fractalis) |
4м2 |
6000 |
| Остальное |
Краска в/д, колер Tikkurila |
27л |
12 550 |
| ПОТОЛКИ |
| Ванная, туалет |
Натяжной Clipso; панели LightDeco |
9,6м2 |
20 260 |
| Остальное |
Краска в/д Tikkurila |
18л |
5800 |
| ДВЕРИ (укомплектованные фурнитурой) |
| Весь объект |
Межкомнатные, раздвижные- Sahara |
4 шт. |
126 900 |
| САНТЕХНИКА |
| Ванная комната |
Ванна Jacob Delafon; раковина Montelli |
2 шт. |
83 000 |
| Туалет |
Унитаз и раковина- Odeon; инсталляция |
3 шт. |
14 900 |
| Ванная комната, туалет |
Полотенцесушитель (Россия); смесители, душевой гарнитур- Damixa |
5 шт. |
30 900 |
| ЭЛЕКТРОУСТАНОВОЧНОЕ ОБОРУДОВАНИЕ |
| Весь объект |
Розетки, выключатели- Legrand |
56 шт. |
28 300 |
| ОСВЕТИТЕЛЬНЫЕ ПРИБОРЫ |
| Весь объект |
Светильники (Италия, Германия) |
55 шт. |
87 500 |
| МЕБЕЛЬ И ДЕТАЛИ ИНТЕРЬЕРА (включая изготовленные на заказ) |
| Прихожая |
Прихожая Mr. Doors; пуф (Россия) |
- |
35 490 |
| Кухня-столовая |
Кухня Cucine GORY, столешница (кориан) |
2,9 пог. м |
89 800 |
| Столовая группа Tonin |
5 шт. |
37 100 |
| Гостиная |
Диван Round (Inventa); столик Tonin |
2 шт. |
77 000 |
| Мебельная композиция Mr. Doors |
компл. |
68 100 |
| Спальня |
Кровать Krea (FPL); гардероб Mr. Doors |
- |
129 000 |
| Обрамление «окошка» с полкой |
- |
11 000 |
| Детская |
Кровати, столы- Tumidei; шкаф, полки- Mr. Doors; кресла (Италия) |
- |
148 000 |
| Лоджия |
Консоль, зеркало (ламинат); стул Tonin |
3 шт. |
24 900 |
| ВСЕГО (без учета стоимости работ и расходных материалов) |
1 182 750 |
Пока комментариев нет. Начните обсуждение!