Простор и компактность: несколько дизайн-проектов

Восемь вариантов перепланировки четырехкомнатной квартиры общей площадью 100,8 м2 в панельном доме серии КОПЭ.

Простор и компактность: несколько дизайн-проектовКухня-столовая Простор и компактность: несколько дизайн-проектовПланировка после реконструкции

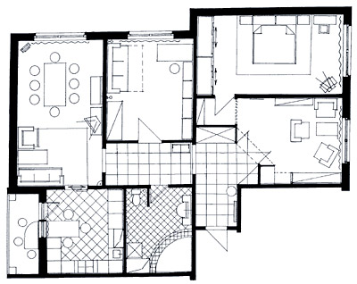
Сегодня мы хотим поговорить о четырехкомнатной квартире в жилом здании серии КОПЭ. Общая площадь квартиры100,8м2, жилая- 64,7м2. Высота потолков- 2,64м.

Прежде чем приступить к ремонту с перепланировкой, необходимо получить в МосжилНИИпроекте техническое заключение о состоянии конструкций вашего жилья. Кроме того, может потребоваться разрешение на проведение работ от районной Межведомственной комиссии.

Простор и компактность: несколько дизайн-проектовПервоначальная планировка квартиры

Геометрия- основа формообразования

Использование простых геометрических форм в интерьере на первый взгляд может показаться скучным решением. Но это только на первый взгляд. Фантазия и умение видеть объем создадут интерьер, в котором найдется место и для самого строгого и придирчивого приверженца традиций, и для любителя новизны.

Предлагаемый вариант «типовушки» рассчитан на семью с ребенком. Здесь удобно будет принимать гостей в любое время суток и в любом количестве, поскольку пространство квартиры легко делится на гостевую и спальную зоны. Этому соответствует и оформление. Так в столовой заметен некоторый отход от стереотипного представления о ее функциональном назначении, по подбору мебели она скорее похожа на гостиную. На первый взгляд непригодный для размещения всей семьи, небольшой круглый стол в центре комнаты легко раскладывается, принимая овальные формы и довольно внушительные размеры, и подчеркивая своими линиями полукруглую форму дивана. Люстра, выполненная по индивидуальному проекту, вращается, а электрический свет, проникая сквозь щели конуса, отбрасывает на потолок прямые лучи подобно небесному светилу.

В интерьере гостиной используются предметы простых геометрических форм: тумбы и стеклянные витрины в виде цилиндров, светильники в виде конусов, даже точечные галогеновые лампочки встроены в эллипс из гипсокартона, зрительно объединяющий всю гостиную в единое целое.

В квартире много стеклянных предметов. Прозрачные витрины и шкафчики могут вместить в себя предметы декоративно-прикладного искусства или веселые безделушки. Даже в спальне есть изделия из стекла. Хотя конечно же центральным элементом этой комнаты традиционно остается кровать. Впредлагаемом варианте она вознесена на широкий подиум, и дальнейшее повышение уровня пола дополнительно акцентирует на ней внимание.

Виды работ Помещения Материалы Кол-во в ед.изм. Стоимость в $
ед. изм. общая
Отделка поверхностей:
полов гостиная, столовая, детская, спальня паркет 79,2м2 30 2376
прихожая, кухня напольная керамическая плитка (матовая) 3030см 18,43м2 30 553
санузел напольная керамическая плитка (матовая) 2020см 7,79м2 20 155,8
спальня ковролин 10,35м2 18 186,3
стен гостиная, прихожая, столовая, кухня, спальня водоэмульсионная краска 179,8м2 2 359,6
санузел настенная керамическая плитка 24,57м2 30 737,1
детская обои 11,8м2 3 35,4
потолков столовая, кухня, детская, спальня подшивной 63,5м2 2,5 159
прихожая, гостиная водоэмульсионная краска 30,9м2 2 61,8
санузел реечный 5,79м2 45 260,6
Установка конструкций:
дверей входная металлическая, обшитая внутри деревянными панелями 1 шт. 850 850
санузел, спальня, детская межкомнатные деревянные гладкие 4 шт. 350 1400
окон гостиная, столовая, спальня, детская пластиковые ("Московскиеокна») 12,2м2 200 2440
перегородок весь объект гипсокартон 20,72м2 30 621,6
Модернизация сетей:
электрической весь объект галогеновые светильники 28 шт. 10 280
люстры 5 шт. 100 500
бра 6 шт. 50 300
розетки Modulex 35 шт. 18 630
тепловой гостиная, столовая, спальня, детская радиаторы (Италия) 5 шт. 150 750
санузел полотенцесушитель 1 шт. 300 300
водопроводной, канализационной санузел замена водопроводных и канализационных труб 6 м/п 50 300
Всего 13256,2

Простор и компактность: несколько дизайн-проектовГостиная Простор и компактность: несколько дизайн-проектовПланировка после реконструкции

Простое решение

На месте тесной кухни появилась мечта любителя наслаждений- просторная ванная комната с душевой кабиной, сауной и выходом прямо в лоджию.

Данный вариант квартиры может подойти для семьи из трех человек. Новая планировка достаточно проста, так как авторы видели свою основную задачу в создании современного интерьера не с помощью оригинального планировочного решения (всилу конструктивных ограничений), а на контрасте сочетаний разнообразных линий мебели и фактур отделочных материалов, дополняя все это изысканным подбором аксессуаров. Скучная плоскость потолков скрывается с помощью декоративных балок и подвесных элементов различной геометрической формы, выполненных из гипсокартона. Помещения квартиры разделены на две зоны- гостевую и спальную. Объединяющими элементами при таком жестком разграничении безусловно являются фактуры покрытий пола и линии декоративных элементов потолка.

Простор и компактность: несколько дизайн-проектовКухня Простор и компактность: несколько дизайн-проектовПланировка после реконструкции

Течение пространства

Tяга к свободному пространству потребовала объединения холла, гостиной, кухни и столовой в единое целое. При этом в центре композиции безусловно находится холл. Пространство- основа всех интерьеров- свободно перетекает из помещения в помещение, бродит по маленьким закоулкам, фильтруется сквозь сетку диагональных балок и образует вихревой поток вокруг колонн гостиной. Стена в холле, несмотря на то, что сделана из стеклоблоков, надежно скрывает интерьер спальни. Гостю, вошедшему в квартиру, скорее захочется повернуть налево, пройти мимо аквариума в гостиную, а затем пойти попить чайку на кухню, чем пытаться проникнуть через эту стену. Яркие цветовые пятна- мебель, цветы и безделушки позволят глазу расслабиться, свободно переходя с предмета на предмет, и отдохнуть, внимая течению пространства.

Виды работ Помещения Материалы Кол-во в ед.изм. Стоимость в $
ед. изм. общая
Отделка поверхностей:
полов гостиная, кухня, спальни половая доска 70,6м2 115 8119
ванная комната, санузел, холл природный камень 34м2 140 4760
стен гостиная, кухня, чистовая шпаклевка под окраску 198,6м2 45 8937
холл, спальни водоэмульсионная краска 198,6м2 2 397,2
ванная комната, санузел настенная керамическая плитка 49м2 55 2695
потолков гостиная, кухня, ванная комната гипсокартон 48,2м2 30 1446
санузел, холл декоративные панели 20,8м2 18 374,4
спальни, коридор шпаклевка и водоэмульсионная краска 35,6м2 17 605,2
Установка конструкций:
дверей входная металлическая с двухсторонней обшивкой деревом 1 шт. 800 800
спальня межкомнатная двухстворчатая 1 шт. 400 400
коридор, спальня, ванная комната, с/у межкомнатная деревянная со вставками из декоративного стекла 4 шт. 400 1600
окон, гостиная, кухня, спальни, деревянные на метал. каркасе 19,8м2 320 6336
подоконников ванная комната пластиковые (подмрамор) 11 м/п 50 550
перегородок весь объект кирпич 3,8м3 75 285
Модернизация сетей:
электрической весь объект точечные светильники 32 шт. 12 384
люстры 4 шт. 300 1200
бра 5 шт. 150 750
розетки и выключатели Modulex 42 шт. 18 756
тепловой холл, санузел устройство электроподогрева 20,8м2 200 4160
гостиная, кухня, радиаторы 6 шт. 150 900
спальни, ванная комната термодатчики 6 шт. 25 150
водопроводной, канализационной ванная комната, санузел замена водопроводных и канализационных труб 10 м/п 50 500
Всего 46104,8

Простор и компактность: несколько дизайн-проектовГостиная Простор и компактность: несколько дизайн-проектовПланировка после реконструкции

Новое в обычном

Самая обычная квартира для обыкновенной семьи- родители и ребенок-подросток. Укаждого свой круг интересов, а соответственно и свой любимый уголок в квартире. Все помещения разделены функционально: спальня, детская, кабинет, кухня, гостиная, прихожая и санузел. Достаточно традиционная планировка, но о чем может мечтать работающий человек, уставший от строгого распорядка дня и серого облика офиса, или школьник, которому надоели ряды парт и доска в классе? Конечно же о свободе, беспорядке и возможности более-менее активно отдохнуть в собственной квартире!

Уже в тамбуре вы пройдете по плитке, выложенной под «косым» углом, а в прихожей увидите встроенный шкаф неправильной формы. Грань между кафелем и паркетом, очерченная плавной дугой, отделяет хозяйственную зону от жилой. По этой же линии расположились светильники, встроенные в подвесной потолок.

В детской прямоугольная форма комнаты зрительно размывается за счет трапециевидных шкафов и маленького "зимнего сада" перед письменным столом. Вгостиной мягкие круглые и овальные формы успокаивают и располагают к неторопливой беседе.

С кухней-столовой тоже немного пофантазировали- оптически увеличили пространство за счет обратной перспективы. Стеклоблоки, с помощью которых оформлена стена между кухней и санузлом, создают иллюзию пребывания на камбузе яхты.

И только в кабинете сохраняется строгость прямых углов и правильных геометрических форм. Работа есть работа, дома она или в офисе.

Так появилась на свет идея самой обыкновенной квартиры для самой обычной семьи.

Виды работ Помещения Материалы Кол-во в ед. изм. Стоимость в $
ед. изм. общая
Отделка поверхностей:
полов кабинет, спальня, гостиная, детская, холл, балкон паркетная доска «бук» 58,5м2 40 2340
входная зона, прихожая, коридор, кухня, балкон матовая керамич. плитка с глянцевыми вставками 3030см 36,25м2 20 725
санузел напольная керамическая плитка «Кензо» 8,75м2 35 306,3
стен гостиная, кабинет, спальня, коридор, прихожая краска «Тиккурила» 263,8м2 10 2638
санузел, кухня настенная керамическая плитка «Кензо» 33,6м2 35 1176
потолков гостиная, кабинет, спальня, детская, холл, балкон гипсокартон 58,5м2 30 1755
прихожая, коридор, кухня натяжной Extenzo 36,25м2 45 1631,3
санузел подвесной Armstrong 8,75м2 15 131,3
Установка конструкций:
дверей входная металлическая с односторонней отделкой деревом «Сезам» 1 шт. 900 900
санузел, спальня, кабинет, детская межкомн. распашные одинарные, фанерованные шпоном 5 шт. 500 2500
окон гостиная, спальня, детская, кабинет пластиковые 18,7м2 350 6545
подоконников
ламинированные Reahau 8м2 30 240
перегородок санузел, кухня стеклоблоки 96 шт. 14,6 1401,6
Модернизация сетей:
электрической кухня люстры 3 шт. 45 135
гостиная люстра 1 шт. 300 300
весь объект бра 9 шт. 20 180
люстры 3 шт. 150 450
встроенные светильники 31 шт. 15 465
розетки и выключатели Vimar 18 шт. 20 360
Всего 24179,5

Простор и компактность: несколько дизайн-проектовГостиная Простор и компактность: несколько дизайн-проектовПланировка после реконструкции

Ностальгия по модерну

Этот вариант рассчитан на семью из двух человек, стремящихся жить в комфортной, не лишенной шика, обстановке. Так как квартира находиться в панельном доме, то глобальная перепланировка здесь невозможна, за исключением переноса нескольких перегородок. Несмотря на некоторые трудности, было решено декорировать интерьер в стиле модерн. Разнообразие и многоликость модерна, его "историзм" проявились в предлагаемом проекте в смешении различных направлений- от собственно французского "арнуво» в холле до японского и мавританского стилей в гостиной, столовой и спальне.

В результате переноса перегородок увеличена площадь гостиной и ванной комнат, организован центральный холл, квадратный в плане. Арки холла выполнены из пластика, имитирующего металл. Потолок - это витраж на металлическом каркасе с подсветкой. Пол холла и коридоров- керамический с растительным орнаментом, стилизованным в традициях модерна.

Чтобы добавить лишние метры к кухне, дверной проем на лоджию вынули, а ее саму утеплили. Все оборудование кухни располагается вдоль двух стен, что позволяет максимально освободить здесь пространство для свободного перемещения.

Вытянутая в плане столовая поделена перегородкой из вертикальных деревянных брусьев на две зоны, однако все помещение остается легко обозримым благодаря тому, что брусья расположены на некотором расстоянии друг от друга. Кпотолку крепятся фальшбалки из пластика, имитирующего дерево, которые чередуются в том же ритме, что и брусья перегородки.

Гостиная связана с холлом открытой аркой, но при необходимости ее можно закрыть раскладной дверью. Здесь стены и потолок отделаны деревянными панелями с вставками из гобеленов с замысловатым цветочным орнаментом и сказочной жар-птицей. Гостиная освещается светильниками в виде китайских фонариков. Спальня отделана гладкими обоями с цветным бордюром. Над изголовьем кровати размещается стилизованная под балдахин панель с подсветкой, выполненная из гипсокартона на каркасе. Для визуального увеличения комнаты напротив кровати размещено большое зеркало в деревянном обрамлении в виде мавританских арок. Ванная комната совмещена с туалетом, что позволяет разместить в ней стиральную машину и дополнительные шкафы для белья. Все помещение оформлено керамической плиткой с растительным орнаментом.

В предлагаемом варианте городской «типовушки» автор не боится неожиданных цветовых и стилистических решений. Здесь проявляется стремление убежать от обыденности и однообразия наших железобетонных домов.

Виды работ Помещения Материалы Кол-во в ед. изм. Стоимость в $
ед. изм. общая
Отделка поверхностей:
полов прихожая, коридор, ванная комната венецианская мозаика 22,9м2 100 2290
столовая, гостиная паркет Junckers 33,6м2 110 3696
спальня, кабинет ковролин 28м2 45 1260
кухня нап. керам. плитка (матовая) 3030см 13,8м2 40 552
стен прихожая, коридор, кухня, столовая, кабинет краска «Тиккурила» 180,3м2 10 1803
ванная комната керам. плитка (матовая) 2020см 30м2 30 900
спальня обои 15 рулонов 20 300
гостиная панели деревянные 26,2м2 50 1310
потолков прихожая, коридор, кухня, столовая, кабинет, спальня штукатурка 60м2 12 720
ванная комната подвесной реечный (металлический) 8,9м2 65 578,5
гостиная панели деревянные 13,6м2 50 680
прихожая витраж 4м2 700 2800
Установка конструкций:
дверей входная металлическая Goodwill 1 шт. 1900 1900
спальня, кабинет, столовая, санузел распашные двупольные (назаказ) 4 шт. 1500 6000
гостиная, кухня раздвижные 2 шт. 700 1400
окон гостиная, спальня, кабинет, столовая деревянные (сосна) 12,2м2 260 3172
подоконников
мраморные 3,4м2 1000 3400
перегородок весь объект кирпич 2,8м3 75 210
Модернизация сетей:
электрической весь объект лампы накаливания 53 шт. 12 636
галогеновые лампы 19 шт. 35 665
лампы люминесцентные 18 шт. 23 414
розетки, выкл., ТВ, телеф. розетки 51 шт. 9 459
Всего 35145,5

Простор и компактность: несколько дизайн-проектовГостиная Простор и компактность: несколько дизайн-проектовПланировка после реконструкции

Приют книгочея

Функциональным смысловым центром этой квартиры стала не холодновато-формальная гостиная, а библиотека. Витражная дверь, приглашающая войти в этот «приют книгочея», служит ключевым композиционным элементом прихожей, расставляя по рангу интересы обитателей квартиры.

Поскольку на пути в спальню библиотеки не миновать, то подобное планировочное решение также увеличивает шанс хозяев лишний раз побывать рядом с книгами даже перед сном. Все интерьеры помещений отвечают вкусу человека, идущего в ногу со временем. Хотя не обошлось здесь и без исторических реминисценций. Тактично и выборочно в декор введены мотивы народного творчества, которые позволяют легко погрузится в мир прошлого, но вместе с тем- это вовсе не бегство от навязчивого функционализма и механичности нынешнего века. Так, например, в кухне использован фрагмент русской печи с кирпичной кладкой, в прихожей на полке у зеркала можно обнаружить старинный сундучок, а о быстротечности времени нам еще раз напомнят большие деревянные часы с боем, расположенные в гостиной. Ну а если захочется узнать что-нибудь новое обо всех этих вещах, можно опять отправиться в уютную библиотеку.

Виды работ Помещения Материалы Кол-во в ед. изм. Стоимость в $
ед. изм. общая
Отделка поверхностей:
полов прихожая, коридор, кухня, лоджия керамическая плитка MARRAZZI 27,3м2 30 819
гостиная, спальня, библиотека, детская паркет Junckers 61,2м2 110 6732
ванная комната напольн. керамич. плитка 1515см 8,4м2 25 210
стен прихожая, коридор, гостиная, спальня, библиотека, детская краска «Тиккурила» 166,4м2 10 1664
кухня настен. керамич. плитка 1010см 3,5м2 20 70
ванная комната настен. керамич. плитка 1515см 34,2м2 25 855
гостиная деревянные панели 7м2 50 350
потолков прихожая, коридор, гостиная, кухня, спальня, детская, библиотека гипсокартон 88,5м2 30 2655
ванная комната влагостойкий гипсокартон 8,4м2 35 294
Установка конструкций:
дверей входная металлическая Goodwill 1 шт. 1900 1900
кухня-гостиная раздвижная 1 шт. 400 400
библиотека, спальня, детская, ван. комн. межкомнатная распашная 4 шт. 400 1600
окон, гостиная, детская, спальня, библиотека деревянно-алюминивые 12,2м2 350 4270
подоконников
ламинированные 3,4м2 100 340
перегородок весь объект кирпич 2м3 75 150
Модернизация сетей:
электрической весь объект встроен. светильн. с лам. накал. 5 шт. 20 100
галогеновые лампы 20 шт. 35 700
розетки и выключатели Modulex 40 шт. 20 800
Всего 23909

Простор и компактность: несколько дизайн-проектовГостиная Простор и компактность: несколько дизайн-проектовПланировка после реконструкции

Секрет очарования прост

В предлагаемом варианте квартиры основной акцент в ее оформлении ставится на отделочных материалах Уже в прихожей своеобразный декор пола- волнообразное движение двух параллельных полос напольной плитки на контрастном фоне, подобно тропинке в лесу указывает направление движения вошедшего и ведет за собой в глубину квартиры. Матовая и шероховатая поверхность итальянской плитки на полу, объединяя прихожую, коридор и кухню, вносит неповторимое очарование, ощущение уюта и комфорта.

Световой фонарь с цветным стеклом в коридоре одинаково хорошо виден из всех зон квартиры. Так маленькая деталь может превратиться в связующий центр «вселенной» дома. Венецианское стекло, используемое в декоре потолка, своим пестрым узором перекликается с декоративным оформлением пола.

Если говорить об изменениях, проведенных в плане квартиры, то надо отметить появление гостевого санузла, увеличение ванной комнаты и присоединение лоджии к кухне. Вцелом предлагаемая планировка обеспечивает комфортное проживание семьи из четырех человек.

Виды работ Помещения Материалы Кол-во в ед. изм. Стоимость в $
ед. изм. общая
Отделка поверхностей:
полов прихожая, коридор, ванная комната, кухня напольная керамическая плитка MARAZZI серия ARALDICA 37,9м2 34 1288,6
гостиная, детская, столовая паркет Junckers 54,6м2 110 6006
спальня ковролин 13,94м2 25 348,5
стен прихожая, коридор, кухня, гостиная краска «Тиккурила» 63,5м2 10 635
столовая, детская обои под окраску ERFURTSOHN 80,85м2 3,7 299,1
ванная комната настенная керамическая плтика 2020см 31,6м2 34 1074,4
потолков гостиная, спальня, детская, столовая, кухня, прихожая водоэмульсионная краска 98м2 2 196
ванная комната влагостойкий гипсокартон 8,1м2 35 283,5
Установка конструкций:
дверей входная металлическая Master Linea CLASSIC (Италия) 1 шт. 1500 1500
спальня, детская, прихожая, санузел, ванная комната межкомнатные распашные BARAYSE (Италия) 5 шт. 400 2000
кухня-столовая раздвижная с мурановским стеклом 2,11 1 шт. 4000 4000
окон, столовая, спальня, детская, гостиная деревянные ("Баварскийдом») 15,75м2 525 8268,8
подоконников
деревянные 5,53м2 150 829,5
перегородок весь объект пенобетон 3,2м3 100 320
Модернизация сетей:
электрической коридор световой фонарь с мурановским стеклом 1 шт. 1500 1500
весь объект галогеновые светильники, встроенные в подвесной потолок 28 шт. 35 980
розетки и выключатели Modulex 40 шт. 20 800
тепловой столовая, спальня, детская, гостиная, кухня радиаторы 5 шт. 130 650
ванная комната полотенцесушитель 1 шт. 800 800
водопроводной ванная комната, кухня водопроводные трубы 7 м/п 50 350
фильтры для очистки воды- механические 4 шт. 75 300
фильтры для очистки воды- угольные 2 шт. 200 400
вентиляционной кухня, ванная комната вентиляционные решетки 2 шт. 5 10
Всего 32839,5

Простор и компактность: несколько дизайн-проектовСтоловая Простор и компактность: несколько дизайн-проектовПланировка после реконструкции

Роскошь и простор

Что можно сделать из бывшей четырехкомнатной квартиры для семьи из трех человек?

Гостиная, столовая, спальня, ванная комната- понятия, нехарактерные для "типовушки" при ее проектировании. Конечно сейчас появляются дома, которые уже имеют этот необходимый набор помещений, но их мало, да и цены... Ктому же расположены они не всегда там, где хотелось бы. Авездесущие «типовушки» расползлись по всему городу.

Что же можно сделать из бывшей четырехкомнатной квартиры для семьи из трех человек? Итак, по порядку. Небольшая прихожая визуально увеличена зеркальными плоскостями шкафа-купе. Одновременно расширили вход в гостиную, которая функционально отделена от столовой и имеет все, что нужно для отдыха- домашний кинотеатр, библиотеку и свои маленькие «джунгли».

В воскресенье, в столовой соберется шумная компания или чинно пройдет семейный обед за большим обеденным столом. Удобно расположенная зеркальная ниша для посуды и большое окно с красивыми драпировками в вечернее время создадут ощущение домашнего уюта и тепла. Стена напротив входа тоже зеркальная, что зрительно расширяет границы столовой. Отражение дверного проема иллюзорно создает впечатление анфилады комнат.

Лишь небольшая перегородка и барная стойка отделяет столовую от кухни. Их разное функциональное назначение подчеркивает смена отделочного материала на полу. Предусмотрен и отдельный вход на кухню, который упрощает ее связь с остальными помещениями квартиры.

Из гостиной можно попасть в спальню, которая имеет две зоны: место, где перед сном можно посидеть и поговорить с близкими о прошедшем дне и собственно спальню. Эти зоны разделяет витражная перегородка, которая может трансформироваться таким образом, что с изменением угла поворота одной витражной плоскости, остальные поворачиваются вслед за первой. Вспальне организована также и небольшая гардеробная. Инаконец, "изюминка" квартиры- ванная комната, которая имеет не только окно, но и балкон, используемый влетнее время как солярий. Всветлой, просторной ванной нашлось место даже для небольшой сауны. Для удобства хозяев и гостей предусмотрен второй санузел.

Виды работ Помещения Материалы Кол-во в ед. изм. Стоимость в $
ед. изм. общая
Отделка поверхностей:
полов гостиная, прихожая, столовая ламинат 27,8м2 28 778,4
прихожая, гостиная, детская, спальня паркет Tarkett 26,3м2 45 1183,5
с/у, кухня, ванная комната напольная керамическая плитка 31,2м2 26 811,2
ламинат 1,2м2 28 33,6
стен прихожая вариосистема CAPOFLOK 17м2 8 136
гостиная, столовая, спальня, детская латексная краска CAPOROLL 121,4 6 728,4
кухня, с/у, ванная комната настенная керамическая плитка 49м2 23 1127
водоэмульсионная краска 9,8м2 2 19,6
потолков прихожая, спальня, детская, столовая, гостиная штукатурка гипсовым ветонитом и водоэмульсионная краска 68,1м2 10 681
ванная комната натяжной 15,5м2 60 930
кухня гипсокартон по метал. каркасу 11м2 7 77
санузел реечный 3,5м2 25 87,5
Установка конструкций:
дверей входная металлическая Goodwill 1 шт. 2000 2000
кухня, спальня, детская, с/у, ванная комната межкомнатная одинарная 5 шт. 400 2000
окон гостиная, столовая, спальня, детская пластиковые 12,2м2 200 2440
перегородок весь объект пенобетон 4м3 100 400
Модернизация сетей:
электрической гостиная, спальня электрическая шина с галогеном 2 компл. 300 600
кухня, ванная, с/у точечные галогеновые светильники 29 шт. 15 435
столовая, детская лампы накаливания 6 шт. 100 600
прихожая бра 6 шт. 50 300
весь объект розетки и выключатели Modulex 25 шт. 20 500
Всего 15868,2
Редакция предупреждает, что в соответствии с Жилищным кодексом РФ требуется согласование проводимых переустройств и перепланировок.

Автор проекта: Михаил Балабанов

Автор проекта: Кирилл Городов

Автор проекта: Михаил Шилов

Автор проекта: Георгий Пряничников

Автор проекта: Кирилл Городов

Автор проекта: Михаил Шилов

Автор проекта: Георгий Пряничников

Автор проекта: Валерия Прянишникова

Автор проекта: Виктория Даванкова

Автор проекта: Ирина Масакова

Автор проекта: Людмила Журавлева

Автор проекта: Аркадий Ивашкин

Автор проекта: Виктория Евстратова

Автор проекта: Олег Гомжин

Рекомендуем