Трехкомнатная хрущевка: советы по ремонту, примеры перепланировок и 104 фото реальных квартир
Старые дома уже стали привычными для нас, однако они совсем не соответствуют современным меркам комфортного жилья. Поэтому даже 3 комнаты в хрущевке требуют перепланировки или как минимум капитального редизайна. О том, как сделать стильный и практичный ремонт в малогабаритной трешке, рассказываем в статье.
Все о ремонте хрущевки с 3 комнатами
Характеристики жилья
Особенности планировки
Варианты изменений
— Кухня-гостиная
— Санузел
— Изоляция комнат
Согласование
Оформление квартиры
— Стиль
— Отделка
— Мебель
— Освещение
Характеристики типовых домов
Во времена хрущевской застройки на строительных материалах довольно сильно экономили. Целью было как можно быстрее построить дом, а комфорт будущих жильцов совсем не учитывался. Именно поэтому квартиры в этих домах маленькие и тесные.
У них есть
- Маленькая жилая площадь.
- Низкие потолки.
- Смежные комнаты, некоторые могут быть проходными.
- Туалет и ванная часто совмещены и совсем небольшие.
- Крошечные кухни.
- Плохие звукоизоляционные характеристики.
В целом квартира в хрущевке с 3 комнатами — это узкая прихожая с коридором-«аппендиксом», тесная кухня, маленькие санузлы и несколько мелких помещений. В процессе ремонта многие стараются как-то улучшить исходные данные, но проблема часто осложняется наличием несущих стен. Рассмотрим подробнее, что из себя представляет типовое планировочное решение и что с ним можно сделать.
Стандартные планировки трешек
При задуманной перепланировке 3-х комнатной хрущевки вы должны досконально изучить все детали своего жилья, чтобы не сделать ошибок.
Для того чтобы оценить объем работ затрат на них, надо
- Одна комната большая, две — совсем маленькие.
- Все помещения небольшие, две комнаты смежные.
- Жилые комнаты находятся в разных частях квартиры. Обычно они расположены в разных сторонах коридора. Все три помещения имеют отдельные входы и прилегают к одному коридору.
Принято, что в самой большой комнате располагают гостиную для общего сбора всей семьи. Комнаты метражом поменьше отводят под спальни и детские.
К трем жилым комнатам есть приятное дополнение в виде кладовой, где можно хранить как хозяйственные принадлежности, так и верхнюю одежду с обувью.
Примеры типовых планов
Варианты перепланировки хрущевки с 3 комнатами
При подготовке к ремонту учитывайте, что некоторые стены, которые находятся внутри вашего жилья, могут оказаться несущими.
Их ни в коем случае нельзя трогать. Но даже если проем не несущий, капитальные изменения нужно согласовать, прежде чем сносить и снова возводить их в соответствии с вашей задумкой.
Есть
- Преобразить трешку в большую студию, убрав все стены.
- Частично объединить площадь комнат.
- Задействовать площадь коридора.
- Объединить ванную и туалет.
Объединение кухни и гостиной
Вариант, который встречается чаще всего — это объединение кухонной зоны с гостиной. По завершении всех работ вы получите возможность размещения барной стойки или обеденного стола для большой семьи.
В данном случае нужно продумать дизайн заранее, чтобы кухонный гарнитур сочетался с зоной отдыха. Кроме того, зонирование все равно необходимо. Его можно осуществить с помощью напольного покрытия или потолков. Важно предусмотреть установку мощной вытяжки, которая поможет избежать распространения запаха во время приготовления еды.
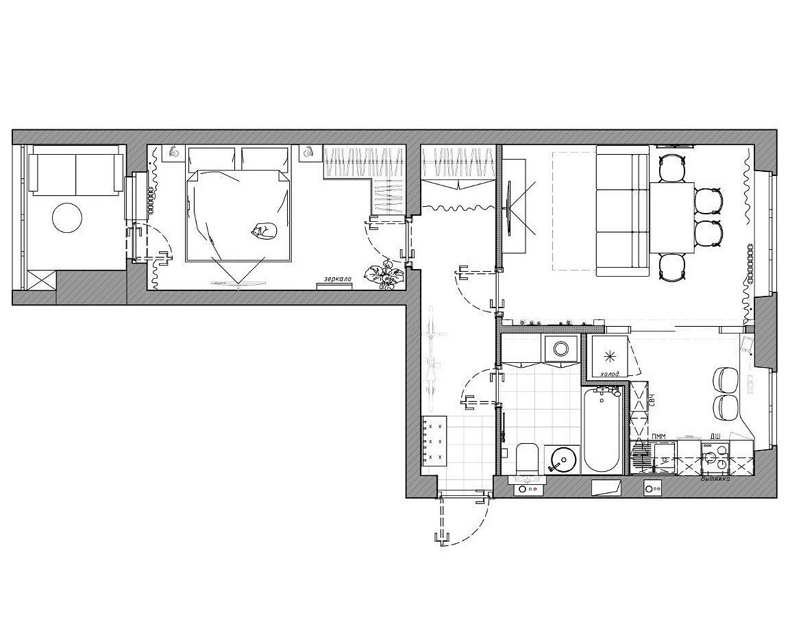
Пример перепланировки
Ремонтом в этой трешке хозяева занимались сами. Квартира угловая, две жилые комнаты расположены друг за другом, а гостиная примыкает к кухне. Для удобства две эти зоны объединили — на манер европланировок. Дом газифицирован, от газа решили не отказываться. Поэтому, чтобы изменения были законными и их согласовали, между зоной готовки и отдыха предусмотрели раздвижную перегородку. Она стеклянная, поэтому даже в закрытом виде не лишает пространство света и не перегружает его.
Совмещение или расширение санузла
Плюсом объединения кухни и гостиной также становится расширение площади санузла за счет уже нефункционального прохода в обеденную зону. Однако нужно учитывать, что за счет жилых помещений это пространство увеличивать нельзя, поскольку такое изменение не соответствует заявленным санитарным нормам.
Если же объединение кухни и гостиной не освободило коридор либо его вовсе нет, то увеличить ее можно другими способами.
- Заменить ванну душевой кабиной.
- Установить узкую раковину.
- При наличии места на кухне перенести туда стиральную машину.
Изоляция комнат
Если в трешке живет целая семья, то связанные между собой комнаты лишают людей личного пространства. Чтобы их сделать отдельными, между ними полностью сносятся перегородки и строятся заново, однако с учетом того, что сбоку от них пройдет коридор с отдельными входами.
Пример перепланировки
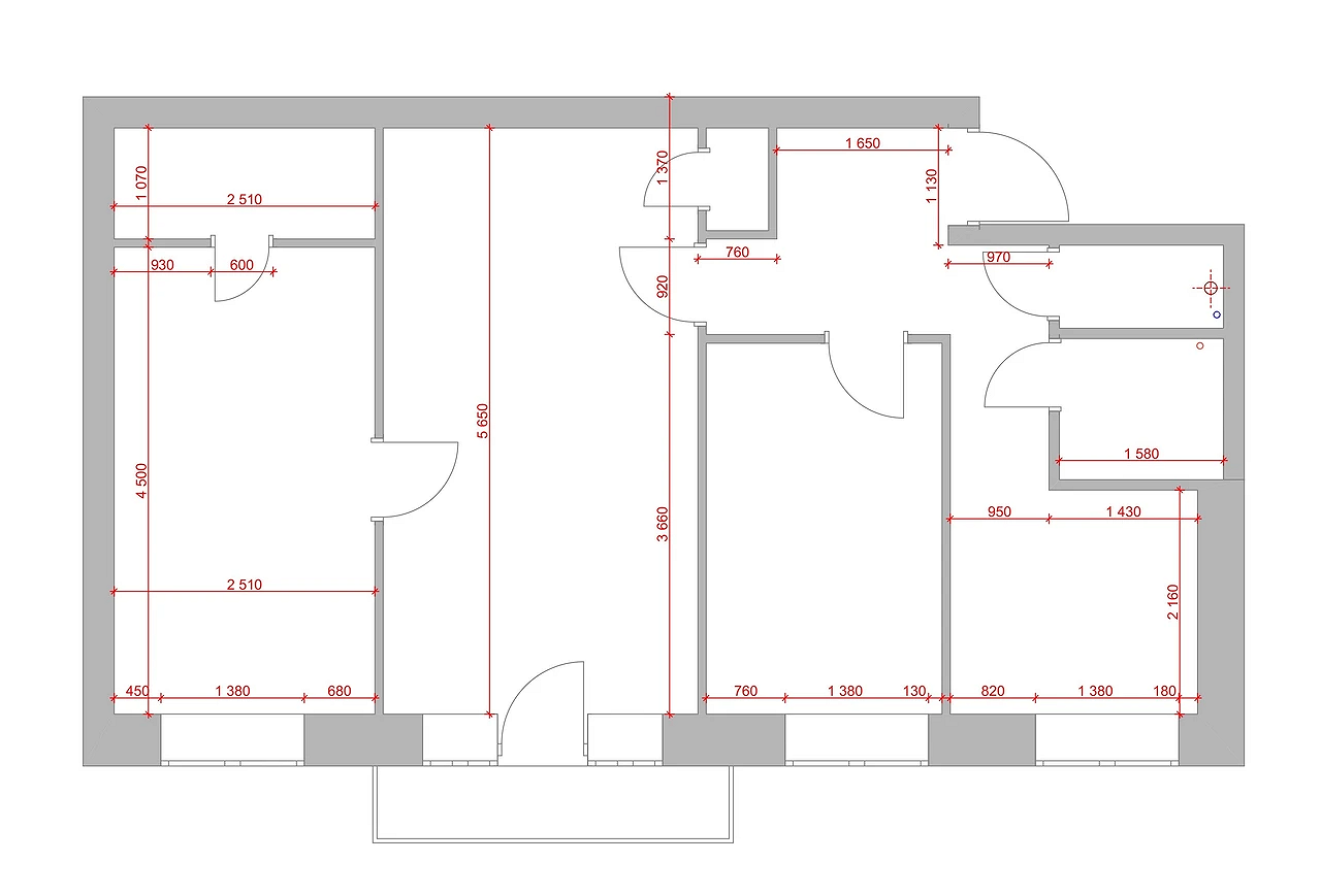
Это хрущевка с 3 комнатами типа «трамвай», когда помещения фактически прикреплены друг к другу. Это неудобно: чтобы дойти из дальнего, например, до кухни, придется пересечь сразу две комнаты. А это может помешать другим домочадцам. По этой причине здесь было решено реконструировать пространство и изолировать спальню и гостиную друг от друга как раз с помощью коридора. Также для удобства вход на кухню сделали из гостиной через французские двери — это тоже согласовывается.
Согласование перепланировки
Изменение плана хрущевки с 3 комнатами требует тщательной подготовки документов.
Поэтому прежде чем приступать к ремонтным работам, нужно предоставить подготовленную перепланировку в управляющую компанию для согласования, затем — в другие службы.
При составлении плана сразу надо учитывать, что объединять кухню и гостиную нельзя, если у вас стоит газовая плита. Здесь придется выбрать одно из двух: или отказаться от газа и установить электрическую варочную панель, или разделить пространство перегородкой. Переносить санузел в другое пространство нельзя, поскольку это может нарушить гидроизоляцию, а также вызвать проблемы с водоснабжением всего дома.
Дизайн хрущевки с 3 комнатами
То, как вы оформите интерьер, нужно продумывать наравне с проектом перепланировки, поскольку в маленьких квартирах каждая деталь имеет огромное значение. Рассмотрим, каким должен быть ремонт 3 комнат в хрущевке с фото реальных квартир.
Стиль интерьера хрущевки 3 комнаты
Самый важный параметр в интерьере типового жилья — это функциональность. Стили барокко или чистая классика из-за своей помпезности здесь явно будут неуместны. То же самое касается лофта, который предполагает большие пространства, окна в пол и высокие потолки.
Лучше всего оформлять современный лаконичный интерьер. Самые удачные стили — минимализм, контемпорари и, конечно, сканди. Последний отличается простотой, обилием светлых оттенков и рассеянным светом, за что любим владельцами малогабаритных квартир. Также для небольшой трешки подойдут стили эко и бохо, если вы любите комнатные растения и милый природный декор.
А вот тем, кто предпочитает классику, стоит присмотреться к ее более актуальной версии — неоклассическому стилю. Он подходит для помещений любого размера, не требует размаха и масштабности, предполагает более простую мебель и отделку.
Отделка
Теплые оттенки и яркие цвета всегда визуально приближают предметы и делают их больше.
Это нужно учитывать при покупке краски или обоев для стен. Лучше всего сделать выбор в пользу светлых тонов, которые наполнят помещение воздухом и визуально расширят пространство. Кроме того, удлинить помещение можно с помощью установленных на одной из стен зеркал.
Если во время ремонта после снятия старого покрытия вы увидели дощатый основной пол, его стоит заменить, поскольку срок службы такого дерева явно истек. В большой студии можно использовать самые разные покрытия. Самым теплым и уютным будет ламинат. Если же на полу проведена система обогрева, то можно положить и плитку.
При разделении на отдельные зоны любой из этих материалов также будет уместен. Выбирайте светлые оттенки, которые сочетаются со стенами и мебелью.
Выбор потолочного покрытия — немаловажная часть ремонтных работ. Большие навесные конструкции и короба из гипсокартона могут сильно опустить потолок и сделать помещения очень тесными. Поэтому лучше использовать для отделки потолочную плитку, краску или светлые обои. Однако при желании по периметру потолка вы можете сделать небольшой выступ, куда спрячете освещение. Кроме того, визуально увеличить пространство поможет установленное в центре зеркало.
Мебель
Мебель должна быть соразмерна помещению, в котором находится. Если посмотреть на фото хрущевок с 3 комнатами, перегруженно выглядят именно те, где неправильно подобрана обстановка.
Старайтесь выбирать лаконичные, визуально легкие модели: с прозрачными стеклянными деталями, на ножках вместо глухого корпуса в пол, уменьшенной глубины (если речь про корпусные изделия). Даже если вы оформляете жилье в классическом стиле, избегайте чрезмерного количества декоративных элементов вроде резьбы, филенок, мозаики. Помните, что светлые цвета кажется более воздушными и дают ощущение простора даже в маленьком пространстве.
Освещение
Свет всегда визуально расширяет пространство, однако провода не украсят ни одно помещение. Поэтому заранее продумайте, где у вас будут находиться светильники, чтобы сразу встроить их в стену.
Сама система освещения в любой комнате оформляется по схеме «основной + локальный свет». Основной — верхняя лампа или потолочный споты. Локальный — в каждой функциональной зоне, где нужна собственная иллюминация. Например, в спальне это лампы для чтения, подсветка гардеробного шкафа, бра или светильник у макияжного стола. На кухне — рабочая и обеденные зоны и т.д.
Материал подготовила




Пока комментариев нет. Начните обсуждение!