Квартира 40 кв. м: особенности оформления, 6 проектов с планировками и 102 фото


Для студии или однокомнатной квартиры 40 кв. м — неплохая площадь. Ее достаточно, чтобы выделить необходимые функциональные зоны и даже поэкспериментировать с планировкой. Такой метраж встречается как в старых, так и в современных домах. В статье рассмотрим все варианты и покажем разноплановые примеры проектов с планировками до/после.
Все о дизайне однокомнатной квартиры 40 кв. м
Особенности ремонта
— В старом фонде
— В сталинках
— В хрущевках и панельках
— В новостройках
Общие советы
Проекты с планировками
— Кухня-гостиная и спальня в нише
— Распашонка для сдачи в аренду
— Лофт на месте коммуналки
— Однушка с двумя эркерами
— Спальня, кабинет и спортзал в одной комнате
— Евродвушка в серо-зеленых тонах
Особенности ремонта квартиры 40 кв. м
Однокомнатная квартира 40 кв. м может быть разной: евродвушкой с просторной общей зоной, типовым жильем с отдельной кухней и спальней, студийным пространством с антресольным этажом. Все зависит от дома и, соответственно, возможностей планировки.
К старому фонду многие относят вообще все дома времен СССР и раньше. На самом деле это не совсем так: строго говоря, в эту категорию попадают только дореволюционные дома. Хотя на практике этот термин действительно стал более широким.
У квартир в старом фонде есть как плюсы, так и минусы:
- Однозначные преимущества — уникальная архитектура, расположение в центре города.
- При этом коммуникации очень старые, часто в аварийной состоянии. Почти всегда проще полностью заменить трубы и проводку, чем пытаться реанимировать то, что есть.
- В дореволюционных домах были деревянные перекрытия, а значит, нужно очень четко рассчитывать нагрузку на них.
- Из-за все той же исторической архитектуры размещение внешнего блока кондиционера нужно согласовывать, и не всегда это разрешат сделать.
- А вот высокие потолки дают возможность организовать комфортный второй ярус.
Сталинки известны высокими потолками, большими окнами и долговечными отделочными материалами, которые можно даже не менять: паркетом, кирпичной кладкой и т.д. Однушки в домах того периода имеют площадь чуть больше 40 квадратов. Санузел один, прихожая квадратная, потолки — до 4 м. Можно оставить комнаты в изначальных границах или объединить жилую зону с кухней при условии, что плита не газовая.
В зависимости от серии и периода постройки меняются исходные данные. Например, для хрущевок характерны очень маленькие помещения и зона готовки 5-6 квадратов, для панелек — наличие несущих стен, плохая звукоизоляция. Объединяет их всех стандартный подход к планировочному решению: отдельная кухня и одна жилая комната. И уже с этим можно работать, учитывая условия. Так, если в квартире нет газа и стена между кухней и комнатой не несущая, можно объединить помещения и получить более просторную кухню-гостиную, а спальню изолировать, например, с помощью стеклянных перегородок.
Современные дома отличаются разнообразием планировочных решений. Застройщики предлагают просторные студии, классические евродвушки, свободную планировку. Также сейчас популярны апартаменты, статус которых дает еще большую свободу действий: например, можно переносить мокрые зоны. Высота потолков и конфигурация помещений зависит от конкретного жилого комплекса. Есть объекты с панорамными окнами и потолками под пять метров, есть стандартные квартиры 40 кв. м (фото ниже), иногда встречаются сложные формы с несколькими углами или овальными стенами. Организация пространства здесь зависит от наличия несущих конструкций и других ограничений,
Планируя дизайн квартиры 40 кв. м, помните об основных правилах, которые помогут сделать небольшое жилье удобным.
- Сведите к минимуму глухие перегородки. Открытое пространство делает квартиру более просторной и визуально легкой. Там, где можно заменить глухие простенки прозрачным или матовым стеклом, рейками или пустым проемом без ущерба для повседневного комфорта, сделайте это.
- Отделите спальное место. Неважно, как вы это сделаете: отведете под спальню целую комнату, сделаете конструкцию из стеклянных экраном, спрячете кровать в нишу и закроете шторкой. Полноценно отдыхать рядом с кухней и в эпицентре жизни семьи не получится, поэтому нужно создать приватность.
- Если есть балкон, утеплите его. Так вы получите полноценную функциональную зону, не жертвуя местом внутри жилья. На лоджии удобно обустроить мини-кабинет, зону отдыха, место для чаепития и, конечно, систему хранения.
- Помните, что светлые цвета и лаконичная отделка визуально увеличивают площадь комнаты. Такая палитра впишется в любой стиль и подойдет для любой зоны: от маленькой кухни до спальни и санузла.
Примеры проектов с планировками
Рассмотрим примеры дизайна квартиры 40 кв. м от профессионалом с реальными фото и планировками.
Кухня-гостиная и спальня в нише
Изначально эта квартира представляла собой стандартную однушку с кухней и отдельной комнатой. Но хозяева хотели видеть светлое открытое пространство, так что стену (она не была несущей) снесли и получили подобие студийной планировки.
Спальное место расположено в самом дальнем углу в небольшой нише, при этом оно не отделяется дверью. Вместо нее — плотная тканевая штора. В соседней нише обустроили рабочее место, а остальное пространство занимает открытая кухня-гостиная-столовая. Такое решение вряд ли подойдет семье с ребенком, а вот для одного человека или пары без детей это вполне комфортный вариант. К тому же, если в какой-то момент захочется больше приватности, занавески всегда можно заменить закрывающейся стеклянной перегородкой.
Распашонками называют квартиры, окна которых выходят на противоположные стороны. Это — как раз такой пример.
Дизайн этой квартиры 40 кв. м сделали максимально универсальным, поскольку жилье предназначено для сдачи в аренду. Изначальное планировочное решение не меняли, работали в рамках исходных данных. Слева от входа сделали кухню-гостиную с выходом на балкон. Мебель расставлена таким образом, что при приходе гостей стол можно подвинуть к дивану и получить больше сидячих мест. Гарнитур небольшой, угловой. В противоположной стороне квартиры находится спальня. Там же выделено рабочее пространство, а слева от входа стоит вместительный шкаф для одежды.
Эта однушка находится в самом сердце Санкт-Петербурга — в историческом доме на улице Рубенштейна. После революции ее превратили в коммуналку, затем у квартиры сменилось множество владельцев.
Высокие потолки и отсутствие несущих стен позволили сделать масштабную перепланировку. Все внутренние перегородки снесли, а над ванной сделали антресольный этаж, где разместили дополнительное спальное место. Основное находится в дальней части, у большого окна, отделенное от прихожей перегородкой.
В дизайне сохранили аутентичные элементы: кирпичную кладку, винтажные аксессуары. Добавили элементы классики (молдинги, филенки) и скомбинировали это с современной мебелью. В итоге получился эклектичный лофт с духом старины, который идеально отвечает атмосфере питерского исторического центра.
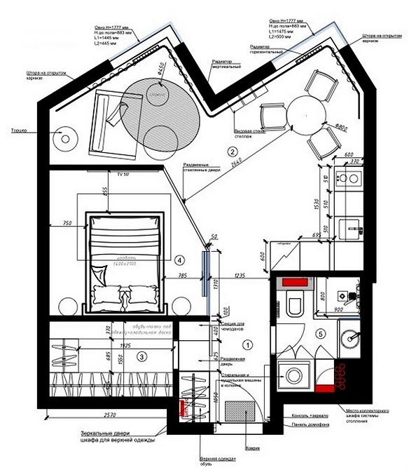
Эта небольшая однокомнатная квартира принадлежит активной девушке, которой важно иметь возможность полностью расслабиться дома. Объект интересен своей сложной архитектурой — здесь целых два эркера.
Чтобы упростить расстановку мебели, дизайнер предложила студийную планировку. Заказчица живет одна, для нее такое решение оказалось удобным. В итоге перегородку между комнатой и кухней демонтировали, а часть прихожей отдали под гардеробную. Эркеры обыграли некрупной мебелью: у одного окна разместили обеденную зону с круглым столом, у второго — зону отдыха с креслом, пуфиком и журнальным столиком в таких же обтекаемых формах
Для оформления выбрали чистый минимализм. Здесь нет ярких красок, обилия декора и лишних деталей. Пространство выдержано в ахроматических тонах, а объема ему добавляют разные формы мебели и фактуры.
Спальня, кабинет и спортзал в одной комнате
В этой однушке площадью 39 квадратов живет молодой человек, психолог, и его девушка. Этой площади хватило для того, чтобы обустроить все необходимые зоны.
Кухню с гостиной объединили: получилось светлое свободное пространство, где одинаково комфортно проводить время вдвоем и собираться с друзьями. Линейная планировка гарнитура дополнительно зонирует место для готовки и гостиную-столовую.
Самой функционально насыщенной получилась спальня. На 13 кв. м удалось разместить:
- Кровать.
- Шкаф для одежды.
- Полноценное рабочее место с подвесным мини-стеллажом.
- Спортивный уголок.
Системы хранения во всей квартире преимущественно встроенные. В ванной, помимо основного набора сантехники, выделили нишу под колонну из стиральной и сушильной машин.
Евродвушка в серо-зеленых тонах
Эта квартира в Минске — отличный пример современной евродвушки. Здесь, как и в предыдущем примере, живет молодая пара.
Все организовано так, чтобы было удобно жить вдвоем. Входная зона не отделена от жилой части квартиры перегородками и вместе с кухней-гостиной занимает половину всей площади — как и принято в европланировках. Гарнитур угловой, со шкафами под потолок и встроенной техникой. Вместо традиционного обеденного стола — барная стойка, она же разделяет зону готовки и отдыха.
Спальня находится не за глухой стеной, а за стеклянной перегородкой, что делает пространство более светлым и легким. Под спальное место отвели площадь в два раза меньше — 11 квадратов. Здесь нет ничего лишнего: только большая двуспальная кровать, столики по бокам и шкаф в цвет отделки.
Материал подготовила
Пока комментариев нет. Начните обсуждение!