Как выглядит интерьер по принципам Васту? Квартира с большой жилой террасой в Санкт-Петербурге
Заказчики и задачи
Владельцы этой квартиры в Санкт-Петербурге — молодая семейная пара, юрист и нутрициолог. Они обратились к дизайнеру Ольге Лавровой с просьбой оформить легкий, комфортный и экологичный интерьер. Создание гармоничного пространства по принципам Васту тоже было одним из пожеланий. Пара увлекается йогой, ведет здоровый образ жизни, и им близко такое восприятие дома. Среди других важных пожеланий было оформление удобной кухни — хозяйка-нутрициолог любит готовить, проводит консультации по здоровому питанию и нутрициологии; а также обустройство вместительных систем хранения.
«На момент начала работы над проектом заказчики еще не определились, как они будут использовать эту квартиру. А когда начался ремонт, владельцы переехали в Москву, что было связано со сменой места работы. Поэтому реализацией проекта полностью занималась я», — говорит автор проекта Ольга Лаврова.
Перепланировка
Стороны света и расположение помещений в соответствии с ними — важная основа Васту. «В идеале, когда заказчик хочет жилье по Васту, то квартира подбирается на этапе покупки исходя из благоприятных расположения помещений. А когда уже есть квартира, то ее можно только скорректировать правильным подбором цвета, материала, орнамента; сделать наиболее благоприятную расстановку мебели, насколько это возможно», — рассказывает дизайнер.
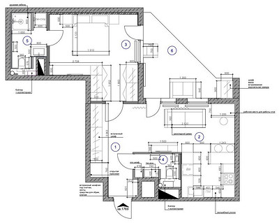
Согласно плану от застройщика, в квартире была кухня-гостиная, большой коридор, отдельная комната и два санузла. Из кухни-гостиной и второй комнаты можно попасть в большую террасу (площадь этой зоны — 12 квадратов при общей площади квартиры в 68 кв. м).
Перепланировку сделали, но не глобальную. Так, между кухней-гостиной и коридором убрали перегородку, чтобы объединить эти зоны и таким образом визуально расширить их. Второй санузел, близкий ко входу, расширили за счет коридора, чтобы уместить там большую низкую раковину — она удобна для мытья животных или других хозяйственных нужд.
Отделка
Отделку подбирали, основываясь на экологичности и соответствии Васту. «Мы учитывали, чтобы цветовая гамма и текстуры соответствовали сектору или направлению сторон света», — говорит Ольга.
Стены покрасили моющейся краской. В качестве декора использовали деревянные рейки — на стене в ТВ-зоне и за кроватью. В гостиной сделали панели, покрытые магнитной краской, на них можно крепить заметки. На полу во всех зонах уложили кварцвиниловую плитку. В прихожей, кухне-гостиной, спальне и прилегающей к ней ванной единым полотном уложена плитка под дерево. В малом санузле использовали кварцвинил под камень. Терраса-лоджия выделяется среди других помещений, здесь на полу — яркая керамическая плитка с рисунком.
Мокрые зоны и половина стен в ванной и санузле уложены плиткой, те места, где нет непосредственного попадания воды, окрашены. Для ванной комнаты выбрали плитку под мрамор, а для гостевого санузла — серый «кабанчик».
Где искать анонсы материалов и свежие идеи для интерьера? Подписывайтесь на наши каналы! Публикуем красивые подборки, видеоролики и обзоры:
https://zen.yandex.ru/ivd.ru
https://t.me/ivd_ru
https://vk.com/ivd_ru
Цвет
«Цветовая гамма для всего проекта и для каждого помещения отдельно подбиралась на основе концепции и законов Васту, — объясняет автор проекта. — В интерьере использованы природные спокойные цвета, такие как голубой, песочный, серый и зеленый с добавлением ярких контрастных акцентов. Это как раз можно увидеть в коридоре-гостиной-кухне, где на фоне нюансных стен терракотовый диван является комплементарным темно-зеленому шкафу, контрастная черная тумба с черными бра и контрастные элементы на мебели и текстиле придают интерьеру этого помещения динамику».
Системы хранения и мебель
Большое количество вместительных систем хранения было важной задачей от заказчиков. Ольга Лаврова спроектировала встроенные шкафы, которые разместились в прихожей и спальне. В коридоре — два шкафа, один из которых расположен сразу при входе, а второй — вдоль противоположной стены. Первый предназначен для одежды и обуви, второй — для тех же целей, но также там есть место для хранения сезонных вещей, чемоданов и хозяйственных принадлежностей. На лоджии также есть высокий шкаф под потолок.
В спальне шкафы выстроены вдоль двух стен у входа, они разделены на мужской и женский — для каждого супруга. И также есть вместительная система хранения напротив кровати.
Кухонный гарнитур получился очень вместительным: шкафы построены буквой П с полубарным столом, который выполняет функции обеденного. Количество мест для хранения позволяет разместить там все, что нужно.
В ванной комнате размещена колонна из стиральной и сушильной машины, над ней — антресольный шкаф, также есть тумба под раковину. В санузле — полка под технической раковиной для хранения хозяйственных принадлежностей и высокий шкаф-пенал.
Корпусная мебель изготовлена на заказ по эскизам дизайнера. Также на заказ сделали рабочий стол — высокий, заказчики специально хотели работать стоя. «Мебель на заказ намного функциональнее, удобнее и всегда вписывается по стилю и цветовой гамме. И для этого проекта я исходила из этих же принципов», — объясняет дизайнер.
И, кстати, цвет мебель и текстуры также подбирались согласно законам Васту. «Зеленый шкаф с зеркальными фасадами соответствует северному сектору и планете Меркурий, а терракотовый диван поддерживает южный сектор и планету Марс», — говорит дизайнер.
Освещение
В интерьере продумано несколько световых сценариев. На потолке — споты: накладные или на шинопроводе. В гостиной вместо спотов использованы накладные плоские лампы. Дополнительные источники освещения разделены по зонам. Например, подвесы над обеденной зоной на кухне, над тумбочками в спальне, бра над кроватью там же, бра в ТВ-зоне в гостиной и подвес у зеркала в ванной комнате. Реализованы и технические подсветки: например, зеркала в ванной, рабочей поверхности на кухне и штор.
Декор
«Текстиль и декор подбирался исходя из общей концепции и стиля проекта, поэтому в интерьере использовались натуральные ткани, природная тематика, геометрический рисунок, керамика, ветки растений, изделия ручной работы. Так, например, шторы в гостиной и спальне выбраны нейтральных цветов из шерсти, а подушки на кровати и диване — из хлопковой ткани и льна, декорированные джутом и ворсом. Керамические вазы упрочнили в проекте стихию Земли», — рассказывает дизайнер.






Пока комментариев нет. Начните обсуждение!