Экспресс — проектирование

Редакция отобрала пять писем владельцев квартир небольшой площади, а архитекторы создали три варианта перепланировки для каждой

В этом номере рубрика вновь обращается к так называемому экспресс-проектированию- облегченной версии дизайн-проекта. Оно включает в себя несколько вариантов перепланировки и концепцию стилистики интерьера. Сегодня этот вид дизайнерских услуг становится более востребован, поскольку не все люди, приобретающие жилье, могут позволить себе заказ полноценного дизайн-проекта. Желание сделать интерьер стильным и функциональным заставляет обращаться к архитектору или дизайнеру. Большинство людей нуждается как минимум в эргономичной и удобной планировке, в которой нашлось бы место для всех необходимых помещений и функциональных зон. Такую задачу с успехом решает экспресс-проектирование.

На суд читателя представлены проекты, разработанные профессионалами по заданию редакции. Мы отобрали пришедшие из разных городов письма читателей- владельцев одно-, двух- и трехкомнатных квартир небольшой площади, которые обратились к нам с просьбой помочь организовать жилое пространство. Архитекторы предложили по три варианта перепланировки для каждой квартиры, из них редакцией был выбран наиболее оптимальный и функциональный. Далее специалисты разрабатывали стилистику выбранной версии. Создатели проектов подбирали аналоги интерьеров, ставших прообразами будущих решений. Вкомментарии к каждому проекту оценены плюсы и минусы предложенных вариантов, проанализировано соответствие окончательного варианта пожеланиям авторов письма.

Отмеченный архитекторами интерес к облегченным версиям дизайн-проекта объясняется в первую очередь тем, что у многих заказчиков нет завышенных требований к стилю, для них куда важнее функциональная планировка и советы по подбору и сочетанию отделочных материалов.

Способы выполнения проекта могут быть различными- все зависит от метода работы специалиста. Одни дизайнеры рисуют интерьеры от руки, другие делают на компьютере близкие к фотографиям 3D-эскизы с учетом освещения. Некоторые архитекторы предлагают не изображения помещений в перспективе или аксонометрической проекции, а подробные развертки стен. Есть и такой метод, как подбор отделочных материалов, текстур и мебели по образцам и каталогам. Он рассчитан на хорошее воображение владельца жилья и его доверие архитектору, который уже представляет будущую квартиру. Вэтом случае специалист может объяснить, как будут сочетаться в интерьере реальные объекты и материалы, оценить их соответствие выбранной стилистике.

На этом экспресс-проектирование заканчивается. Дальнейшая работа архитекторов над созданием интерьера предполагает выполнение рабочего проекта, а на этапе его реализации- авторский надзор и комплектацию, включающую комплексный подбор мебели, отделочных материалов, различных элементов декора и осветительных приборов. Таким образом, облегченный вариант дизайн-проекта позволяет сэкономить средства, но, воплощая его в жизнь, хозяин квартиры потратит немало времени и сил. Аответственность за полученный результат будет лежать только на прорабе и на нем самом...

Письмо 1

Экспресс - проектирование
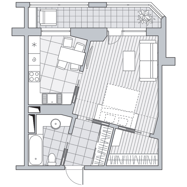
Наша семья (нам с мужем по 40лет, сыну-студенту- 20) приобрела трехкомнатную квартиру на 6-м этаже 10-этажного кирпичного дома по индивидуальному проекту. Помогите, пожалуйста, разработать удобную планировку и недорогой дизайн квартиры. Хочется, чтобы новое жилье было просторным, с минимальным количеством мебели, а интерьер оставался актуальным долгие годы. Все внутренние перегородки ненесущие и возведены из пеноблоков, поэтому возможна перепланировка. Воформлении предпочитаем современную классику и естественные тона: серо-стальной, черный, шоколадный, голубой, оливковый, терракотовый (красный, зеленый и оранжевый исключены). Хотелось бы, чтобы пространство зонировали при помощи цвета или разнофактурных материалов. Потолки невысокие, поэтому нежелательно понижать их. На пол хотим уложить светлую паркетную доску и керамогранит, а площадь жилой комнаты разделить на три зоны: кухню, столовую и гостиную. Вкухне нужен холодильник Side-by-Side, встроенная техника, невысокая барная стойка, которая может служить рабочей поверхностью. Хотим присоединить к ванной комнате часть коридора и выделить гостевой санузел. При этом вход в ванную лучше сделать из спальни (с проходом через гардеробную), а во второй- из прихожей.

Семья Косиковых, г.Нижний Тагил, Свердловская область

Во всех трех проектах прослеживается четкое деление на общественную и приватную половины. Естественной границей между ними служит несущая стена. Вкачестве основного выбран вариант, отвечающий всем запросам авторов письма. Проем в несущей стене, расположенный на оси холла, служит композиционным центром помещения. Его доминирующее положение подчеркивают световые панели, образующие портал. Пол и стены прихожей-холла облицовывают плитами керамогранита с фактурой песчаника. Чередование светлых и темных полос смягчает монументальность объема (такой прием некогда использовали в архитектуре византийских храмов). Встудии выделяют зоны: кухню, из которой можно выйти на лоджию, гостевую с диваном и уголок для чтения со стеллажом для книг.Центральное место занимает композиция из дивана и обеденного стола, контрастирующих друг с другом по цвету. Массивный стеллаж у стены облицовывают светлым травертином. Строгую и четкую геометрию прямых линий смягчают плавные очертания циркульных ниш в потолке. При входе в спальню родителей организуют гардеробную, а кровать скрывают за легкой конструкцией стеллажа. Вкомнате сына вдоль всей стены устраивают рабочую столешницу, переходящую в полку за спальным местом. Вместо кровати используют раскладной диван.

Концепция проекта:
создание функционального интерьера в духе минимализма, в восприятии которого важное место занимает отделка поверхностей, лишенная детализации.

Экспресс - проектированиеФото 1 Экспресс - проектированиеФото 2 Экспресс - проектированиеФото 3 Экспресс - проектированиеФото 4

1-2.Винтерьере в основном преобладает теплая цветовая гамма, которую оживляют легкие синие акценты. Постер на стене- изображение с сайта www.russia-hc.ru.
3-4.Интерьер отличают четкая геометрия и простой функционализм. Объединение зон, минимум текстиля и лаконичный цветовой ряд- все это оценят любители минимализма.

Основной вариант. «В духе минимализма»

Экспресс - проектирование
+создано открытое студийное пространство кухни-гостиной-столовой
+организована постирочная-кладовая с технической раковиной
+гардеробная в спальне родителей и шкаф-купе в комнате сына
+просторная ванная комната при спальне родителей
+предусмотрен гостевой санузел с душевой кабиной

-рабочая столешница в кухне мала для приготовления еды
-небольшой шкаф-купе в прихожей
-в кухню можно попасть только через гостиную
-в гостевом санузле предусмотрели душевую, но она узкая

Вариант 1. «Перетекающее пространство»

Экспресс - проектирование
+объединенное пространство кухни и гостиной
+организовано большое студийное пространство
+в гостиной предусмотрен уголок для чтения или работы
+в прихожей устроен стеллаж в нише
+выделена постирочная
+коридор перед спальнями расширен и сделан трапециевидным
+создан гостевой санузел с душевой кабиной

-небольшой шкаф для верхней одежды в прихожей
-в ванную комнату можно войти только из спальни родителей
-гостиная становится проходной
-чтобы воспользоваться ванной, сыну придется пройти через спальню

Вариант 2. «Классический»

Экспресс - проектирование
+изолированные гостиная и кухня
+функциональная прихожая с большими шкафами
+отдельный гостевой санузел
+в гостиной можно устроить еще одно спальное место

-нерациональное уменьшение площади спальни
-тесная душевая-постирочная
-чтобы воспользоваться ванной, сыну придется пройти через спальню родителей

Аналоги интерьеров, ставшие прообразами предложенной концепции

Экспресс - проектирование Atlas Concorde Экспресс - проектирование OFL architecture Экспресс - проектированиеАрхитектор S.Okada
Экспресс - проектированиеАрхитектор S.Okada Экспресс - проектирование A-cero Architects Экспресс - проектирование Casa Design

Письмо 2

Экспресс - проектирование
Мы купили однокомнатную квартиру на последнем этаже восьмиэтажного кирпичного дома-новостройки. Пока ждали окончания строительства, у нас появился ребенок. Мечтаем, чтобы у каждого члена семьи был свой уголок. Помогите, пожалуйста, обустроить комфортный интерьер с минимальными затратами. Внутренних несущих стен в квартире нет- только перегородки. Кухню можно было бы переместить в гостиную и объединить эти помещения, а на территории бывшей кухни организовать спальню. Нужно выделить место для малышки рядом с кроватью родителей. Хотелось бы, чтобы мебели было минимальное количество. Ванную комнату и туалет лучше не объединять, но, если понадобится, возражений не будет. Балкон не очень большой, к тому же на нем расположена пожарная лестница. Тем не менее желательно, чтобы он был функционально задействован. Что касается цветовой гаммы, особых предпочтений нет, но хорошо бы с ее помощью визуально увеличить пространство. Ванная комната может быть яркой, но в меру, чтобы не надоедала. Думаю, было бы уместно уложить во всей квартире напольную плитку. Заранее большое спасибо.

Суважением, Наталья, г.Малоярославец, Калужская область

Архитекторы, вдохновленные интерьерами светлых просторных помещений, создают иллюзию большого пространства. Для этого они используют пропускающие и рассеивающие свет полупрозрачные перегородки с вставками витражей, зонируют помещения, применяют натуральные материалы и их имитации. Ни в одном варианте не выполнено такое пожелание авторов письма, как превращение кухни в жилую комнату (спальню-детскую), а следовательно, "однушки"- в "двушку". Втаком случае кухня, а также гостиная и столовая были бы перемещены в глубь квартиры, но согласовать такой проект нельзя, поскольку «мокрая» зона кухни оказалась бы над жилым помещением соседей с нижнего этажа.

Вкачестве основного варианта выбирают самый неожиданный- "В кругу семьи". Нестандартная планировка маскирует недостаток жилой площади, отвлекает от будничных проблем. Центральным композиционным элементом пространства становится полукруглая стена, отделяющая столовую зону. Врадиусную перегородку встраивают витражи, позволяющие естественному свету проникать в прихожую. Дверные проемы предлагают нестандартной высоты, почти до потолка, что позволит компенсировать уменьши-вшуюся высоту комнат (потолки подшивают гипсокартоном, чтобы встроить светильники). Колористическое решение предлагается традиционное: светлые стены, темный пол. Винтерьере используют богатую палитру материалов и фактур: камень, мозаику, дерево, матовое и цветное стекло. Светильники и различная отделка стен помогают сфокусировать внимание на разных зонах.

Концепция проекта:
создание нестандартной планировки с полукруглой зоной в центре- столовой, символизирующей уютный домашний очаг молодой семьи.

Экспресс - проектированиеФото 1 Экспресс - проектированиеФото 2 Экспресс - проектированиеФото 3 Экспресс - проектированиеФото 4

1-2.Для столовой группы выделено особое место. Форма подшивного потолка и рисунок пола акцентируют расположение семейного очага. Глянцевому полу из керамогранита вторит глянцевый потолок, что вдвое визуально увеличивает объем помещения. Все материалы подобраны на контрасте- яркий пол и белый потолок, фактурная темная стена и спокойная светлая напротив.
3-4.Классика требует размаха, а на 42м2, где дорог каждый сантиметр, приходится внимательно подходить к выбору декора. Вслучае его переизбытка не хватает пространства для восприятия решений. Здесь ограничиваются карнизом, фигурным плинтусом и неординарным оформлением пола.

Основной вариант. «В кругу семьи»

Экспресс - проектирование
+увеличение площади кухни и спальни за счет коридора
+присутствует инсоляция в прихожей
+ниша в спальне может быть использована как детский уголок или место для встроенного шкафа
+организация полноценной столовой зоны

-маленькая тесная прихожая, в которую выходят сразу четыре двери
-небольшая рабочая поверхность в кухне
-недостаточно стеллажей и мест хранения в зоне гостиной
-детская кроватка расположена близко к телевизору- источнику шума и электромагнитного поля

Вариант 1. «Диагональ меняет пространство»

Экспресс - проектирование
+большое пространство кухни-столовой-гостиной
+сохранение приватности спальни-детской
+предусмотрено много мест хранения в комнате и гардеробной

-спальню уменьшили, в результате проходы вокруг кровати узкие
-совмещенный санузел для семьи из трех человек
-стиральная машина предусмотрена в кухне
-стесненные проходы вокруг зоны столовой
-телевизор расположен не очень удобно по отношению к дивану

Вариант 2. «Традиционное решение»

Экспресс - проектирование
+организация просторной кухни-столовой-гостиной
+спальня-детская остается приватной зоной
+раздельные туалет и ванная
+достаточно просторный холл

-уменьшение площади спальни
-маленькая рабочая поверхность в кухне
-мало мест для хранения вещей
-плохая вентиляция зоны детской кроватки
-не предусмотрено место для стиральной машины

Аналоги интерьеров и текстур, ставшие прообразами предложенной концепции

Экспресс - проектирование Globo Экспресс - проектирование Il Paralume Marina Экспресс - проектирование Peronda
Экспресс - проектирование Jin Furniture
Архитектор Wang Ta-Chung
Экспресс - проектирование Jin Furniture Экспресс - проектирование «Европрестиж»
Экспресс - проектирование Bossner Экспресс - проектирование Bisazza Экспресс - проектирование Bisazza

Письмо 3

Экспресс - проектирование
Мы с мужем приобрели квартиру на 13-м этаже 24-этажного дома-новостройки. Не знаем, как спланировать интерьер, и обращаемся к вам за помощью. Будем признательны, если предложите какие-то идеи обустройства нашего жилья. Сложную перепланировку делать не хочется, так как придется решать проблемы согласования. Перегородки ненесущие, в центре квартиры есть колонна. Вкухне- выступ технического короба, электрическая плита. Нужна гардеробная, поскольку вещей много, а мест хранения нет. Окна выходят на южную сторону, поэтому везде необходимы кондиционеры. Специалист предложил установить наружный блок на балконе (на фасаде дома его нельзя размещать), а трубы каким-то образом замаскировать. Можно ли обыграть это техническое решение декоративными средствами или проще сделать натяжные потолки ниже уровня труб? Стоит ли объединять ванную и туалет, есть ли смысл устанавливать купель или лучше поставить душевую кабину? Кроме того, мы не уверены, нужно ли демонтировать подоконный блок и присоединять балкон. Посоветуйте, как разместить мебель в комнате с учетом того, что в будущем мы планируем пополнение в нашей семье. Ядовольно много работаю за компьютером, поэтому на балконе (он довольно большой) хотелось бы устроить кабинет, а также зону отдыха. Окна там от пола до потолка, поэтому помещение очень светлое.

Pilgrim (письмо с сайта ivd.ru)

При разработке проектов межкомнатные перегородки предполагается демонтировать. Врезультате вентшахта, расположенная напротив входной двери, бросается в глаза. Во всех трех предлагаемых решениях ее закрывают новыми перегородками, а слева от входа организуют спальню. Часть последней в вариантах 1 и 2 отводят под гардеробную, которая примыкает к входной зоне. Вкачестве основного выбирают вариант с большой спальней, поскольку в семье ожидается пополнение и нужно место для детской кроватки. Гардеробную в этом проекте обустраивают между санузлом и кухней, так что в нее удобно заходить из прихожей. Спальню отделяют от гостиной перегородками из матированного стекла с пескоструйной обработкой. Благодаря этому приватное помещение не просматривается, в то же время в него беспрепятственно проникает естественный свет. Между кухней и гостиной устанавливают конструкцию необычной формы из ГКЛ на металлическом каркасе, отделанную декоративной штукатуркой под бетон. Со стороны гостиной в ней устраивают нишу для телевизора, а со стороны кухни к этой перегородке примыкает столовая группа.

Стены всех помещений (за исключением санузла) красят декоративной краской. За подшивными потолками скрывают разводку труб к двум внутренним блокам мультисплит-системы. Вприхожей и кухне на пол укладывают керамогранит, в гостиной- массивную доску, в спальне- ковролин. Колористическое решение всех комнат одинаковое: превалирует монохромная бело-серо-черная гамма с крупными яркими пятнами цвета горчицы и имбиря. На балконе, как и просили авторы письма, организуют рабочее место, а для отдыха здесь устанавливают удобную кушетку.

Концепция проекта:
создание наполненного светом пространства, в котором зоны последовательно перетекают одна в другую. Цветовая гамма преимущественно серая с добавлением акцентов.

Экспресс - проектированиеФото 1Экспресс - проектированиеФото 2 Экспресс - проектированиеФото 3 Экспресс - проектированиеФото 4

1.Ориентируясь на аналоги решений, архитектор для разделения или зонирования помещений использовала стеклянные перегородки (между спальней и гостиной), композицию со стеллажом и модульный диван.
2-3.Между кухней и гостиной устанавливают конструкцию простой и чистой формы из ГКЛ, отделанную декоративной штукатуркой под бетон. Со стороны гостиной в ней устраивают нишу для телевизора, а со стороны кухни к этой перегородке примыкает столовая группа. Верхняя подсветка делает ее более легкой.

Основной вариант. «Три в одном»

Экспресс - проектирование
+организованы просторная и хорошо освещенная спальня с местом для детской кроватки и гостиная
+минимум мебели, помещение максимально свободно для движения
+много мест для хранения вещей
+просторная и хорошо освещенная прихожая
+выделена ниша для постирочной

-маленький совмещенный санузел для трех человек
-слабые вентиляция и инсоляция спальни

Экспресс - проектирование
Вариант 1. «Непростой маршрут»

+просторный санузел
+круглый гардероб скрывает несущую колонну в прихожей, служит интересным интерьерным акцентом и не занимает много места
+увеличена площадь кухни

-небольшие прихожая и спальня
-много проходных и нефункциональных зон
-в спальне слабая вентиляция

Экспресс - проектирование
Вариант 2. «Разумная дистанция»

+создание квартиры-студии
+большой санузел с душевой кабиной и угловой ванной
+рядом с входной зоной устроена вместительная гардеробная
+просторная прихожая, освещенная дневным светом

-небольшая спальня
-санузел увеличен за счет кухни, что потребует дополнительной гидроизоляции данного участка и может вызвать сложности при согласовании

Аналоги интерьеров, ставшие прообразами предложенной концепции

Экспресс - проектирование B B Экспресс - проектированиеАрхитектор Alliance
Фото T. Arban
Экспресс - проектирование B B, Tufty-time
Экспресс - проектированиеАрхитектор Р.Габриэль
MSC Baumeister GMBH
дизайн света: Vivere Licht, Koppi
Экспресс - проектированиеФото Ф.Бергамо Экспресс - проектированиеАрхитектор Б.Уборевич-Боровский, Д.Осипова
Фото К.Овчинникова

Письмо 4

Экспресс - проектирование
Мы с мужем приобрели квартиру свободной планировки без отделки и внутренних перегородок на 8-м этаже 15-этажного монолитного дома. Казалось бы, открывается полная свобода действий, но сложно выбрать что-то из множества вариантов. Несущих стен внутри квартиры нет- в плане она выглядит как один большой квадрат с венткоробом. Кухню (кстати, плита электрическая) и ванную думаем оставить там, где они предусмотрены застройщиком. Самую большую сложность представляет коридор. Хотелось бы, чтобы он не был похож на узкий длинный туннель, но отводить под него много полезной площади тоже нецелесообразно. Хорошо бы оставить запланированную в квартире гардеробную для хранения вещей, чтобы не загромождать комнату шкафами. Еще одно пожелание: сделать грамотное зонирование жилого помещения (на спальню и гостиную). Думаем отделить их японской шторой, но стоит ли это делать? Нужно также дополнительное спальное место- диван в «парадной» зоне. Нежелательно устраивать крошечные комнаты, особенно без окон. Что касается стиля, нам нравится минимализм. Ремонт еще не начали делать, поэтому конструктивная критика приветствуется. Сейчас нас двое, но через 1,5-2 года планируем увеличить нашу семью. Предполагаем после рождения ребенка трансформировать зону гостиной в детский уголок, а друзей будем принимать в кухне. Кроватку пока разместим рядом с нашей двухспальной.

Mirror (письмо с сайта ivd.ru)

Во всех трех проектах дизайнеры выполняют требования читателей: отказываются от коридоров, организуют прихожую-холл оптимального размера, вместительную гардеробную, которую увеличивают за счет входной зоны, а также гостиную и просторную кухню. Последнюю после небольшой перепланировки объединяют с гостиной посредством проема.

Единственное, чего нет ни в одном варианте,- минимализма. Интерьеры насыщены деталями, цветом, пластикой. Авторы берут за основу яркие, хотя и отличающиеся простой формой элементы дизайна. Мебель и люстра вполне самодостаточны и играют роль выразительных объектов, которым требуется спокойный фон. Восновном варианте гостиную и спальню объединяют. Трапециевидное помещение гостиной-спальни отделяют от остального пространства квартиры криволинейной перегородкой. Эту плавную линию повторяет и рисунок подшивного потолка. Внише последнего помимо скрытой неоновой подсветки размещают карниз с электроприводом, с помощью которого спальную зону отгораживают от гостиной декоративной шторой. Криволинейные элементы встречаются повсюду. Вкухне- столешница из гнутой фанеры, начинающаяся от пола и переходящая на стену, а затем в конструкцию подшивного потолка. Такую же сложную плавную форму имеет столешница из искусственного камня в ванной. Помимо этого можно отметить круглый журнальный стол в гостиной. Важную роль в интерьере играет цвет: бирюзовые и оранжевые акценты выгодно выделяются на бежево-коричневом фоне и смотрятся как изысканные украшения.

Концепция проекта:
создание интерьера, в котором преобладают плавные линии (перегородки, рисунок потолка) и яркие цветовые решения.

Экспресс - проектированиеФото 1
Фото на стене (слева направо): А.Свирин, В.Тяхт
Экспресс - проектированиеФото 2 Экспресс - проектированиеФото 3 Экспресс - проектированиеФото 4

1-2.Гостиная и спальня разделены не перегородкой, которая существенно сократила бы свободное пространство, а легкой шторой, закрепленной на рельсе. Это позволяет при необходимости трансформировать комнату.
3.Подчеркнуть пластику пространства можно с помощью предметов, имеющих закругленные формы.

Экспресс - проектированиеФото 5

Основной вариант. «Пластичный интерьер»

Экспресс - проектирование
+выделены зоны спальни и гостиной
+просторная кухня-столовая
+большая гардеробная
+пространство с плавными линиями обретает индивидуальность и становится интереснее по сравнению с традиционной «коробкой»

- проходная гостиная-спальня
-совмещенный санузел для семьи из двух человек не очень удобен
-многие элементы интерьера выполняют на заказ
- унитаз удален от стояка

Вариант 1. «Трансформ-пространство»

Экспресс - проектирование
+просторная кухня-столовая
+откидная кровать убирается в шкаф с антресолью, что позволяет освободить место в гостиной
+вместительная гардеробная и большой шкаф-купе в прихожей
+использование раздвижных дверей экономит пространство и позволяет трансформировать его, превращая в открытые, изолированные помещения

-совмещенный санузел для семьи из двух человек
-раскладывать и складывать кровать довольно трудоемко
-стиральная машина расположена в кухне
-спальное место открыто

Вариант 2. «Геометрия строгих форм»

Экспресс - проектирование
+большое студийное пространство гостиной
+обустройство гардеробной и кладовой
+кровать мобильно убирают в шкаф с антресолью, чтобы увеличить полезное пространство комнаты
+в квадрат хорошо вписаны три крупных предмета- обеденный стол, диван и кровать

-отсутствие изолированного помещения, что нежелательно для семьи, планирующей ребенка
-совмещенный санузел
-маленькая и тесная прихожая
-в санузле нет места для стиральной машины
-расположение дивана не предусматривает просмотр ТВ-программ

Аналоги интерьеров и текстур, ставшие прообразами предложенной концепции

Экспресс - проектирование Vibieffe Экспресс - проектирование Nolte Экспресс - проектирование Alt Lucialternative Экспресс - проектирование Sifa
Экспресс - проектирование Molteni C Экспресс - проектирование Eco Wallpaper Экспресс - проектирование ARTechnic architects

Письмо 5

Экспресс - проектирование
Здравствуйте, уважаемая редакция! Наша молодая семья (29 и 30лет) 4 года провела в тесном и шумном общежитии и наконец купила двухкомнатную квартиру с окнами, выходящими на юг, в 12-этажном каркасно-блочном доме. Пришла пора ее обустраивать. Нам очень нравится журнал "ИВД", и многие идеи, которые мы почерпнули из него, удалось воплотить при ремонте квартиры родителей. За последние несколькомесяцев изучили немало опубликованных у вас дизайн-проектов. Но в новой квартире есть настолько специфические особенности планировки (несущая колонна, не закрытые ограждением стояки в кухне и ванной, вентиляционный короб напротив электроплиты), что мы, не будучи дизайнерами по образованию, не можем решить, как грамотно ее отремонтировать. Мечтаем о полноценной спальне с двухспальным ложем, а когда появится ребенок, здесь в первыемесяцы разместим и детскую кроватку. Хотелось бы также иметь отдельную большую гостиную, в которой можно принимать родных и друзей, и функциональную кухню. Мы стараемся идти в ногу со временем. Из стилей нам по душе современная классика без изысков. Перепланировку делать не намерены из-за сложности оформления документов и дополнительных затрат. Очень надеемся на профессиональную помощь дизайнера и с нетерпением будем ждать ответа на страницах вашего журнала. Заранее благодарны.

Василий и Людмила Григорчук, г.Минск (Белоруссия)

Во всех трех проектах дизайнер предлагает перепланировку с демонтажом перегородок, на которую не рассчитывали читатели. Но только таким способом можно решить ряд задач: устроить большую гардеробную (вариант 1), превратить двухкомнатную квартиру в трехкомнатную с отдельной детской (вариант 2), а также организовать открытое, свободно перетекающее пространство (вариант, который выбран для разработки).

Вкачестве основного выбирают вариант "Натуральная сепия", требующий минимальной перепланировки, и создают легкий динамичный интерьер, наполненный светом и воздухом. Главный акцент делают на холле, связывающем воедино практически все пространство квартиры. Диагональные линии на полу и потолке соответствуют друг другу и визуально расширяют узкий холл. Вместо глухой перегородки между гостиной и холлом- ряд колонн, которые вместе с зеркальными дверями шкафов-купе и глянцевыми натяжными потолками делают интерьер «воздушным». Хрустальные люстры, отражаясь в потолке, увеличивают его высоту. Объединение ванной и туалета позволило разместить в ставшем просторным санузле большую купель и дополнительно биде. Чтобы в глубине кухни света было больше, подоконный блок сносят и устанавливают стеклянные перегородки (одна из створок остается стационарной). Цветовое решение строится на контрасте темно-коричневого (шпон цвета венге) и бежевого (выбеленный дуб), подчеркивающем лаконичность и строгую прямолинейную графичность стиля. Только в спальне этот контраст приглушен, а прямые линии смягчены мягкими складками драпировок.

Концепция проекта:
создание современного интерьера с элементами классики.

Экспресс - проектированиеФото 1 Экспресс - проектированиеФото 2 Экспресс - проектированиеФото 3 Экспресс - проектированиеФото 4

1.Простой объем гостиной усложнен деталями: горизонтальными линиями полок, подчеркивающими форму выступа, диагональными "кессонами" на потолке и отвечающим им рисунком ковра.
2-4.Приемы, которые здесь использованы (например, декоративные обои с растительным рисунком, филенки на фасадах мебели, зеркала с фацетом, двухуровневые потолки с резными нишами, где расположены светильники), привносят в интерьер атмосферу классики. Упрощенный декор колонн имитирует базу и капитель. Реализация таких несложных декоративных решений не потребует больших затрат.

Основной вариант. «Натуральная сепия»

Экспресс - проектирование
+минимальная перепланировка, которую несложно согласовать
+вместительные шкафы в прихожей
+просторный санузел с биде и стиральной машиной
+большой шкаф и встроенный туалетный столик в спальне
+обширная кухня с достаточным количеством шкафов и рабочих поверхностей, а также обеденным уголком

-потеря полезной площади из-за большого холла-коридора
-ограниченная столовая зона без возможности ее расширения
-неизолированная гостиная, где со временем будет спать ребенок
-совмещенный санузел для семьи из двух человек

Вариант 1. «Объединяй, разделяя»

Экспресс - проектирование
+ организация большой гардеробной, шкафа-купе в спальне и стеллажей в гостиной
+кухня разделена на две зоны: рабочую с Г-образным расположением мебели и столовую с барной стойкой
+раздвижные двери между гостиной и кухней позволяют объединить эти помещения
+в санузле предусмотрен хозяйственный шкаф
+детская кроватка в спальне вписана в специально устроенную нишу, последнюю в будущем заполнят шкафом или стеллажом
+установка большой столешницы вдоль окна спальни

-расположение обеденного стола и барной стойки затрудняет проход на лоджию из кухни
-необходима шумоизоляция стены между спальней и гостиной
-гостиная становится проходной комнатой
-рабочее место в гостиной расположено почти в проходе
-совмещенный санузел для семьи, планирующей ребенка

Вариант 2. «Каждому по комнате»

Экспресс - проектирование
+организованы изолированные комнаты- спальня родителей и детская
+устроена гостиная, площадь которой может быть расширена за счет утепленной лоджии
+длинный стол у окна в детской
+предусмотрено место для столовой группы
+прихожая имеет естественную инсоляцию
+просторный санузел с удобно расположенной сантехникой и хозяйственным шкафом
+созданы просторные гардеробные в спальне и детской

-большое пространство перед спальней и санузлом никак не используется
-кухня становится проходной, а обеденный стол расположен по ходу движения, что неудобно
-недостаточное количество шкафов и рабочих поверхностей в кухне
-столовая зона соседствует с прихожей
-совмещенный санузел для семьи из двух человек

Аналоги интерьеров и текстур, ставшие прообразами предложенной концепции

Экспресс - проектированиеВизуализация и дизайн О.Балабухи Экспресс - проектирование Sferon Экспресс - проектирование Sferon Экспресс - проектированиеВизуализация и дизайн О.Балабухи
Экспресс - проектирование Sferon Экспресс - проектирование Sferon Экспресс - проектирование Zaccariotto Cucine
Редакция предупреждает, что в соответствии с Жилищным кодексом РФ требуется согласование проводимых переустройств и перепланировок.
Рекомендуем