Экспресс-проектирование

Архитекторы и дизайнеры составили шесть дизайн-проектов квартир по планам, присланным читателями в редакцию

Судя по многочисленным письмам читателей, которые приходят в редакцию "ИВД" и на форум нашего журнала, сегодня существует большой интерес к облегченной версии дизайн-проекта, позволяющей сэкономить время и деньги при ремонте квартиры. Редакция отобрала шесть писем и попросила архитекторов сделать по каждому эскизные проекты- три варианта планировки. Наиболее удачный вариант, выбранный сотрудниками журнала и архитектором, был затем детально разработан: определена стилистика, подобраны отделочные материалы и цветовая гамма, выполнены 3D-изображения. Критериями отбора предпочтительного решения стали рациональность планировки и зонирования, соответствие пожеланиям авторов письма, простота согласования и, конечно, оригинальность концепции.

Хорошо, когда профессионал- архитектор или дизайнер- не только разрабатывает проект интерьера, но и берет на себя ответственность за его реализацию, осуществляет авторский надзор, представляя интересы владельца жилья. Вэтом случае выигрывают все: архитектор может проследить за точностью выполнения работ по его чертежам, а хозяин квартиры избавлен от незнакомой ему и очень трудоемкой деятельности. Он только выбирает вариант планировки, цветовую гамму и материалы, обсуждает затраты на его воплощение и в результате получает интерьер, что называется, под ключ. Дизайн-проект, включающий перепланировку, 3D-эскизы и рабочую документацию, обходится в 1200-3000руб. за 1м2. На его разработку уходит 1-3 мес. Стоимость авторского надзора- от 20тыс.руб. вмесяц (2-4 выезда). Цена зависит от квалификации специалиста и от сложности работы.

При желании можно сэкономить и заказать не рабочий проект, а его облегченную версию- экспресс-дизайн. Получив техзадание, архитектор предложит три варианта планировки, разъяснит их плюсы и минусы. Когда владелец жилья выберет оптимальный вариант (чаще всего это компиляция лучших идей всех проектов), ему представят объемную модель. Архитектор покажет 3D-изображения (по одному на каждое помещение) или устроит виртуальную прогулку по интерьеру. После окончательного согласования будут сделаны эскизы (по два на каждое помещение). Затем автор проекта подберет отделочные материалы, предложит расстановку мебели (без указания конкретных моделей и фабрик) и размещение светильников. Стоимость экспресс-дизайна варьируется в диапазоне 300-600руб. за 1м2. Работа над ним занимает от 2 нед до 1 мес. Ниже мы покажем примеры подобного рода экспресс-дизайна.

Письмо 1 (однокомнатная квартира)

Экспресс-проектирование
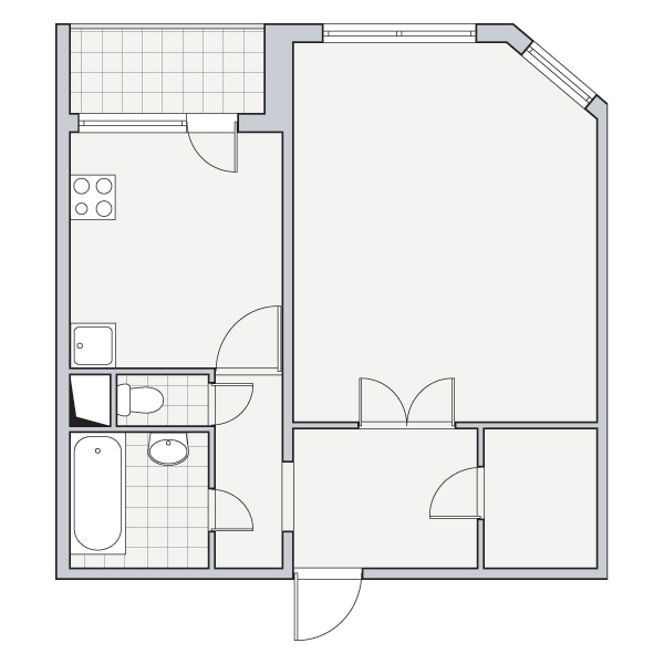
Мы подарили сыну на свадьбу однокомнатную квартиру общей площадью 46,4м2 в 17-этажном монолитно-кирпичном доме. Хотелось бы, чтобы она была комфортной и современной, ведь жить там предстоит молодой паре. На семейном совете решили обустроить новое "гнездо" с минимальной перепланировкой. Вкомнате площадью 22,8м2 с тремя окнами (два выходят на север, одно- на восток) два дверных проема, поэтому возникают трудности с расстановкой мебели. Возможно, придется заложить проем между кухней и комнатой- тогда появится место для стеллажа. Кладовая в коридоре нам кажется неудобной- шкаф-купе гораздо рациональнее. Ванную и туалет планируем разделить, а кухню- сделать яркой. Ксыну и его жене часто приходят друзья, так что стол должен быть побольше.

Суважением, Вероника, Подмосковье

Вариант "Динамика" лучше всего подходит для молодых супругов, так как он динамичный и функциональный. Динамику композиции придают диагонали: раскладка напольной плитки, разворот стены в гостиной. При диагональной планировке пространство становится интереснее. Врезультате перепланировки разделяют санузлы, организуют гардеробную, разбирают стену между кухней и коридором, чтобы обеспечить дневное освещение последнего. Вместо кладовой устанавливают шкаф-купе. Основной элемент интерьера- огибающая стену высокая обеденная столешница, которая "перетекает" в рабочий стол. Продолжение этой ломаной линии- длинная тумба с ящиками. Одну из стен комнаты отделывают кирпичом, другую- облицованными шпоном панелями, остальные окрашивают в белый цвет

.

Концепция проекта:
квартира-студия для молодой энергичной пары, часто приглашающей большую компанию друзей.

Экспресс-проектирование
Экспресс-проектирование
Экспресс-проектирование

Планировочное решение 1. «Динамика»

Экспресс-проектирование
+объединенное пространство кухни и гостиной
+тумба, обеденная столешница и рабочий стол рационально размещены по периметру комнаты
+вместительная гардеробная с небольшим окном под потолком для естественного освещения и вентиляции
+предусмотрены проектор и экран
+хорошо спланировано рабочее место, предусмотрена тумба для хранения книг
+естественная инсоляция коридора
+раздвижные двери экономят пространство
+отдельные ванная и туалет

-высокая столешница, объединенная с рабочим столом, вместо большого стола, который хотели иметь читатели
-уменьшена жилая площадь низкая шумоизоляция раздвижных дверей в санузлах

Планировочное решение 2. «Стандарт»

Экспресс-проектирование
+изолированные кухня и гостиная
+организация кабинета на балконе
+выделено место для гардеробной
+раздельный санузел
+раздвижные двери в санузлах и комнате экономят пространство и более безопасны в узком коридоре

-рабочий стол устроен на балконе, это потребует существенного утепления
-перегородка в гостиной, отделяющая гардеробную, уменьшает комнату

Планировочное решение 3. «Трансформер»

Экспресс-проектирование
+откидная кровать занимает мало места
+кресла легко сдвигаются, можно создавать из них разные комбинации
+вместительная гардеробная
+раздельный санузел
+зона домашнего кинотеатра
+рабочее место устроено на балконе

-потребуется существенно утеплить балкон
-маленькая гостиная-спальня

Письмо 2 (однокомнатная квартира)

Экспресс-проектирование
Мы приобрели для сына-студента "однушку" в 9-этажном монолитно-кирпичном доме. Вквартире большие комната и кухня, длинный Г-образный коридор (как его использовать, пока не знаем). Желательно совместить ванную и туалет. Вкомнате необходимо выделить основные зоны. Врабочей зоне нужны письменный стол и стеллаж. Хотелось бы устроить полноценную спальную зону. Взоне гостиной думаем поставить музыкальный центр, телевизор, кресла и диван. На пол в комнате лучше настелить ламинат. Кухонную мебель мы видим яркой. Пожеланий относительно стиля, фактуры и цвета у нас нет. Предпочтительны светлые тона и локальные источники света. Надеемся на «бюджетный» проект.

Семья Кузнецовых, г.Магнитогорск

Планировка во всех трех вариантах претерпевает следующие изменения: санузел становится совмещенным, и в нем вместо ванны размещают душ; в ненесущей перегородке делают новый проем, соединяющий кухню и комнату; в коридоре устанавливают шкафы, стеллажи; комната выполняет функции спальни, гостиной и мини-кабинета. Достоинства планировочного решения1- визуальное объединение пространства, улучшенная инсоляция. Спальную зону располагают у окна, поскольку приятно просыпаться с солнечными лучами. Зона гостиной находится в глубине комнаты, ее отделяют от спальной невысокой перегородкой, служащей несущей конструкцией для рабочего стола, подставки для телевизора и полок. Конструкция потолка также способствует визуальному делению помещения на зоны.

Концепция проекта:
рациональная планировка квартиры-студии; деловой, сдержанный стиль- интерьер должен настраивать на учебу.

Экспресс-проектирование
Экспресс-проектирование
Экспресс-проектирование

Планировочное решение 1. «Мои университеты»

Экспресс-проектирование
+в комнате выделены спальная и гостевая зоны
+удобное расположение спального места у окна
+вместительный угловой шкаф-купе в коридоре и прямоугольный- в спальне; предусмотрены стеллажи
+открытое студийное пространство, где много света и воздуха
+предусмотрены книжные стеллажи по обе стороны дивана

-перенос проема и объединение санузлов потребует согласования
-мало места для занятий
-площадь санузла частично уменьшена
-кровать просматривается из коридора
-узкий проход между угловым шкафом в коридоре и выступающим углом ванной

Планировочное решение 2. «Все на своем месте»

Экспресс-проектирование
+хорошая инсоляция гостиной
+гостиная объединена с кухней
+вместительный встроенный шкаф в спальной зоне
+достаточно места для занятий

-перенос проема в ненесущей стене и объединение санузла потребуют согласования
-небольшая площадь санузла
-не задействовано пространство длинного коридора

Планировочное решение 3. «Практичный студент»

Экспресс-проектирование
+хорошая инсоляция рабочего уголка
+длинный коридор задействован, теперь здесь вместительный шкаф-купе
+центр комнаты сделали свободным от мебели

-перенос проема в ненесущей стене и объединение санузла потребуют согласования
-из-за узости коридора придется устанавливать раздвижную дверь в санузле
-небольшой санузел

Письмо 3 (двухкомнатная квартира)

Экспресс-проектирование
Я приобрела двухкомнатную квартиру площадью 64м2 (высота потолка- 2,7м) в16-этажном монолитно-блочном доме. Всемье нас двое: мне 30 лет, а сыну- 2 года, и каждому нужна своя комната. Хотелось бы иметь отдельную гостиную (возможно, совмещенную с кухней). Япланирую сделать из "двушки" трехкомнатную квартиру. Несущих стен нет, но есть колонны. Окна выходят на юг. Минусы жилья- маленькие прихожая и кладовая. Перепланировка меня не пугает, нежелателен только совмещенный санузел. Мне представляется объединенная кухня-гостиная с круглым столом. Кухня не должна быть совершенно открытой. Нужна рабочая зона. Необходимо предусмотреть места для хранения вещей. Цветовое решение интерьера- в теплых светлых тонах.

Суважением, Ольга, г.Витебск (Белоруссия)

В варианте "Воздух" есть разделение приватных территорий, однако спальню хозяйки почти совмещают с гостиной. Вварианте "Калейдоскоп" из-за ломаных линий стен помещения приобретают необычную конфигурацию. Такая планировка понравится молодым людям, стремящимся к оригинальности. Ее минус- нерациональное использование площадей, прием оправдан для квартир метражом от 120м2. Основное решение получило название "Европейское" благодаря популярной в Европе идее общего пространства гостиной-кухни. Преимущества этого варианта: за счет сокращения площади коридора и переноса кухни в центр квартиры появляется гостиная-кухня и удается выделить спальню с рабочим местом и детскую. Минус- отсутствие окон в кухне.

Концепция проекта:
создание простого, максимально открытого и функционального интерьера.

Экспресс-проектирование
Экспресс-проектирование
Экспресс-проектирование

Планировочное решение 1. «Европейское»

Экспресс-проектирование
+кухня вынесена в центр квартиры и объединена с гостиной (что не нарушает СНиПов)
+самые большие комнаты отведены для спальни и детской; последняя расположена рядом с балконом, где оборудована игровая
+сохранена кладовая
+организована гардеробная при спальне
+коридоров практически нет

-потребуется удлинять все коммуникации для переноса кухонного оборудования
-кухня и гостиная лишены естественного освещения
-прихожая существенно уменьшена, и из нее входят сразу в кухню
-дверь в ванную ведет из кухни

Планировочное решение 2. «Воздух»

Экспресс-проектирование
+просторная кухня-столовая с окном
+большая прихожая с вместительным шкафом для одежды; свет проникает в глубину этого помещения через стеклянную перегородку
+сохранена кладовая
+раздвижные перегородки позволяют сэкономить площадь

-недостаток дневного света в гостиной
-маленькая площадь детской
-кухня и гостиная удалены друг от друга

Планировочное решение 3. «Калейдоскоп»

Экспресс-проектирование
+появление новых неортогональных границ помещений
+просторная прихожая
+увеличение кладовой за счет коридора
+изолированные спальня и детская

-большая часть пространства неудобна для повседневной жизни
-некоторые предметы мебели придется делать на заказ по чертежам архитектора
-мало мест для хранения вещей
-кухня не изолирована
-плохая инсоляция гостиной

Письмо 4 (двухкомнатная квартира)

Экспресс-проектирование
Мы c мужем (нам чуть больше 45 лет) купили двухкомнатную квартиру в доме серии И-79-79. Перепланировку делать не собираемся- изменения должны быть минимальными. Важно, чтобы проект был бюджетным. Поскольку муж писатель и работает дома, необходима хорошая шумоизоляция комнат. Прихожую и коридор хотелось бы решить в оранжевых тонах. Нужны встроенные шкафы, поскольку у нас много вещей. Двери, ведущие в гостиную и кухню, должны быть стеклянными. Гостиную думаем оформить в синей гамме (даже оконные рамы и батареи сделать синими), а туалет и ванную- в желтой. Вкухне стены и батарея пусть будут желтыми, а мебель- синей. Спальню хотели бы выполнить в зеленых тонах с устройством ниши в изголовье кровати.

Наталья Надеева, г.Московский

В дизайнерском решении1 главное- цвет, фактура материалов и освещение. Перепланировка минимальна- дверной проем в туалете переносят из коридора в прихожую. Это позволяет установить вдоль стены санузлов большой стеллаж для книг. Кстати, стеллажи и шкафы размещены по всему периметру стен, что улучшает звукоизоляцию квартиры. Вгостиной устанавливают объединенную с подоконником столешницу с ящиками. Рядом, вдоль стены, ставят тумбу: она предназначена не только для техники- на ней можно сидеть. Откатная дверь может закрывать проход из коридора в кухню или гостиную. Плюсы такого решения- интересная игра с разными сценариями планировки, хорошая инсоляция прихожей и коридора. Минус в том, что кухню и гостиную нельзя изолировать одновременно.

Концепция проекта:
незначительное изменение планировки; основное внимание уделено комбинации открытых, ярких цветов и материалам с различными фактурами.

Экспресс-проектирование
Экспресс-проектирование
Экспресс-проектирование

Планировочное решение 1. «Радость цвета»

Экспресс-проектирование
+большое количество шкафов
+по всему периметру стен установлены стеллажи, шкафы, столешницы- это рационально и позволяет улучшить звукоизоляцию
+выполнена шумоизоляция спальни
+вход в санузел сделан из прихожей
+раздвижные двери в кухне и гостиной экономят пространство
+холодильник спрятан в нише

-для лучшей шумоизоляции спальни нужна не раздвижная дверь, а распашная
-из-за шумоизоляции спальни высота помещения уменьшена на 19см
-общая раздвижная дверь в гостиной и кухне не позволяет изолировать оба помещения одновременно

Планировочное решение 2. «Все как надо»

Экспресс-проектирование
+сохранение первоначальной планировки
+объединение рабочей столешницы с подоконником в спальне удобно и позволяет экономить место
+в коридоре установлен стеллаж для книг во всю стену
+по желанию автора письма в прихожей использованы стеклоблоки

-мало мест для хранения вещей
-вкухне и гостиной нет дверей

Планировочное решение 3. «Под углом»

Экспресс-проектирование
+расположение мебели по диагонали способствует интересной организации пространства
+вход в санузел устроен из прихожей, это позволяет поставить длинный стеллаж для книг
+раздвижная дверь в кухне и гостиной помогает экономить пространство коридора

-небольшая прихожая
-мало мест для хранения вещей
-нужно предусмотреть решетки в столешнице для циркуляции воздуха

Письмо 5 (двухкомнатная квартира)

Экспресс-проектирование
Наша семья (муж, жена и сын) приобрела двухкомнатную квартиру площадью 74м2 в панельном доме серии П-111М в г.Железнодорожном. Одну комнату хотим отдать сыну-подростку, а относительно другой (она побольше и с балконом) пока ничего не решили. Хотелось бы иметь и гостиную, и спальню. Перепланировка возможна, поскольку в квартире всего две несущие стены: продольная, отделяющая комнаты от кухни, санузла и прихожей, и поперечная- между одной из комнат и ванной. Предпочтений по стилю у нас нет, но тяготеем к современным решениям. Пожалуйста, помогите советом.

Milane (письмо с сайта ivd.ru)

Во всех трех предложенных решениях кухню располагают не в отдельном помещении, а совмещают с прихожей или гостиной. Несмотря на небольшую площадь, в каждом варианте не только планируют необходимые комнаты, но и создают кабинет, места для хранения, постирочную, просторную прихожую. Вариант1 учитывает все пожелания хозяев квартиры хотя и не бесспорен. Гостиную соединяют с кухней-столовой. Спальня родителей становится изолированным помещением с рабочим уголком, отделенным ширмой. Вкомнате подростка оборудуют подиум: он обеспечивает неформальную обстановку для приема гостей и позволяет создать больше мест для сидения. Внем предусматривают выдвижной журнальный стол, спальное место и ящики для вещей.

Концепция проекта:
оптимальное функциональное зонирование помещений. Дизайн строится на сочетании прямых и плавных линий, использовании определенной цветовой гаммы для каждого помещения и применении разнообразных отделочных материалов.

Экспресс-проектирование
Экспресс-проектирование
Экспресс-проектирование

Планировочное решение 1. «Приватная открытость»

Экспресс-проектирование
+просторная общественная зона гостиной-столовой-кухни
+почти нет коридоров
+устройство гостевого санузла
+в спальне родителей организован мини-кабинет
+многофункциональная комната подростка
+достаточно просторная спальня родителей

-проходная кухня
-вход в ванную- из гостиной, далеко от обеих спален
-душ вместо ванны (это решение устроит не всех)

Планировочное решение 2. «Принцип студии»

Экспресс-проектирование
+большая спальня родителей
+обе спальни и санузел выделены в приватную зону с общим тамбуром
+достаточно мест для хранения вещей
+устройство постирочной с бельевыми шкафами
+просторная комната подростка, центр остается свободным

-совмещенный санузел
-близость кухни к прихожей
-небольшие гостиная и обеденная зона

Планировочное решение 3. «По классике»

Экспресс-проектирование
+удачное совмещение кухни и столовой
+создание постирочной во входной зоне
+в комнате подростка помимо спального и рабочего мест выделена зона отдыха
+удобные системы хранения

-необходимость увеличения проема в продольной несущей стене
-кухня занимает часть площади санузла, что вызовет трудности при согласовании
-спальня расположена над кухней соседей сверху
-совмещенный санузел для трех человек
-зона столовой находится на проходе

Письмо 6 (однокомнатная квартира)

Экспресс-проектирование
Я приобрел однокомнатную квартиру в Москве. Мне 29 лет, много времени провожу на работе, езжу в командировки. Ко мне часто приходят друзья, нужно место для приема гостей и просмотра фильмов. Нравятся большие пространства- лофты, студии, но из-за несущей стены реализовать такую идею сложно: нет времени и денег согласовывать перепланировку. Думал объединить прихожую и комнату, но все же это не слишком удобно. Нужна просторная гардеробная, а вместо ванны хотелось установить душевую кабину. Вкомнате желательно разместить раскладной диван, большой телевизор и тумбу. Кухня необходима компактная, мебели и вещей- минимум. Хотелось бы видеть строгий интерьер в европейской стилистике.

Nikolas (письмо с сайта ivd.ru)

Планировочное решение1 оказалось более предпочтительным, поскольку в нем учтены все пожелания автора письма. Во втором- комната чересчур приближена к прихожей, а длинный стол мешает свободно перемещаться по кухне. Втретьем варианте кухня слишком тесная, а комната разделена на спальню и гостиную. Вварианте "Функция и простота", используя раздвижную перегородку, комнату можно объединить с прихожей, а когда необходимо- изолировать ее. Нет лишней мебели, кричащих цветов, декоративных деталей, картин и постеров. Главное- создание уютной и комфортной обстановки. Тумба вдоль всей стены гостиной переходит в рабочую столешницу, благодаря чему они выглядят как единая компактная композиция, не загромождающая комнату.

Концепция проекта:
сохранение планировки и создание европейского респектабельного интерьера за счет сочетания материалов.

Экспресс-проектирование
Экспресс-проектирование
Экспресс-проектирование
Экспресс-проектирование

Планировочное решение 1. «Функция и простота»

Экспресс-проектирование
+днем гостиная объединена с прихожей за счет открытой раздвижной перегородки
+компактное расположение сантехники в санузле сохраняет свободное пространство
+большая столешница умывальника, под ней стиральная машина
+обустроена просторная гардеробная
+предусмотрена длинная тумба вдоль стены гостиной
+минимум мебели
+большой стол в кухне
+не затронуты несущие перегородки

-маленькое расстояние между унитазом и стиральной машиной

Планировочное решение 2. «Компромисс»

Экспресс-проектирование
+предусмотрены спальная зона с кроватью и гостевая с креслами
+достаточно мест для хранения вещей
+много шкафчиков в кухне
+не затронуты несущие перегородки

-из-за увеличения кухонного фронта проход в помещение становится узким, а пространство кухни зрительно уменьшается
-тумба и рабочий стол объединены в целостную композицию, поэтому их придется делать на заказ
-спальня-гостиная не отделена дверью от прихожей

Планировочное решение 3. «Без границ»

Экспресс-проектирование
+предусмотрены шкафы для вещей и открытый гардероб
+благодаря демонтажу перегородки прихожая освещена дневным светом, а комната стала больше
+не затронуты несущие перегородки
+длинная столешница функциональна

-расстояние между обеденным столом и кухонным фронтом меньше 90см, поэтому в кухне тесно и неудобно готовить

Редакция предупреждает, что в соответствии с Жилищным кодексом РФ требуется согласование проводимых переустройств и перепланировок.
Рекомендуем