Аскетичная однушка для студента со спальней, кухней-гостиной и рабочим местом
Заказчики и задачи
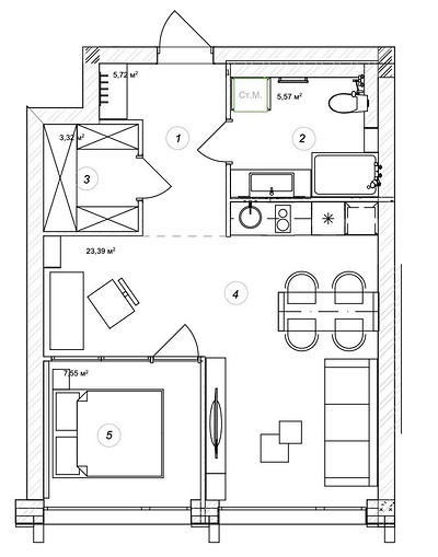
Родители купили эту квартиру для сына-студента. Она находится в жилом комплексе в деловой части города на 26 этаже. Нужно было оформить отдельное спальное место и удобную зону для учебы. Кухня должна была занимать мало места, по пожеланиям заказчиков, а гостиная — быть просторной, для того, чтобы пригласить друзей.
Перепланировка
Изначально планировка была типовой для однокомнатной квартиры: кухня, комната, ванная. Перепланировку удалось изменить еще на этапе возведения дома, застройщик предоставлял такую услугу за дополнительную плату. Что получилось в итоге: перегородку между кухней и комнатой частично убрали, открыли входную зону. Расширили ванную комнату за счет прихожей. Нетронутой осталась перегородка между ванной и кухней, как и положено по нормам. Построили небольшую нишу, куда встроили линейный кухонный гарнитур. Кухня отделена от гостиной лишь визуально, высоким обеденным столом.
Спальню закрывает от гостиной зоны глухая перегородка. С другой стороны зона сна отделена стеклянной перегородкой со шторой и дверью. Рядом со спальней оформили рабочую зону. При входе в квартиру сделали гардеробную.
Отделка
Основным напольным покрытием стал ламинат европейского производства с декором шеврон. Керамогранит уложен только в ванной комнате. На стенах скомбинировано несколько видов отделки: краска и клинкерный кирпич.
Мебель и системы хранения
Так как концепция интерьера — «ничего лишнего», хранение в основном сосредоточено в гардеробной. Дополнительные опции — небольшая вешалка для одежды в прихожей, полка для обуви там же, хозяйственный шкаф в ванной и высокий шкаф-пенал в гостиной. Автор проекта уточняет, что пока он стоит пустой — хозяин квартиры не придумал его назначение. Вокруг рабочего стола тоже сконструирована система хранения: тумбы и полки.
Освещение
Свет, в основном, играет функциональную роль: это встроенные и поворотные споты на потолке. Акцентными выбраны бра на стене над диваном и над кроватью, подвесы из стекла в ванной и светильники из металла и микроцемента над кухонным столом. Они же стали и дополнительными сценариями света.

