
В соответствии с принципами анфиладного интерьера начала прошлого века каждая из комнат квартиры окрашена в свой цвет.
Голубая гостиная
- одно из наиболее просторных помещений в квартире

Зеркала зрительно увеличивают пространство

Арки бирюзового холла изготовлены из гипсокартона

Декоративное "окно" в гостиную

Кабинет

Ванная комната

Спальня

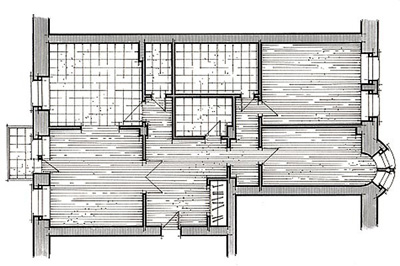
Первоначальная планировка квартиры

Планировка после реконструкции
Что и говорить, не самая обычная "типовушка" оказалась предметом нашего пристального внимания. Следуя звуковым аналогиям, квартиру целесообразно было бы назвать "старушкой", поскольку расположена она
в недавно отреставрированном (сфасада) и реконструированном (внутри) доме в исторической части Санкт-Петербурга.
Требования заказчика (молодая семья) сводились преимущественно к вещам практического характера: рациональная перепланировка исходного проекта, определенное количество и предназначение комнат, архитектурно-планировочное деление квартиры на гостевую и интимную зоны. Было пожелание и к декору: он должен был сочетать в оформлении помещений приемы, позволяющие угадать то, что интерьер современен, и то, что он расположен в старом петербургском доме.
Проект не ограничивался дизайном. Он включал целый ряд конструктивных изменений, усложнивших прямоугольную планировку исходного варианта. Во-первых, снос перегородок позволил заметно увеличить холл, расширить столовую, объединив ее с кухней и гостиной в единое зонированное пространство. Во-вторых, нетрадиционное, «раскрепощенное» расположение новых перегородок не под прямым углом к несущим стенам создало ощущение современного интерьера. Ну и наконец, перегородки приняли активное участие в формировании пространства: выгородили ниши для стеллажей и встроенных шкафов, скрыли пилоновидные фрагменты несущих стен.
Ассоциации со старинной усадьбой или городским барским домом возникают уже в холле, где над диваном сделано окно в гостиную с чисто декоративной целью- создать иллюзию преддверия дома, палисадника, открытой веранды. Тема ретро не ограничилась только этой архитектурной "обманкой". Арки в холле не слишком навязчиво, но вполне определенно играют в ту же игру, и пастельные тона, в которые окрашены стены, ассоциируются с панелями рокайльных интерьеров петербургских дворцов. Обращает на себя внимание и то, что в соответствии с принципами анфиладного интерьера начала прошлого века каждая комната квартиры окрашена в свой цвет: в бирюзовый- холл, голубой- гостиная, бежевый- спальня, цвета слоновой кости- кабинет и так далее.
Мебель для квартиры подбирали так, чтобы она не производила впечатления единовременности ее покупки. Cмысл такой нарочитой эклектики сводится к созданию иллюзии обжитости интерьера, постепенного, многолетнего приобретения то одной, то другой понравившейся вещи.
Реализацию проекта осуществляла бригада строителей под руководством архитектора. Нужно заметить, что совмещение в одном лице архитектора, дизайнера и руководителя строительства- довольно распространенное в наше время явление не только при реконструкции «типовушек», но и значительных по площадям частных апартаментов.
Приведение квартиры к «нулевому циклу» началось со сноса ненесущих перегородок. Те, что вписывались в новый проект (например, перегородка между спальней и детской, между вторым холлом и гостевым санузлом), подверглись лишь частичному разрушению. Новые перегородки возводили из гипсолитовых плит.
Первый патент на гипсокартон был получен американцем Огастом Сэкеттом в конце прошлого века. Его изобретение представляло собой лист толщиной 5мм, в состав которого входил гипс как вяжущее вещество для 10бумажных листов. Спустя почти двадцать лет, вместо бумаги был предложен картон, а производство нового стройматериала началось в Англии в1917году. Одна из немецких фирм "БРАТЬЯ КНАУФ", чья продукция наиболее продвинута на нашем рынке, выпускает листы современного вида аж с1959года.
Гипсолитовые плиты изготавливаются из формовочного гипса и древесной стружки, армируются металлической сеткой. Они поглощают влагу из воздуха при ее избытке и отдают обратно, если в помещении сухо, они не горючи и не токсичны. По мнению автора проекта, гипсолит прочнее распространенных перегородок из гипсокартона на деревянном каркасе и обладает лучшими звукоизоляционными свойствами. Если сравнивать с кирпичом, то гипсолитовые плиты намного легче кирпичной кладки, установка их происходит быстрее из-за больших размеров. Вотличие от кирпича гипсолит легко сверлится обычным сверлом, и проблема крепления на подобной плите полки, ковра, кашпо или картины не представляет сложностей.
Для выравнивания поверхностей несущих (кирпичных) стен были использованы шпатлевки VETONIT. Хотя система отделочных материалов VETONIT достаточно хорошо зарекомендовала себя в России и пользуется спросом, следует отметить, что современный рынок предлагает довольно большой выбор выравнивающих смесей как для пола, так и для стен. Среди них известен и ряд отечественных материалов (совместное или лицензионное производство), обладающих неплохим качеством и более умеренной ценой.
Вообще гипсом, как строительным материалом, пользовались еще древние египтяне, начиная с3700года до нашей эры. Название "гипрос" дали ему греки, древние же. Оно переводится на русский как "кипящий камень". Римляне распространили гипс в Европе, но здесь он стал использоваться как отделочный материал только сXVвека
Начальная высота потолков в квартире составляла 3м10см. Вбольшей части помещений решено было сделать их многоуровневыми. Во-первых, это современно, придает однообразно ровной поверхности динамические свойства. Во-вторых, многоуровневые конструкции, в том числе и потолок, обладают не вполне объяснимым психологическим эффектом: они приятны для человеческого глаза как ритмический повтор, как вид водоема вблизи дома или гор на горизонте. И наконец, многоуровневый потолок предоставляет прекрасную возможность надежно спрятать воздуховоды для кондиционера, вытяжки на кухне, шлейфы электропроводов, а также врезать каскад точечных светильников. Вкачестве основного материала для изготовления многоуровневого потолка был использован все тот же гипсокартон. Вотличие от оргалита и ДСП он достаточно прочен и обладает ровной нетекстурированной поверхностью. При этом сухой гипсокартон (до12мм толщиной) можно изгибать как в продольном, так и в поперечном направлении (жесткость в поперечном направлении меньше), чтобы получить на потолке эффект "волны". Более толстые листы предварительно увлажняют. Часто фальшпотолок из гипсокартона укрепляют с помощью деревянных брусков, но в этот раз воспользовались более надежным металлическим каркасом. Внутри него укрепили воздуховоды от канального кондиционера FUJITSU и шлейф проводов (NYM с соединениями на клеммах).
Следует знать, что гипсокартон обладает одним, но существенным недостатком: он не стоек к влаге. Если соседи сверху однажды (или не однажды!) зальют вас, то гипсокартон может не только пойти разводами и потрескаться, но и обрушиться.
Для окраски потолка и стен использовали финскую краску TIKKURILA.
Пол во всей квартире был настелен в одном уровне. Поскольку проект реализовался в реконструированном доме, где в качестве перекрытий были уложены железобетонные плиты, вскрытия полов не делали, а по бетонной стяжке укладывали финский паркет, керамическую и порцелановую плитки производства Италии и Испании. Вванной комнате под кафельным покрытием уложен "теплый пол" DE-VI.
Необходимости в переносе стояков не было, проект был привязан к имеющимся. Вообще говоря, изменения расположения стояков архитекторы очень не любят, поскольку это связано с преодолением запретов со стороны организаций, контролирующих точность соблюдения санитарных, строительных и прочих норм. Кроме того, проведение труб к старым стоякам требует поднятия уровня пола для маскировки сливной системы и декоративных ухищрений для подводящей. Вданном проекте кухня и санузлы сгруппированы вокруг водопроводно-канализационного стояка. Конечно же, все потребляющее оборудование было снято и вместо него установлено новое: ванна, душевая кабина, унитазы, смесители, на кухне встроенная техника. Что касается отопительной системы, то заменены были только отечественные стальные радиаторы на алюминиевые из Италии.
При любой подобного типа реконструкции квартиры часто происходит замена традиционных наших окон и межкомнатных дверей на зарубежные аналоги. Причина такой антипатриотичности очевидна: иностранцы делают их красивыми, добротными, надежными. Современные окна должны обладать повышенной звукоизоляцией и намного более эффективно предохранять помещение от проникновения в него холода с улицы, а среди предлагаемых межкомнатных дверей при желании можно выбрать даже устойчивые к обстрелу из автоматического оружия. Справедливости ради необходимо отметить, что отечественное производство тоже не дремлет, и в настоящее время работают уже несколько заводов, оснащенных зарубежным оборудованием и технологиями. Однако качество проверяется только временем, и потому для реализации данного проекта были выбраны финские окна и финские буковые двери.
В наше время гипсокартонные листы и подобные материалы стали не просто удобным стройматериалом, но и причиной возникновения популярной за рубежом технологии «сухого строительства». То есть такого строительства, при котором не используются процессы, связанные с приготовлением и использованием кладочных растворов, бетонных смесей, штукатурки
Сроки подготовки и реализации проекта оказались сравнительно небольшими для такого объема работ. Судите сами: 3недели заняла проектная часть и немногим больше пятимесяцев продолжались строительно-отделочные работы.
Однако все ли так замечательно, как может показаться на первый взгляд? Врезультате реконструкции активное жизненное пространство несколько сократилось по сравнению с исходным из-за увеличения площадей, которые были отведены под холлы. Представляется сомнительным преимущество преобразования небольших коридоров в просторные холлы. Думается, более рациональная планировка предусмотрела бы возможность увеличения жилой площади: спальни, детской, а также санузлов или иных функциональных, а не проходных помещений квартиры.
Пока комментариев нет. Начните обсуждение!