Присоединяй и властвуй


Достаточно просторная столовая сообщается с зимним садом. Напольное покрытие в нем можно выполнить из композитного камня от STONE ITALIANA (Италия)
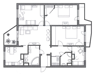
Планировка после реконструкции
Все три проекта серьезно продуманы с учетом согласования в жилищных ведомствах (БТИ, СЭС, МВК). А
К сожалению, обилие несущих конструкций ограничило возможности архитекторов в области перепланировки. Однако, как показывает практика, создать интересный, оригинальный интерьер можно и декоративными средствами. Профессионализм архитектора, его творческое сотрудничество с заказчиком способны совершать настоящие чудеса.
Решение присоединить к своей квартире вторую, и без того уже образующую с нею общий блок
(на языке профессионалов
Жилой панельный дом серии П44Т-4
Это 17-этажное здание с одно-, двух- и трехкомнатными квартирами. Наружные стены выполнены из навесных трехслойных панелей толщиной 300
Блоки-секции разработаны на основе индустриальных компонентов, произведенных
В данном случае здание облицовано снаружи плиткой под кирпич. Ограждение балконов выполнено из бетона, окрашено в заводских условиях и тоже облицовано плиткой.
В домах этого типа возможна лишь самая минимальная перепланировка. Это связано с особенностями конструкции и внешней отделки здания.
Прежде чем приступить к ремонту с перепланировкой, необходимо получить в МосжилНИИпроекте техническое заключение о состоянии конструкций вашего жилья. Кроме того, может потребоваться разрешение на проведение работ от районной Межведомственной комиссии.


Для трех поколений одной семьи
Слабая сторона проекта:
Это уже становится отчетливой тенденцией: молодые семьи все чаще предпочитают жить со своими родителями большой полноценной семьей. Итак, перед вами квартира, в которой могут с комфортом разместиться ребенок, родители и дедушка с бабушкой.
Авторы проекта отдали предпочтение современному стилю, подходящему как для молодого поколения, так и для людей пожилого возраста. Правда, комната бабушки и дедушки обставлена более консервативно, чем остальные (и
В целом для интерьера предлагаются спокойные пастельные тона, способные создать в доме атмосферу уюта и комфорта. Гостиная увеличена за счет присоединенного балкона, на котором устроен зимний сад (от
С учетом проживания большой семьи в проекте предусмотрены две гардеробные: в
Для реализации этого проекта требуется осуществить следующие конструктивные изменения. Разобрать старые перегородки в санузлах и частично при входе в гостиную, а затем возвести новые, из пазогребневых гипсолитовых блоков (в
Для детской подобраны модульные секции от фирмы Mr.DOORS
Сметная стоимость:
проектная часть (21 |
$ |
авторский надзор |
$ |
строительство (5 |
$ |
строительные и отделочные материалы |
$ |
мебель, оборудование |
$ |
сантехника |
$ |
освещение |
$ |
ИТОГО |
$ |
---|
Грамотно подобранная мебель, интересный рельеф подвесного потолка, а также продуманное освещение способны превратить самую обычную комнату в весьма оригинальную гостиную
Планировка после реконструкции
Минимальная перепланировка
Слабые стороны проекта:
Квартира предназначена для семьи из пяти человек. Центральное положение в интерьере занимает холл, оставшийся на своем прежнем месте. Вообще по замыслу автора проекта перепланировка сводится к минимуму. При этом жилище получается достаточно просторным и эффектным. Коммуникации и воздуховоды не перемещаются, балконы к жилому пространству не присоединяются. Старые окна и балконные двери заменяются новыми, деревянными, с двухкамерными стеклопакетами (оконные и дверные блоки изготавливаются из качественного, хорошо просушенного трехслойного клееного бруса с использованием экологически чистых вододисперсионных красок и лаков). Устанавливаются радиаторы от GLOBAL (Италия), их можно декорировать экранами.
Для облицовки пола в прихожей предлагается плитка от
На кухне установлена мебель фирмы FORMAT (Германия). Мойка переносится от окна в сторону вентиляционного блока. Подвесной светильник не потребовал изменения уровня потолка. А
В спальне родителей (где хватило места для устройства небольшой гардеробной) и в кабинете доминирует светло-голубой цвет. Причем в спальне мебель итальянского производства (SANGIACOMO) смело с ним контрастирует. Для кабинета предлагается обстановка от DC
Вообще освещение квартиры продумано подробно, с учетом инсоляции каждого помещения. Автор проекта охотно использует встроенные галогенные лампы от BRUMBERG (Германия) с широким спектром рассеивания. Кроме того, предлагаются потолочные и настенные светильники итальянской фирмы B.LUX. Все они представлены в различных вариантах и сочетаниях. Скажем, в прихожей используются светильник на рельсе и точечные источники. В
Сметная стоимость:
проектная часть (21 |
$ |
авторский надзор |
$ |
строительство |
$ |
строительные и отделочные материалы |
$ |
мебель, оборудование |
$ |
сантехника |
$ |
освещение |
$ |
ИТОГО |
$ |
---|
Интерьер гостиной интересен своей геометрией: прямоугольники,
четкие горизонтали и вертикали сочетаются здесь с плавными, текучими линиями
Планировка после реконструкции
Контрастное решение
Слабая сторона проекта:
Автор этого проекта предлагает смело использовать в интерьере цветовые контрасты. Такой подход позволяет сделать гостевую зону яркой, а спальню оформить в спокойных, мягких тонах. Хитом гостиной, безусловно, является интересно подсвеченный карниз из гипса.
Небольшая прихожая располагается на месте бывшего тамбура. Далее мы попадаем в столовую, совершенно неслучайно выделенную в отдельную комнату. Здесь часто собираются все члены семьи, состоящей из трех человек. Для зрительного увеличения этой и без того не маленькой комнаты предлагается расширить выход на балкон до размеров оконного проема. Теперь организованный на присоединенном балконе зимний сад и столовую разделяют лишь стеклянные перегородки. В
Также в квартире необходимо произвести следующие планировочные изменения: демонтировать перегородки санузлов (расположение сантехники изменено, что требует новой разводки труб); снести перегородку между столовой и холлом бывшей трехкомнатной квартиры. Для увеличения пространства спальни (расположенной в бывшей однокомнатной квартире) частично демонтируется стена между нею и гардеробной. В
На кухне предлагается убрать холодильник в нишу. А
Сметная стоимость:
проектная часть (21 |
$ |
строительство |
$ |
строительные и отделочные материалы |
$ |
мебель, оборудование |
$ |
сантехника |
$ |
освещение |
$ |
ИТОГО |
$ |
---|
- Источник: Журнал «Идеи вашего дома»№50
Пока комментариев нет. Начните обсуждение!