Панельный дом серии П-3М
Гостиная
Планировка после реконструкции
В этом номере журнала мы публикуем восемь вариантов перепланировки четырехкомнатной квартиры в панельном доме серии
Дома этой серии панельные, из широтных четырехквартирных прямых и угловых секций с одно-, двух-, трех- и четырехкомнатными квартирами, могут иметь от
Кроме того, ванная комната и санузел отдельными блоками помещены в специальные железобетонные камеры. Поэтому образующие их стены толщиной 140

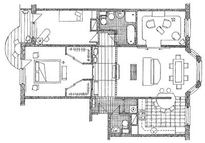
Первоначальная планировка квартиры
Интерьер в высоком стиле
Перепланировка. Проектом предусмотрен снос части несущих перегородок, что позволяет оборудовать гостевой санузел и визуально расширить центральный холл. Площадь ванной комнаты увеличена за счет прилегающего к ней коридора. На месте существующего дверного проема устроен остроугольный выступ из стеклоблоков, ориентированный по оси холла. Перепланировкой предусмотрены встроенные шкафы в холле и спальнях.
Состав семьи. Наличие двух спален, общей комнаты, кухни, столовой и двух санузлов позволят проживать в данной квартире семье
Прихожая. В
Холл занимает в квартире центральное место. Пол из черного лабрадорита с фрагментом из паркетной доски. Стены покрыты "венецианской штукатуркой" в сочетании с матовыми стеклоблоками. Обращают на себя внимание такие декоративные элементы как колонны и балки из искусственного мрамора. Здесь размещены мягкое кресло необычной формы фирмы ROSE ($
Общая комната продолжает стилевое решение холла. Стены отделаны "венецианской штукатуркой" терракотового цвета, который удачно сочетается с фрагментами простенков из матовых стеклоблоков. Особое внимание обращают на себя кронштейны, поддерживающие деревянные балки. Они выполнены из искусственного мрамора в виде голов античных муз. Меблирована общая комната мягким диваном SCHARK ($
Кухня отличается простотой отделки. Пол
Столовая. В
Спальня. Пол здесь отделан паркетной доской, стены
Детская. В
Ванная комната и гостевой санузел. В
Освещение. Прихожая
| Виды работ | Помещения | Материалы |
Кол-во
в ед. |
Стоимость в |
|
| ед. изм. | общая | ||||
| Отделка поверхностей: | |||||
|---|---|---|---|---|---|
| полов | кухня, спальня, детская, холл, столовая, общая комната | паркетная доска Junckers |
68 |
100 | 6800 |
| остальные помещения | напольная керамическая плитка Architect |
45 |
25 | 1125 | |
| стен | кухня, санузел, ванная комата | настенная керамическая плитка Architect |
34,8 |
25 | 870 |
| спальня, детская | текстильные обои |
57 |
4 | 228 | |
| остальные помещения | «венецианская штукатурка» |
102,6 |
60 | 6156 | |
| потолков | санузел, ванная комната | металлическая рейка |
8,1 |
17 | 137,7 |
| холл |
декоративные балки
"под |
4 шт. | 150 | 600 | |
| столовая, общая комната | декоративные балки из дерева с кронштейнами-скульптурами |
6 |
180 | 1080 | |
| спальня | плафон из гипсокартонных листов |
8,6 |
13 | 111,8 | |
| детская, столовая, спальня, общая комната, кухня, холл | шпаклевка Pufas и водоэмульсионная краска |
89,3 |
6 | 535,8 | |
| Установка конструкций: | |||||
| дверей | входная | металлическая, Barausse | 1 шт. | 1600 | 1600 |
| детская, спальня, санузел | распашные деревянные со вставками из мурановского стекла, Barausse | 3 шт. | 780 | 2340 | |
| ванная комната | раздвижная деревянная, Comas | 1 шт. | 1100 | 1100 | |
| окон | весь объект | деревянный с двухкамерным стеклопакетом |
13,2 |
220 | 2904 |
| перегородок | холл | стеклоблоки | 200 шт. | 2 | 400 |
| декоративные колонны из искусственного мрамора | 4 шт. | 1000 | 4000 | ||
| весь объект | 1/2 строительного щелевого кирпича |
0,7 |
60 | 42 | |
| Всего | 30030,3 | ||||
В таблице указаны цены на основные отделочные и строительные материалы без учета стоимости работ и других расходов.
Общая комната
Холл
Планировка после реконструкции
Фрагмент общей комнаты
Столовая
Кухня
Детская
Спальня
Гостевой санузел. Вид сверху
Ванная комната. Вид сверху
Интерьер в светлых тонах
В данном варианте перепланировка выполняется минимальными средствами. Сносятся перегородка толщиной 80
Состав семьи. Предлагаемый вариант рассчитан на семью с ребенком.
Прихожая и коридор. Зеркальные створки двери-книжки, ведущей в прачечную, зрительно раздвигают стены светлой, но небольшой прихожей. Напольное покрытие выполнено из натурального камня терракотового цвета с бордюрами, а в сочетании с небольшим панно из «дикого камня» на дальней стене коридора создает вид городской улицы. Такой прием позволяет сгладить контраст между внешним миром и домашним уютом.
Гостиная, столовая, кухня. Минимального количества мебели вполне достаточно для создания максимального удобства. Поэтому гостиную можно легко превратить в домашний кинозал. Здесь разместились мягкий белый диван фирмы
Библиотека-кабинет. Пространство гостиной плавно перетекает в библиотеку, стены которой затянуты сеткой книжных полок, выполненных на заказ итальянской фирмой FRIGHETTO (около $
Спальня. Здесь обстановка очень проста. Основной акцент в декоре помещения был сделан над стеной, затянутой легкой тканью с рисунком стилизованных бамбуковых стеблей. Легкие растровые рамы, выполняющие функцию раздвижных дверей в двух симметричных гардеробных, обтянуты с обратной стороны тканью. Темные рамы дверей и картины контрастируют с белыми стенами, светлым буковым паркетом и ореховой кроватью модели GENIUS с прикроватными тумбочками модели MORGANA итальянской фирмы LAGO (общей стоимостью $
Детская наиболее удалена от
Ванная комната находится на одной оси с детской, поэтому в ней продолжается полоса цветной напольной плитки фирмы COTTOVENETO. На этом фоне особенно интересна сантехника дизайнера Philippe Starck (общей стоимостью $
Освещение. Помимо галогеновых ламп в коридоре и гостиной использованы ненагревающиеся люминесцентные лампы. Они установлены за небольшим карнизом, устроенным под потолком. В
| Виды работ | Помещения | Материалы |
Кол-во
в ед. |
Стоимость в |
|
| ед. изм. | общая | ||||
| Отделка поверхностей: | |||||
|---|---|---|---|---|---|
| полов | прихожая, коридор, санузел, ванная комната | напольная керамическая плитка фирмы COTTOVENETO |
12,3 |
25 | 307,5 |
| кухня | напольная керамическая плитка под натуральный камень |
11 |
45 | 495 | |
| коридор | искусственно состаренный натуральный камень |
8,35 |
120 | 1002 | |
| остальные помещения | паркетная доска Tarkett (светлый бук) |
69,2 |
45 | 3114 | |
| стен | коридор | облицовочный «дикий камень» (финский кирпич) |
10,35 |
24,8 | 256,7 |
| кухня, санузел, ванная комната | декоративное фактурное покрытие Vjero |
67,8 |
8 | 540,8 | |
| остальные помещения | водоэмульсионная краска |
162 |
2 | 324 | |
| потолков | коридор, гостиная, столовая | гипсокартон |
15 |
30 | 450 |
| ванная комната, санузел | подвесной реечный |
9,6 |
20 | 192 | |
| остальные помещения | водоэмульсионная краска |
92 |
2 | 184 | |
| Установка конструкций: | |||||
| дверей | входная |
стальная |
1 шт. | 1200 | 1200 |
| санузел, ванная комната | распашные, глухие, шпонированные | 2 шт. | 310 | 620 | |
| спальня, библиотека | двойные раздвижные | 2 шт. | 1300 | 2600 | |
| детская | распашная, остекленная, шпонированная | 1 шт. | 480 | 480 | |
| прачечная | зеркальная, типа «книжка», фирмы MOSCHENI DESIGNDUE | 1 шт. | 570 | 570 | |
| окон | весь объект | деревянные трехкамерные |
17 |
265 | 4505 |
| перегородок | весь объект | гипсокартон |
21,5 |
30 | 645 |
| Всего | 17486 | ||||
В таблице указаны цены на основные отделочные и строительные материалы без учета стоимости работ и других расходов.
Гостиная
Вид из прихожей на коридор
Планировка после реконструкции
Вид из гостиной на столовую
Спальня. Вид от окна
Спальня. Вид из коридора
Детская
Кухня
Библиотека
Библиотека. Вид от камина
Ванная комната
Гостевой санузел
Дом с большой гостиной
Одним из достоинств данного проекта стало то, что достаточно простыми средствами удалось избавиться от
Состав семьи. Предлагаемый вариант перепланировки квартиры рассчитан на супружескую пару, имеющую одного или двух детей.
Прихожая. Гостевая зона квартиры начинается с маленькой прихожей, которая удобно сообщается с просторной гардеробной и гостевым санузлом. Пол здесь отделан матовой итальянской керамической плиткой. Гардеробная оборудована раздвижными перегородками с использованием двусторонних тонированных зеркал, внутренней подсветкой и фурнитурой немецкой фирмы RAUMPLUS (общей стоимостью $
Гостиная. Первое, что здесь притягивает взгляд
Кухня. Здесь установлена кухонная мебель итальянской фирмы FANNI ($
Кабинет. Он может служить одновременно и комнатой отдыха. Меблировка его многофункциональна. Это небольшая стильная гостиная фирмы FRIGHETTO, состоящая из модульного стеллажа с мягким диваном ($
Спальня полностью изолирована с помощью раздвижных дверей. За кроватью с тумбочкой фирмы MISURA
Детская оборудована мебелью датской фирмы VENTA ($
Ванная комната. Благодаря увеличению ванной комнаты за счет коридора, она вместила в себя все необходимое оборудование фирмы VILLEROY
Освещение. Во всех интерьерах в качестве источников дополнительного или акцентирующего освещения широко используются точечные галогеновые лампы. В
| Виды работ | Помещения | Материалы |
Кол-во
в ед. |
Стоимость в |
|
| ед. изм. | общая | ||||
| Отделка поверхностей: | |||||
|---|---|---|---|---|---|
| полов | прихожая, кухня, санузлы | напольная керамическая плитка (матовая) |
23,4 |
20 | 468 |
| гостиная, кабинет | паркетная доска Junkers (бук) |
56,7 |
90 | 5103 | |
| детская, спальня | ковровое покрытие (шерсть с синтетикой) |
30 |
25 | 750 | |
| cтен | кухня, санузлы | настенная керамическая плитка (глянцевая) |
49,2 |
25 | 1230 |
| остальные помещения | фактурные обои с комбиниров. окраской многокомпонентной краской Variopent (Чехия) |
155,5 |
30 | 4665 | |
| потолков | ванная комната, санузел | рейка зеркальная |
7,6 |
30 | 228 |
| остальные помещения | натяжной матовый, фирмы EXTENZO |
100,6 |
55 | 5533 | |
| Установка конструкций: | |||||
| дверей | входная | металлическая, обшитая внутри гладким деревом | 1 шт. | 4500 | 4500 |
| ванная комната, санузел | распашные деревянные | 3 шт. | 400 | 1200 | |
| спальня, гардеробная | раздвижные, зеркальные двусторонние | 4 п/м | 1500 | 6000 | |
| окон | весь объект | пластиковые |
30,5 |
250 | 7625 |
| подоконников | весь объект | искусственный мрамор |
|
30 | 414 |
| перегородок | весь объект | гипсокартон |
54 |
18 | 972 |
| Всего | 38688 | ||||
В таблице указаны цены на основные отделочные и строительные материалы без учета стоимости работ и других расходов.
Гостиная
Гостиная. Вид из эркера
Кухня
Спальня
Кабинет
Планировка после реконструкции
Дом, в котором всегда уютно
Перепланировка. Изменения в планировке квартиры в данном случае помогают наилучшей организации жизненного пространства. Единственный проем в несущей стене, который понадобится сделать, чтобы объединить кухню и столовую, будет не шире дверного, то есть
Состав семьи. Предлагаемый вариант рассчитан на молодую семью с одним или двумя детьми. Взрослым членам семьи иногда приходится работать дома. Одному
Прихожая. Небольшая прихожая достаточно функциональна. Слева от
Гостиная. Правая стена гостиной с двумя большими и двумя маленькими нишами, выполненная из гипсокартона, предназначена для размещения в ней AUDIO- и VIDEO-аппаратуры. В
Столовая. Эта комната выполняет дополнительную функцию гостиной. Поэтому помимо обеденной группы фирмы
Кухня. Когда нет гостей, можно пообедать и на кухне. Для этого здесь предусмотрены обеденный стол и стулья фирмы
Спальня устроена в достаточно светлом помещении. Поскольку ее площадь не очень велика, здесь разместились кровать с системой изголовья модели Koz ($
Кабинет и детская. Кабинет может выполнять функцию гостевой спальни, поскольку здесь предусмотрен раскладывающийся диван модели Pierre фирмы FRIGHETTO ($
Ванная комната и санузел. Размер ванной комнаты несколько увеличен. Новая кирпичная перегородка, отнимая минимум жилого пространства, огибает двухместную ванну с гидромассажем. Санузел становится и небольшой прачечной, поскольку на площади менее двух квадратных метров уместились стиральная машина, раковина, унитаз и шкафчик для чистящих средств и белья. Вся сантехника и мебель в этих помещениях известных фирм:
Лоджия предварительно застекляется и утепляется. Здесь оборудован спортивный уголок со складывающейся беговой дорожкой и складывающимися же стульями модели Suez из коллекции HALIFAX (по
Освещение. Помимо встроенных галогеновых светильников, во всех помещениях используются различные модели торшеров, люстр, настольных ламп фирмы
| Виды работ | Помещения | Материалы |
Кол-во
в ед. |
Стоимость в $ | |
| ед. изм. | общая | ||||
| Отделка поверхностей: | |||||
|---|---|---|---|---|---|
| полов | ванная комната, кухня, прихожая |
керамический гранит
MIRAGE 30 |
13 |
120 | 1560 |
| санузел, лоджия |
напольная керамическая
плитка 15 |
7,5 |
30 | 225 | |
| спальня | шерстяное ковровое покрытие на джутовой основе |
14 |
31 | 434 | |
| остальные помещения |
паркет Junckers, бук, 14 |
65 |
74 | 4810 | |
| стен | кухня |
настенная керамическая
плитка 10 |
4 |
30 | 120 |
| санузел |
настенная керамическая
плитка 15 |
15 |
30 | 450 | |
| ванная комната | мозаика |
23 |
46 | 1058 | |
| лоджия | ламинированные стеновые панели |
19 |
8 | 152 | |
| остальные помещения | краска «Тиккурила» |
280 |
10 | 2800 | |
| потолков | санузел, балкон | металлический, реечный, белый |
10 |
18 | 180 |
| ванная комната, кухня | натяжной EXTENZO |
17 |
40 | 680 | |
| остальные помещения | водоэмульсионная краска |
84 |
2 | 168 | |
| Установка конструкций: | |||||
| дверей | входная | стальная GOODWIL | 1 шт. | 1900 | 1900 |
| спальня, кухня | деревянные раздвижные с матовым стеклом | 2 шт. | 1810 | 3620 | |
| кабинет, детская | деревянные распашные с матовым стеклом | 2 шт. | 1180 | 2360 | |
| ванная комната, санузел | деревянные распашные | 2 шт. | 1040 | 2080 | |
| окон и подоконников | весь объект | вакуумные стеклопакеты в деревянной раме |
15,4 |
390 | 6006 |
| перегородок | весь объект | гипсокартон |
40 |
30 | 1200 |
| кирпич | 950 шт. | 0,2 | 190 | ||
| Всего | 29993 | ||||
В таблице указаны цены на основные отделочные и строительные материалы без учета стоимости работ и других расходов.
Гостиная
Гостиная. Правая стена
Столовая
Кухня
Детская
Спальня
Спальня. Вид от окна
Ванная комната
Кабинет
Лоджия
Санузел
Планировка после реконструкции
Всюду музыка, музыка, музыка
Предлагаемый вариант перепланировки рассчитан на семью музыкантов с двумя детьми. По функциональному назначению квартира делится на две части: гостевую (слева от
Спальня
Планировка после реконструкции
Вращение по кругу
Данный вариант перепланировки рассчитан на семью с ребенком. Квартира строго делится на гостевую и спальную зоны. Прихожая изолирована от
Холл
Планировка после реконструкции
Больше воздуха и света
Вариант перепланировки предлагается семье, имеющей ребенка. Все перегородки толщиной 80
Гостиная
Планировка после реконструкции
Давайте играть
Этот вариант рассчитан на семью с ребенком. Интерьер, благодаря использованию разноцветных стеклоблоков, становится ярким и пестрым. В
- Источник: Журнал «Идеи вашего дома»№17
Пока комментариев нет. Начните обсуждение!