Камбуз в квартире

Кухня площадью 10,1 м2 в трехкомнатной квартире дома серии П-3. Реализованный проект. Смета.

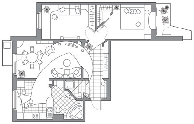
Камбуз в квартиреПанельные 17-этажные дома серии П3 состоят из четырехквартирных рядовых и восьмиквартирных угловых секций. Вних довольно удачно размещены одно-, двух-, трех- и четырехкомнат-ные квартиры. Наружные стены - 350-миллиметровые однослойные керамзитобетон-ные панели, внутренние стены изготовлены из железобетона и имеют толщину 140 и 180мм. Перегородки в санузле гипсобетонные (80мм), перекрытия железобетонные (140мм). Вентиляция естественная вытяжная, осуществляется через вентиляционные каналы на кухне и в санузле Камбуз в квартиреНа кухне все размещено очень компактно: стол, объединенный с подоконником, и барные стулья занимают совсем небольшое пространство, техника и шкафы встроены

Камбуз в квартиреПолосатая тема напольного покрытия объединяет кухню с гостинойПросторы океана неизменно притягивают романтиков. Вшуме ветра и плеске волн чудятся голоса языческих богов. Свист ветра, гром, молнии... Как же невесело возвращаться после таких фантазий в реальность душных городов, застроенных однообразными кварталами с типовыми домами! Но мириться с обыденностью согласны не все. Например, одна из квартир дома серии П3 в Сокольниках превратилась в почти настоящую яхту.

Перепланировка предполагала создание цельной интерьерной композиции. Весь интерьер пересекает пространственная ось, проходящая по диагонали от оконного проема на кухне до спальни. Таким образом, большая часть помещений просматривается насквозь. Из-за ограничений, накладываемых типовой планировкой, образ корабля пришлось создавать в основном дизайнерскими средствами: с помощью пластики гипсокартонных конструкций, комбинирования различных напольных покрытий, использования ассоциирующегося с морской тематикой декора.

Площадь кухни после реконструкции не изменилась. Внесущей стене между ней и гостиной сделали проем. Раздвижная перегородка из матового стекла, разделяющая оба помещения, обеспечивает хозяевам возможность варьировать степень открытости пространства. На кухне господствует корабельная тематика. Все выступающие углы мебели закруглены, а форма высокого стола повторяет очертания "корабельного носа" в гостиной. Сцелью экономии пространства кухня организована предельно компактно: вся бытовая техника скрыта в гарнитуре, а столешница плавно переходит на перегородку и подоконник.

На полу гостиной и кухни выполнена как бы проекция "носа корабля" из сочетания разных видов паркета: орехового и кленового. Круг, имитирующий изгиб паруса, выложен светлыми планками из груши. Каркасная конструкция на потолке повторяет очертания "носа корабля". Кстати, в панельных домах многоуровневые потолки - довольно редкое явление, поскольку исходная высота помещений всего 2,65м. Вданном случае удалось найти оптимальный вариант. Подшивная конструкция отнесена от плиты перекрытия на минимальное расстояние (8см - как раз то пространство, которое необходимо для монтажа встроенных светильников). Иприсутствует только там, где это продиктовано практической необходимостью (за гипсокартоном скрываются разводка системы кондиционирования, компрессор и фильтр для аквариума ит.д.).

Из за нехватки площади было решено превратить все возможные горизонтальные поверхности в рабочие. Вчастности, для расширения столов использовали подоконники. При этом возникло несколько сложностей. Первая - подоконники пришлось поднимать на 2см до уровня столешниц. Вторая появилась из-за того, что радиаторы находятся, как и в большинстве типовых квартир, прямо под окном. Апроход для теплого воздуха обязательно нужно было оставить. Встолешницах сделали по нескольку отверстий и закрыли их декоративными решетками.

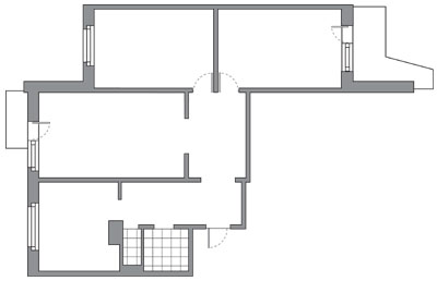
Камбуз в квартиреПлан кухни Камбуз в квартиреПлан до реконструкции Камбуз в квартиреПлан после реконструкции

Вид работ Объем работ Расценка, $ Стоимость, $ Наименование материалов Количество Цена, $ Стоимость, $ Всего, $
Штробление стен под электропроводку 15 пог.м 4 60 Штукатурка «Бирсс» 34кг 0,04 1,36 61,36
Прокладка труб водоснабжения 8 пог.м 5 40 Металлополимерные трубы 8 пог.м 5 40 80
Прокладка электрического кабеля 15 пог.м 5 75 Комплект кабелей 15 пог.м 3 45 120
Устройство цементной стяжки 10,1м2 6 60,9 Сухая смесь «ПЕТРОМИКС ПС» 63кг 0,05 3,15 63,8
Установка оконного блока 1 шт. - - Оконный блок KBE 1 шт. 510 510 510
Выравнивание стен 28,74м2 8 229,9 Штукатурка «Ротбанд» 136кг 0,25 34 263,9
Грунтовка стен 28,74м2 2 57,5 Грунтовка «Базовая» 3,4л 1,5 5,1 62,6
Отделка стен 21м2 3 63 Декоративное покрытие ARTECO (Франция) 10,2кг 16,3 166,3 229,3
Облицовка «фартука» керамической плиткой 7,74 10 77,4 Керамическая плитка MARRAZZI (Италия) 7,74 23 178 255,4
Устройство подшивных потолков 2,4м2 10 24 Гипсокартон с монтажными профилями 2,4м2 10,6 25,4 49,4
Подготовка потолков под покраску 10,1м2 9 90,9 Комплект материалов (стеклоткань «Паутинка», шпаклевка «Фугенфит») На 10м2 3 30 120,9
Окраска потолка 10,1м2 3 30,3 Краска Dufa Superweiss 3,6л 4 14,4 44,7
Укладка на пол керамической плитки 6,8м2 10 68 Керамическая плитка MIRAGE GRANITO CERAMICO (Италия) 4,8м2 24 115,2 183,2
Укладка паркета 3,3м2 12 39,6 Штучный паркет LO PARK (Германия) 3,3м2 35 115,2 155,1
Установка радиатора отопления 5 секций 6 30 Радиатор SIRA (Италия) 5 секций 15 75 105
Установка розеток и выключателей 5 шт. 4 20 Электроустановочные изделия ELSO 5 шт. 5 25 45
Монтаж точечных светильников 4 шт. 8 32 Светильники OSRAM (Германия) 4 шт. 10 40 72
Установка кухонной мебели Комп. - - Кухонная мебель LIGHT (Германия) Комп. 4580 4580 4580
Установка стиральной машины 1 шт. 30 30 Стиральная машина MIELE (Германия) 1 шт. 1270 1270 1300
ВСЕГО: 1028,2 7283,4
ИТОГО: 8301,7
Редакция предупреждает, что в соответствии с Жилищным кодексом РФ требуется согласование проводимых переустройств и перепланировок.
Рекомендуем