
Правильное хранение
бруса
- важное условие качественного строительства. Брус в штабелях должен быть укрыт от дождя, не иметь контакта с землей и хорошо проветриваться

Фундамент делают в несколько приемов.
Его надземную часть отливают в дощатой опалубке

После подводки труб инженерных коммуникаций пространство внутри ленты фундамента заполняют
грунтом и песком

Плиту основания дома отливают чуть ниже уровня цоколя. Для защиты брусьев от влаги по линиям закладки стен к бетону приклеивают ленты гидростеклоизола

Брусья стандартной длины и сечения укладывают на козлы и обрабатывают на месте.

Сборку сруба начинают с закладки полубруса. В
дальнейшем для возведения стен используют полноразмерные брусья

Прямо через полубрус сверлят отверстия под анкеры, которые затем завинчивают торцовым гаечным ключом

Роль опорных конструкций внутри дома играют межкомнатные перегородки и крестообразного сечения столбы

Балки перекрытий имеют сечение в виде перевернутой буквы Т. Деревянные фланцы служат для закладки в перекрытия досок потолка

Торцы брусьев обрабатывают составом, препятствующим впитыванию древесиной влаги

Ошлифованные и покрытые лаком дощатые потолки являют собой элемент внутренней архитектуры здания

В
конструкциях крыльца, балкона и эркера в качестве столбов использованы вертикально стоящие брусья. Для компенсации усадки в столбах предусмотрены регулировочные узлы

Хотя брус в стене дает минимальную усадку, окна в проемы устанавливают на скользящих элементах

Ограждения лестницы и балюстрады делают как из металла, так и из дерева

Со стороны крыши по стропилам делают сплошной дощатый настил. Работы по сооружению крыши выполняют специалисты "РСМ-СТРОЙ"

С
двух сторон дома имеются отлитые из бетона пологие лестницы. К
ним примыкает бетонная отмостка

Под отмосткой расположены труба дренажной системы и водозаборные воронки

Камин с закрытой топкой в гостиной
- это не только объект дизайна, но и эффективный отопительный прибор

Опорная конструкция террасы и балкона одновременно является архитектурно-
художественным элементом

Правильно смонтированное электроустановоч-
ное оборудование LEGRAND безопасно для людей

В
санузлах установлена удобная в пользовании навесная сантехника GUSTAVSBERG
Ресурсы деревянного домостроения в России неисчерпаемы. Тем не менее к дереву следует относиться рационально. Клееный брус - современное достижение, которое позволяет возводить красивые теплые дома быстро и с минимальными трудозатратами
Фундамент
Дом из клееного бруса, со строительством которого мы знакомим читателя, стоит на склоне холма. Структура почвы - обычный суглинок. Единственной угрозой фундаменту являются возможные подвижки грунта под влиянием почвенных вод. Вданной ситуации проектировщики и строители поступили следующим образом. Со стороны подошвы холма, там, где цоколь выше, заложили ленту фундамента на 20см глубже, чем со стороны возвышенной части холма. Вкачестве столбов использовали асбестоцементные трубы диаметром 300мм, установленные в предварительно пробуренные шурфы на глубину 160-190см. Трубы-столбы ставили по всему периметру фундамента через каждые полметра. Вполость труб заложили трехгранный каркас из арматуры и залили его бетонной смесью. Втраншеях шириной 40см из такой же металлической арматуры был связан каркас ленты фундамента. Первую заливку бетонной смесью производили вровень с поверхностью земли. Затем на ленту фундамента установили опалубку, внутри которой связали дополнительный каркас из арматуры, и отлили верхнюю часть фундамента высотой 50см над уровнем земли. Цоколь дома выложили из рядового красного кирпича.
Сборка домов из бруса напоминает работу с детским конструктором: в нем имеются стандартные элементы для решения любых нестандартных задач. Брусчатые дома строят из материала единого сечения по отработанной технологии. Тем не менее архитекторы, проектирующие такие здания, имеют полную свободу самовыражения
Впространстве, образовавшемся между стенами фундамента, смонтировали инженерные коммуникации. Впервую очередь уложили асбестоцементные трубы диаметром 200мм, через которые подвели к дому трубы водоснабжения и канализации, электрический кабель. Поверх насыпали подушку из грунта, тщательно его утрамбовали и покрыли ровным слоем песка. По всей плоскости будущего основания дома связали арматурный каркас. Взавершение, установив дополнительную опалубку по сторонам фундамента, отлили монолитную бетонную плиту.
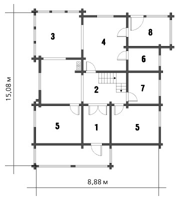
План первого этажа |
План второго этажа |
Экспликация
Первый этаж
1. Прихожая
2. Холл
3. Гостиная
4. Кухня
5. Жилые комнаты
6. Котельная
7. Санузел
8. Веранда
Второй этаж
1. Холл
2. Спальни
3. Санузлы
4. Балкон
Технические данные
Общая площадь дома..................259,0м2
Площадь первого этажа.............115,53м2
Площадь второго этажа.............97,79м2
Площадь мансардного этажа.....45,55м2
Стены
Стены дома должны опираться на абсолютно ровное основание. Для этого строители вывели "ноль": произвели разметку плиты и по периметру несущих стен и межкомнатных перегородок сделали бетонную стяжку высотой 5см, заизолировав ее гидростеклоизолом.
Перед началом работ брус обработали из распылителя грунтовочным антисептиком "Ваалти-Похъюсте" (TIKKURILA, Финляндия). После этой операции приступили к разметке брусьев и изготовлению чашек соединений. Чашки на брусьях запиливались дисковой электропилой по подвижным фанерным шаблонам. Лишнюю древесину удаляли бензопилой и стамеской. Угловые соединения первого венца выполнили с использованием полубруса, на который "вполдерева" (с выпуском концов наружу) положили полноразмерные брусья высотой 160мм и шириной 180мм. Чтобы зафиксировать стены на фундаменте, первый венец закрепили на основании анкерами. Последующие венцы собирали из полноразмерного бруса с тем же соединением «вполдерева». Этот элемент красиво смотрится как на фасаде, так и внутри дома.
Узлы сопряжения брусьев размечают и запиливают дисковой электропилой по шаблонам, лишнюю древесину удаляют бензопилой и стамеской

После того как дом был заведен под крышу, рабочие произвели машинную шлифовку стен и торцов брусьев. Дело в том, что в ходе строительства поверхность бруса подвергается различным атмосферным воздействиям. Врезультате чистота его обработки нарушается, и ее приходится восстанавливать. Кроме того, древесина способна впитывать атмосферную влагу (в основном через торцовые срезы). Сцелью предотвращения этого процесса и предупреждения растрескивания бруса рабочие покрыли стены консервирующим составом «Аидол» (REMMERS, Германия). Для финишной отделки фасадов использовали содержащий льняное масло лессирующий антисептик «Валтиколор-Сатин» (TIKKURILA), который тонирует брусья и одновременно защищает их от негативного влияния атмосферных осадков и солнечного света. Следует заметить, что варианты наружной отделки стен предусматривают не только тонировку и лессировку, но и окраску, скрывающую текстуру бруса. Многим заказчикам такое решение нравится. Тем более, что подготовка под непрозрачную покраску менее трудоемка и стоит дешевле.
Перекрытия и стропила
Деревянные конструкции, находящиеся за пределами сруба, опираются на столбчатый или свайный фундамент
В качестве балок межэтажных перекрытий проектировщики предложили применить тот же стеновой брус, но надлежащим образом доработанный. Из него изготовили балки в виде перевернутой буквы "Т", на 5-сантиметровые выступы которых опираются доски перекрытия. Балки, установленные с шагом 1м, достаточно прочны, чтобы выдержать необходимую нагрузку. Потолочные перекрытия выполнили из сосновой доски-вагонки. Одновременно она является и чистовым потолком. На доски уложили слой пароизоляции, жесткие 100-миллиметровые минераловатные плиты утеплителя и снова слой паро- и гидроизоляции. Поверх сделали обрешетку и контробрешетку для настила паркетной доски.
Фермы крыши - верхняя часть конструкции дома, на них приходится нагрузка "кровельного пирога" и снега. Всредней полосе России нагрузка снега на крышу составляет 1300кг/м2. Прибавим сюда массу натуральной черепицы на кровле площадью 420м2, и становится понятно, почему фермы крыши изготавливают из высокопрочных материалов. Безусловно, самыми надежными в конструкции деревянного дома являются клееные элементы. Внашем случае балки перекрытий в мансарде выполнены из обычного клееного бруса. Стропила же сделаны из древесины, склеенной по несколько иной технологии, обеспечивающей им повышенную прочность. Стропильные ноги - это клееный брус высотой 210мм, шириной 78мм и длиной 12м. Они опираются на верхние венцы стен и промежуточные стойки, с которыми соединены посредством «глухарей».
Крыша и кровля
Кровельные работы на брусчатом доме, равно как и технология сооружения крыши, мало чем отличаются от тех, что ведутся на зданиях других конструкций. "Кровельный пирог", как и полагается, содержит в себе последовательно расположенные снизу вверх слои пароизоляции, утеплителя и гидроизоляции. Тем не менее имеются нюансы, на которые хочется обратить внимание. Так, специалисты "ПАЛЕКС-СТРОЙ" поверх стропил обшивают всю поверхность крыши хорошо антисептированной шпунтованной доской (25мм). Казалось бы, без этого элемента можно обойтись. Однако для повышения прочности и долговечности конструкции такое решение желательно. Дощатое основание защищает крышу от проседания под тяжестью черепицы и снега и является дополнительной защитой от протечек. Вкомпании "ПАЛЕКС-СТРОЙ" предпочитают использовать жесткую минераловатную плиту ROCKWOOL, которая, по мнению специалистов фирмы, наиболее удобна в деревянном домостроении. Вкачестве обрешетки под укладку натуральной черепицы "БРААС" применили брусок 55см. Технология укладки такой черепицы описана в прилагаемой к товару инструкции производителя, так что позволим себе эти подробности опустить. Заметим лишь, что терракотового цвета черепица и слегка тонированные под дуб брусья стен составляют восхитительный ансамбль.
Брусья данного профиля устанавливают в стену с прокладкой утеплителя из вспененного полиэтилена. Им же утепляют и места сопряжения брусьев
Отмостка,
наружные лестницы
Окружающий дом участок имеет пологий рельеф. Чтобы защитить фундамент от стекающей со склона холма воды и отвести ее в пролегающий ниже ручей, вокруг здания организована совершенная система поверхностного водоотвода. На месте бетонной отмостки строители предварительно уложили в грунт дренажные полиэтиленовые трубы, связывающие между собой несколько установленных по периметру дома водоприемных воронок. Вода, текущая с холма или с кровли, попадает через воронки в водоотводный коллектор и далее в ручей, обустройство русла которого пока не закончено. Поверх дренажных труб с двух сторон дома отлиты бетонные лестницы. По ним можно подняться на крыльцо или продолжить движение выше - на холм, в направлении леса.
Технология отливки наружных лестниц заслуживает внимания. После того как дренажные трубы были уложены в землю, рабочие сделали сверху песчано-гравийную подсыпку, связали из арматуры каркас ступеней и собрали опалубку будущих лестничных маршей. Вближайшее время лестницы облицуют камнем.
Внутренняя отделка
Методика внутренней отделки стен, потолка и пола дома заключается в особо тщательной шлифовке, покрытии качественным лаком и финишной полировке поверхностей. Сначала стены интенсивно обрабатывают ленточными и вибрационными шлифовальными машинами, пока они не приобретут однородную шероховатую текстуру. Затем - грунтовка сильно разведенным бесцветным матовым лаком Paneli Assa (TIKKURILA) на водной основе и повторная шлифовка, по завершении которой на основание наносят тот же состав, но удвоенной концентрации. После полного затвердения лака поверхность полируют войлочным диском. Процесс лакирования с последующей полировкой повторяют трижды. Врезультате образуется толстый слой покрытия (по качеству сравнимого с мебельным), отлично выявляющего текстуру и цвет древесины. Отделанные таким образом деревянные конструкции не теряют своих природных декоративных свойств, «дышат», пропуская воздух и влагу, и создают в помещениях благоприятную атмосферу. Для обработки поверхностей потолка и потолочных балок применяется лак на водной основе Dulux (Великобритания): он укрывистый, долговечный, быстро сохнет и не притягивает пыль. Наносится в два слоя.
Все дощатые детали потолка уложены в пазы балок перекрытий и просто прижаты друг к другу. Сразу прибивать доски к балкам было нельзя. Перепады температуры и влажности в отопительный период приводят к тому, что происходят подвижки этих элементов. Они либо расширяются, набирая влагу, либо, наоборот, сужаются из-за высыхания. Врезультате образуются щели. На протяжении 1-2 лет специалисты фирмы наблюдают за поведением дерева и последовательно устраняют возникающие нарушения. Вбалках мансардных перекрытий потолка фрезеровали специальный паз, куда одну за другой укладывали доски. Позже, во время проведения в доме сервисных работ, щели ликвидируют путем притягивания досок друг к другу.
Технология устройства деревянного пола тоже имеет свои особенности. Доски не рассохнутся, если влажность и температура внутри помещения и под полом будут примерно одинаковыми. Основу чистового пола составляет обрешетка, прибитая с шагом 10см к балкам межэтажных перекрытий под углом 45 или 90 (в зависимости от будущего направления укладки доски). Вследствие несовпадения температур воздуха у пола и у потолка возникает конвекция (движение воздуха снизу вверх и обратно). При этом воздух через вентиляционные отверстия в полу получает свободный доступ к брусьям обрешетки. Врезультате показатели влажности и температуры над и под полом находятся на одном уровне.
Чистовой пол настелили еще до начала внутренней отделки здания. Это объясняется тем, что хранившиеся в разных условиях половые доски имеют неодинаковую влажность, и должно пройти время, чтобы она выровнялась. Уложенные доски не прибили, а пока накрыли оргалитом. За период проведения строительных работ влажность покрытия сделалась однородной. После завершения отделки помещений пол разобрали. Спомощью домкрата, шурупов, которыми доски с обеих сторон прикручивают к балкам перекрытий, и клея «жидкие гвозди» доски притянули и друг к другу. Затем поверхность пола циклевали и шлифовали машинами TRIO (Германия).
Входе циклевки на отдельных досках из-за особенностей распила образуются незначительные сколы и трещины. Эти дефекты устранили, применив специальный состав Mixfill, который готовится по технологии шведской фирмы BONA путем смешивания с древесной пылью. После пол подвергли машинной шлифовке. Когда желаемая чистота отделки досок была достигнута, поверхность обработали пропиткой для дерева на основе уайт-спирита Protective Wood Stain (Dulux), колерованной в черный цвет. Вменее плотные волокна древесины пропитка проникает активнее, чем в более плотные. Вот почему в процессе последующей шлифовки шкуркой (данную операцию производят вручную) плотные волокна восстановили свой естественный цвет, а в мягких остались черные вкрапления. Благодаря этому пол приобрел своеобразный "состаренный" вид с подчеркнутой черно-белой текстурой древесины. Чтобы защитить поверхность, ее покрыли бесцветным полуматовым лаком на алкидной основе Interior Varnish (Dulux). Врезультате отделка пола существенно отличается от оформления стен и потолков по фактуре и цвету, и дизайн интерьеров выглядит более богатым и оригинальным.


Полы в прихожей, гостиной и на кухне облицованы керамической плиткой с разделкой швов под деревоНа первом этаже (в котельной, санузлах), где существует жесткое основание в виде плиты фундамента, применили еще одно любопытное инженерное решение. Здесь до половины высоты помещения возвели из кирпича вторые стены, независимые от деревянных несущих конструкций. Верхнюю половину стен обшили гипсокартоном по металлическому каркасу. Кирпичные перегородки были необходимы для монтажа большого количества инженерного и сантехнического оборудования, а в котельной их присутствие оправдано еще и тем, что они повышают пожарную безопасность.
Инженерные
коммуникации
После установки окон и завершения кровельных работ начали монтаж инженерных коммуникаций. Поскольку дом построен на предварительно отлитой бетонной плите, через которую в помещения сделаны вводы электрического кабеля, труб канализации и водоснабжения, всю разводку инженерных сетей первого этажа выполнили под полом. Вместе ввода коммуникаций в здание в полу оборудовали технологический люк. Там, где пол деревянный, трубы и провода уложили в слой жесткого минераловатного утеплителя ROCKWOOL между лагами, а там, где он облицован плиткой или камнем, - в керамзитоцементную стяжку.
Кэлектроустановкам деревянных зданий пожарные предъявляют повышенные требования. Закладку электрических проводов и кабелей - к розеткам, выключателям и светильникам - осуществили в процессе возведения стен через металлические трубы или металлорукава (под них в брусьях высверливали вертикальные отверстия и выбирали горизонтальные пазы). Вслучае возгорания проводки они должны предотвратить распространение огня. Для большей надежности использовали кабель с нулевым защитным проводником (марка NYM производства завода «СЕВКАБЕЛЬ»). Он имеет тройную изоляцию, не выделяет при горении вредных веществ, стоек к высоким температурам, возникающим при коротком замыкании.
При установке розеток и выключателей применяли монтажные коробки LEGRAND (Франция), изготовленные из не поддерживающего горение пластика. Кроме того, места контакта коробок со стеной предварительно покрыли специальной краской, препятствующей возгоранию древесины. Вдеревянных домах повышенное внимание следует уделять качеству электрических соединений. Параллельные шунтовые соединения между розетками недопустимы. От каждой розетки (или от двух-трех, к которым подключены неэнергоемкие бытовые приборы) отдельный провод (кабель) должен вести к монтажной коробке, а от нее - к защитному автомату. Это делается для равномерного распределения нагрузки на розетки и защитные автоматы. Наряду с защитным автоматом каждую розеточную группу, а в особых случаях - конкретную розетку, должно защищать устройство защитного отключения (УЗО). При повреждении изоляции и возникновении токов утечки оно спасет людям жизнь, предотвратит пожар, сохранит работоспособность электроприборов. Данное правило монтажа и защиты распространяется также на светильники.


Компоновка оборудования котельной эргономична и в то же время эстетична
Впомещении котельной расположены бойлер и оборудование для очистки воды. Бойлер косвенного нагрева производства компании REFLEX (Германия) вмещает 200л воды (время нагрева - приблизительно 30 мин). Этого количества достаточно для повседневных нужд семьи из 5-6 человек. Станция водоочистки от компании ECOWATER (США) с комплектом фильтров приводит поступающую из скважины артезианскую воду в соответствие с санитарными нормами. Работа фильтров полностью автоматизирована. Вся вода очищается от солей железа и умягчается. Определенная ее часть используется для технических нужд. Вода для питья подвергается глубокой химической и биологической обработке.
Разводка систем отопления и горячего водоснабжения произведена армированной слоем алюминия полипропиленовой трубой немецкой фирмы AQUATHERM. Такая труба имеет меньший коэффициент линейного удлинения, чем другие пластмассовые трубы, что упрощает решение проблемы компенсации ее изгиба по длине при нагреве. Для холодного водоснабжения использована обычная полипропиленовая труба того же производителя. Теплые полы в санузлах и на кухне оборудованы с применением гибкой трубы из сшитого полиэтилена PEX по технологии WIRSBO (Швеция). Вдоме действует климатическая установка. Она включает в себя работающую практически без шума вентиляционную систему OSBERG (Швеция), центральный кондиционер DAIKIN (Япония), устройства увлажнения воздуха AXAIR (Швейцария), осушители CALOREX (Великобритания). Функционирование приборов осуществляется под контролем автоматики SIEMENS. Вентиляционные каналы проложены в межэтажных перекрытиях, оборудование климатической установки сосредоточено в техническом помещении на втором этаже. Вавтоматическом режиме производятся контроль качества воздуха и организация вентиляции, поддержание комфортной температуры и влажности воздуха, его очистка от пыли и вредных микроорганизмов.
Возводить здания из бруса можно по-разному. Есть отличия и в материале, и в технологиях строительства, и в стоимости работ. Многие россияне покупают дома заводского изготовления, которые собирают на стройплощадке из относительно недорогих деталей конвейерного производства. Вэтом случае не применяются межвенцовые утеплители, брусья прижимаются собственной массой. Можно указать и на ряд других существенных особенностей данной технологии. Тем не менее построенные таким образом дома оптимальны по соотношению "цена - качество» и пользуются популярностью у людей с ограниченными материальными возможностями. Как и из чего строить, решать вам. Главное, чтобы дело это было не в тягость, а в радость!
Укрупненный расчет стоимости работ и материалов по строительству двухэтажного дома общей площадью 259м2
| Наименование работ |
Ед. изм. |
Объем/кол-во |
Цена, $ |
Стоимость, $ |
| ФУНДАМЕНТНЫЕ РАБОТЫ |
| Вынос осей, планировка и разработка участка под фундамент, выемка грунта |
м3 |
92 |
18 |
1656 |
| Устройство щебеночного основания |
м2 |
170 |
8 |
1360 |
| Устройство фундаментов, ж/б плиты |
м3 |
98 |
60 |
5880 |
| ИТОГО: |
|
|
|
8896 |
| Применяемые материалы по разделу |
| Бетон тяжелый, щебень гранитный, песок |
- |
- |
- |
6500 |
| ИТОГО: |
|
|
|
6500 |
| СТЕНЫ (КОРОБКА) |
| Рубка стен из бруса, установка колонн |
м3 |
90 |
150 |
13 500 |
| Устройство перекрытий по рубленым стенам |
м2 |
320 |
9 |
2880 |
| ИТОГО: |
|
|
|
16 380 |
| Применяемые материалы по разделу |
| Пиломатериал (брус клееный, доска обрезная) |
м3 |
90 |
500 |
40 500 |
| ИТОГО: |
|
|
|
40 500 |
| УСТРОЙСТВО КРОВЛИ |
| Монтаж стропильной конструкции |
м2 |
180 |
12 |
2160 |
| Настил покрытия из черепицы |
м2 |
180 |
8 |
1440 |
| ИТОГО: |
|
|
|
3600 |
| Применяемые материалы по разделу |
| Черепица цементно-песчаная BRAAS |
м2 |
180 |
29 |
5220 |
| Пиломатериал обрезной |
м3 |
9 |
120 |
1080 |
| ИТОГО: |
|
|
|
6300 |
| ИНЖЕНЕРНЫЕ СИСТЕМЫ |
| Бурение скважины |
| Монтаж канализационной системы (септик) |
- |
- |
- |
2900 |
| Сантехнические и электромонтажные работы |
- |
- |
- |
4600 |
| ИТОГО: |
|
|
|
7500 |
| Применяемые материалы по разделу |
| Cептик UPONOR (Финляндия) |
компл. |
1 |
6200 |
6200 |
| Оборудование котельное DIEMATIC |
компл. |
1 |
6700 |
6700 |
| ИТОГО: |
|
|
|
12 900 |
| ОТДЕЛОЧНЫЕ РАБОТЫ |
| Монтаж лестницы, столярные работы |
- |
- |
- |
9200 |
| Малярные и облицовочные работы |
- |
- |
- |
6700 |
| ИТОГО: |
|
|
|
15 900 |
| Применяемые материалы по разделу |
| Доски полового настила, вагонка и пр. |
м2 |
320 |
40 |
12 800 |
| Плитка керамическая (Италия) |
м2 |
69 |
29 |
2000 |
| ИТОГО: |
|
|
|
14 800 |
| ВСЕГО: |
|
|
|
133 276 |
Редакция благодарит компании «ПАЛЕКС-СТРОЙ» и «РСМ-СТРОЙ» за организацию
съемок на объекте и за помощь в подготовке статьи.
Пока комментариев нет. Начните обсуждение!